EasyManua.ls Logo

KitchenAid KRSC703HPS - Page 36

KitchenAid KRSC703HPS
59 pages
Print Icon
To Next Page IconTo Next Page
To Next Page IconTo Next Page
To Previous Page IconTo Previous Page
To Previous Page IconTo Previous Page
Loading...
36
Pour une installation côte à côte standard :
Pour obtenir une aération appropriée pour votre réfrigérateur,
laisser un espace de 1/2 po (1,27 cm) de chaque côté et au
sommet. Laisser un espace de 2" (5,08 cm) derrière le
réfrigérateur. Si le réfrigérateur comporte une machine à glaçons,
s’assurer qu’un espace additionnel est prévu à l’arrière pour
permettre les raccordements des conduits d’eau. En cas
d’installation du réfrigérateur près d’un mur fixe, laisser un
minimum de 2 po (5,08 cm) de chaque côté (selon le modèle)
pour permettre à la porte de s’ouvrir sans obstruction.
REMARQUES :
Ce réfrigérateur est conçu pour être utilisé dans un endroit
la température est comprise entre un minimum de 55 °F (13 °
C) et un maximum de 110 °F (43 °C). La plage de température
ambiante idéale pour un rendement optimal est comprise entre
60 °F (15 °C) et 90 °F (32 °C). Respecter cette plage de
température permet aussi de réduire la consommation
d’électricité et d’optimiser l’efficacité du refroidissement. Il est
recommandé de ne pas installer le réfrigérateur près d’une
source de chaleur comme un four ou un radiateur.
La largeur de la cavité d’encastrement doit être d’au moins
36 po (91,44 cm) pour l’installation du produit. Cependant, si le
produit est placé contre une paroi avec prolongement et si on
veut pouvoir retirer les poêles à croustiller, il convient d’élargir
la cavité de 18 po (45,72 cm). On recommande donc une
cavité d’encastrement d’une largeur totale de 54 po
(137,16 cm).
Pour une installation côte à côte à profondeur de
comptoir :
REMARQUES :
Le réfrigérateur peut être installé dans un encastrement, à
l’extrémité des armoires ou en position autonome.
Si vous installez le réfrigérateur pour qu’il soit en affleurement
avec les armoires inférieures, il faut enlever toutes les
moulures et plinthes de l’arrière de l’ouverture d’encastrement.
Laisser un espace de 1 po (2,54 cm) derrière le réfrigérateur.
L’emplacement doit permettre l’ouverture complète des portes.
Voir la section « Dimensions du produit ».
Ce réfrigérateur est conçu pour être utilisé dans un endroit
la température est comprise entre un minimum de 55 °F (13 °
C) et un maximum de 110 °F (43 °C). La plage de température
ambiante idéale pour un rendement optimal est comprise entre
60 °F (15 °C) et 90 °F (32 °C). Respecter cette plage de
température permet aussi de réduire la consommation
d’électricité et d’optimiser l’efficacité du refroidissement. Il est
recommandé de ne pas installer le réfrigérateur près d’une
source de chaleur comme un four ou un radiateur.
Le plancher doit supporter le poids du réfrigérateur (plus de
600 lb
[272 kg]) et de son contenu.
Outils requis :
Rassembler les outils et pièces nécessaires avant d’entreprendre
l’installation. Lire et observer les instructions fournies avec chacun
des outils de la liste ci-dessous.
Perceuse sans fil
Tourne-écrou et foret de 1/
4 po
Tournevis à tête plate
Deux clés à molette
Clé à molette de 5/16 po
Clés à fourche de 7/16 po
et 1/2 po
Clés à douille de 3/8 po et
1/2 po
Pièces nécessaires :
Votre marchand de réfrigérateurs propose une trousse avec
un robinet d’arrêt à étrier de 1/4 po (6,35 mm), un raccord et
un tube en cuivre.
L’utilisateur peut aussi acheter une canalisation de cuivre de 1/
4 po (6,35 mm) avec robinet d’arrêt et un raccord à
compression de 1/4 po (6,35 mm).
Selon les connexions de la canalisation d’eau, on peut aussi
avoir besoin d’un écrou de
1/4 po (6,35 mm) et d’une virole de 1/4 po (6,35 mm).
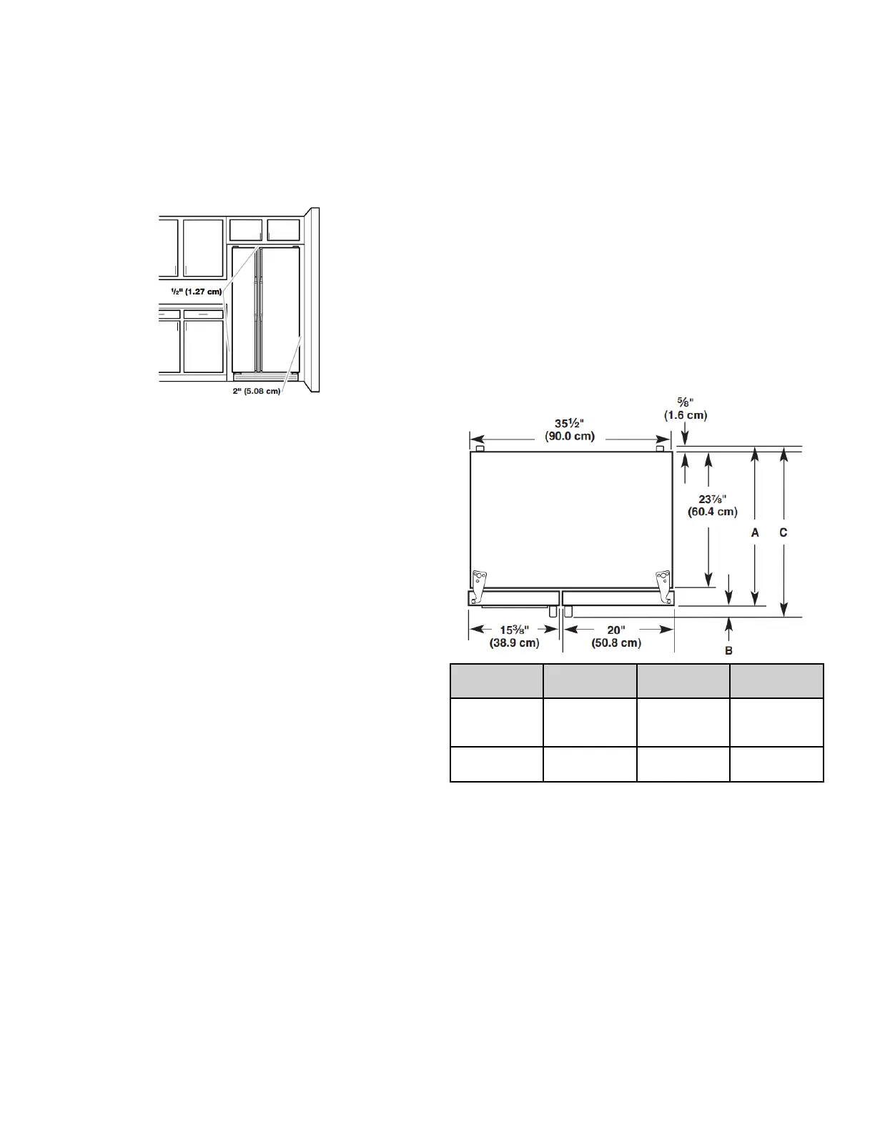
Dimensions du produit Vue de dessus
Style de
porte
Profondeur A Profondeur B Profondeur C
Plate 27
1
/
2
po
(69,9 cm)
Maximum de
2
5
/
8
po
(6,7 cm)*
Maximum de
30 po
(76,2 cm)*
Incurvée 28
5
/
8
po
(72,7 cm)
2
5
/
8
po
(6,7 cm)
31
1
/
8
po
(79,1 cm)
Les dimensions peuvent varier en fonction du type de poignée de
porte.
La profondeur pour utilisation de la poignée la plus profonde est
indiquée.

Table of Contents

Other manuals for KitchenAid KRSC703HPS

Related product manuals