EasyManua.ls Logo

KitchenAid KRSC703HPS - Page 37

KitchenAid KRSC703HPS
59 pages
Print Icon
To Next Page IconTo Next Page
To Next Page IconTo Next Page
To Previous Page IconTo Previous Page
To Previous Page IconTo Previous Page
Loading...
37
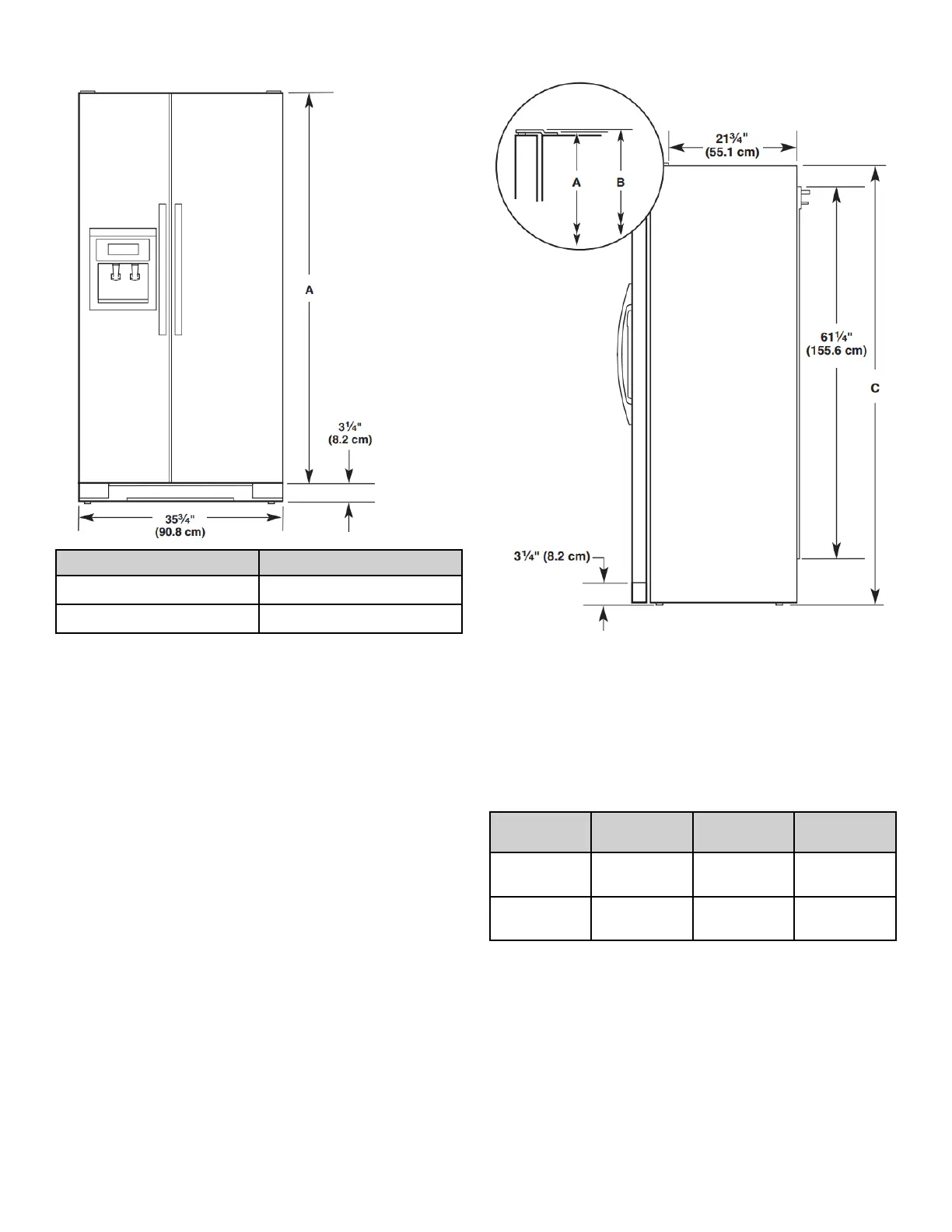
Dimensions du produit Vue avant
Taille du modèle Hauteur A
69 po 65
3
/
4
po (167,0 cm)
72 po 68
1
/
8
po (173,0 cm)
Dimensions du produit Vue latérale
Les dimensions de hauteur sont illustrées avec les pieds de
nivellement déployés à la hauteur minimale de 1/4 po
(6,35 mm) sous le réfrigérateur.
REMARQUE : Lorsque les pieds de nivellement sont
totalement déployés de 1 po (25 mm) au-dessous du
réfrigérateur, ajouter 3/4 po (19 mm) à la hauteur totale.
La longueur du cordon d’alimentation est de 61
1
/
4
po
(155,6 cm).
La canalisation d’eau fixée à l’arrière du réfrigérateur mesure
78 po (198,1 cm) de long.
Taille du
modèle
Hauteur A Hauteur B Hauteur C
69 po 68
7
/
8
po
(174,9 cm)
68
7
/
8
po
(174,9 cm)
68
1
/
2
po
(174,0 cm)
72 po 71
1
/
4
po
(181,0 cm)
71
1
/
4
po
(181,0 cm)
71 po
(180,3 cm)

Table of Contents

Other manuals for KitchenAid KRSC703HPS

Related product manuals