EasyManua.ls Logo

KitchenAid KRSC703HPS - Page 7

KitchenAid KRSC703HPS
59 pages
Print Icon
To Next Page IconTo Next Page
To Next Page IconTo Next Page
To Previous Page IconTo Previous Page
To Previous Page IconTo Previous Page
Loading...
7
NOTES:
This refrigerator is intended for use in a location where the
temperature ranges from a minimum of 55°F (13°C) to a
maximum of 110°F (43°C). The preferred room temperature
range for optimum performance, which reduces electricity
usage and provides superior cooling, is between 60°F (15°C)
and 90°F (32°C). It is recommended that you do not install the
refrigerator near a heat source, such as an oven or radiator.
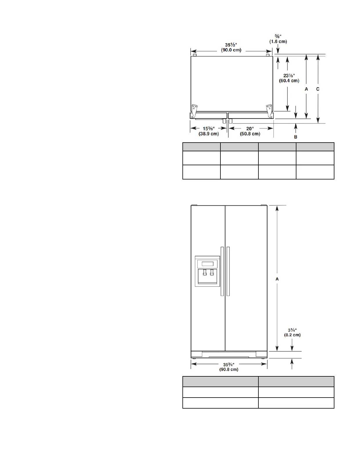
Normal minimum cabinet cut-out width required for product
installation is 36" (91.44 cm). However, if the product is placed
against an extended wall and the ability to remove the crisper
pans is desired, an additional 18" (45.72 cm) of cabinet width
is required, so a total cabinet opening width of 54" (137.16 cm)
is recommended.
For Counter-Depth Side-by-Side Installation:
NOTES:
The refrigerator can be installed into a recessed opening, at
the end of cabinets or as a freestanding refrigerator.
If you are installing the refrigerator to fit flush with the front of
the base cabinets, all shoe moulding and baseboards must be
removed from the rear of the refrigerator opening. Allow for 1"
(2.54 cm) of space behind the refrigerator.
Location should permit doors to open fully. See “Product
Dimensions.”
This refrigerator is intended for use in a location where the
temperature ranges from a minimum of 55°F (13°C) to a
maximum of 110°F (43°C). The preferred room temperature
range for optimum performance, which reduces electricity
usage and provides superior cooling, is between 60°F (15°C)
and 90°F (32°C). It is recommended that you do not install the
refrigerator near a heat source, such as an oven or radiator.
Floor must support refrigerator weight (more than 600 lbs.
[272 kg]) and contents.
Tools Needed:
Gather the required tools and parts before starting installation.
Read and follow the instructions provided with any tools listed
here.
Cordless drill
1/4" nut driver and drill bit
Flat-blade screwdriver
Two adjustable wrenches
5/16" or adjustable wrench
7/16" and 1/2" open-end
wrenches
3/8" and 1/2" socket
wrenches
Parts Needed:
Your refrigerator dealer has a kit available with a 1/4" (6.35
mm) saddle-type shutoff valve, a union, and copper tubing.
Or you can purchase 1/4" (6.35 mm) copper tubing with shutoff
valve and a 1/4" (6.35 mm) compression fitting (coupling).
Depending on water line connections, you may also need a
1/4" (6.35 mm) nut and 1/4" (6.35 mm) ferrule.
Product Dimensions Top View
Door Style Depth A Depth B Depth C
Flat 27
1
/
2
" (69.9
cm)
2
5
/
8
" (6.7 cm)
maximum*
30" (76.2 cm)
maximum*
Curved 28
5
/
8
" (72.7
cm)
2
5
/
8
" (6.7 cm) 31
1
/
8
" (79.1
cm)
*Dimension may vary based on style of door handle.
The depth for the largest available handle is listed.
Product Dimensions Front View
Model Size Height A
69" 65
3
/
4
" (167.0 cm)
72" 68
1
/
8
" (173.0 cm)

Table of Contents

Other manuals for KitchenAid KRSC703HPS

Related product manuals