EasyManua.ls Logo

KitchenAid KRSC703HPS - Page 8

KitchenAid KRSC703HPS
59 pages
Print Icon
To Next Page IconTo Next Page
To Next Page IconTo Next Page
To Previous Page IconTo Previous Page
To Previous Page IconTo Previous Page
Loading...
8
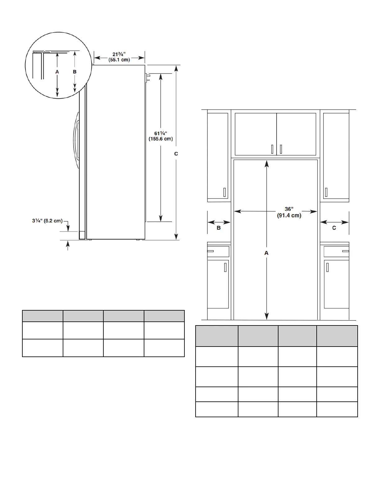
Product Dimensions Side View
Height dimensions are shown with the leveling legs extended
to the minimum height of 1/4" (6.35 mm) below the refrigerator.
NOTE: When leveling legs are fully extended to 1" (25 mm)
below the refrigerator, add 3/4" (19 mm) to the height
dimensions.
The power cord is 61
1
/
4
" (155.6 cm) long.
The water line attached to the back of the refrigerator is 78"
(198.1 cm) long.
Model Size Height A Height B Height C
69" 68
7
/
8
"
(174.9 cm)
68
7
/
8
"
(174.9 cm)
68
1
/
2
"
(174.0 cm)
72" 71
1
/
4
"
(181.0 cm)
71
1
/
4
"
(181.0 cm)
71"
(180.3 cm)
Opening Dimensions
Height dimensions are shown with the leveling legs extended
to the minimum height of 1/4" (6.35 mm) below the refrigerator.
NOTE: When leveling legs are fully extended to 1" (25 mm)
below the refrigerator, add 3/4" (19 mm) to the height
dimensions.
In the following graphic, “A” represents the opening height
required for standard cabinets. For full-overlay cabinet doors
with a trim kit, add 1/8" (0.3 cm).
In the following graphic, “B” represents the distance needed to
fully open the freezer door and “C” represents the distance
needed to fully open the refrigerator door.
Model Size
and Door
Style
Height A Width B Width C
69" Flat 69"
(175.3 cm)
13
5
/
8
"
(34.6 cm)
maximum*
18
1
/
8
"
(46.0 cm)
maximum*
72" Flat 72"
(182.9 cm)
71
1
/
4
"
(181.0 cm)
maximum*
18
1
/
8
"
(46.0 cm)
maximum*
69" Curved 69"
(175.3 cm)
13
5
/
8
"
(34.6 cm)
18
3
/
8
"
(46.7 cm)
72" Curved 72"
(182.9 cm)
13
3
/
4
"
(34.9 cm)
18
3
/
8
"
(46.7 cm)
*Dimension may vary based on style of door handle.
The width for the largest available handle is listed.

Table of Contents

Other manuals for KitchenAid KRSC703HPS

Related product manuals