EasyManua.ls Logo

KitchenAid KSSO42QMX01 - Page 13

KitchenAid KSSO42QMX01
76 pages
Print Icon
To Next Page IconTo Next Page
To Next Page IconTo Next Page
To Previous Page IconTo Previous Page
To Previous Page IconTo Previous Page
Loading...
(}v _i!!_;ii_:iii;_ii!_i_i!!i,_¸':Se_ii7_ii!_!ii;(ii:t_ii!_!ii:_:_7:oiii:i_:_i_7::L_iii:_i!i!_iii_!_!;l
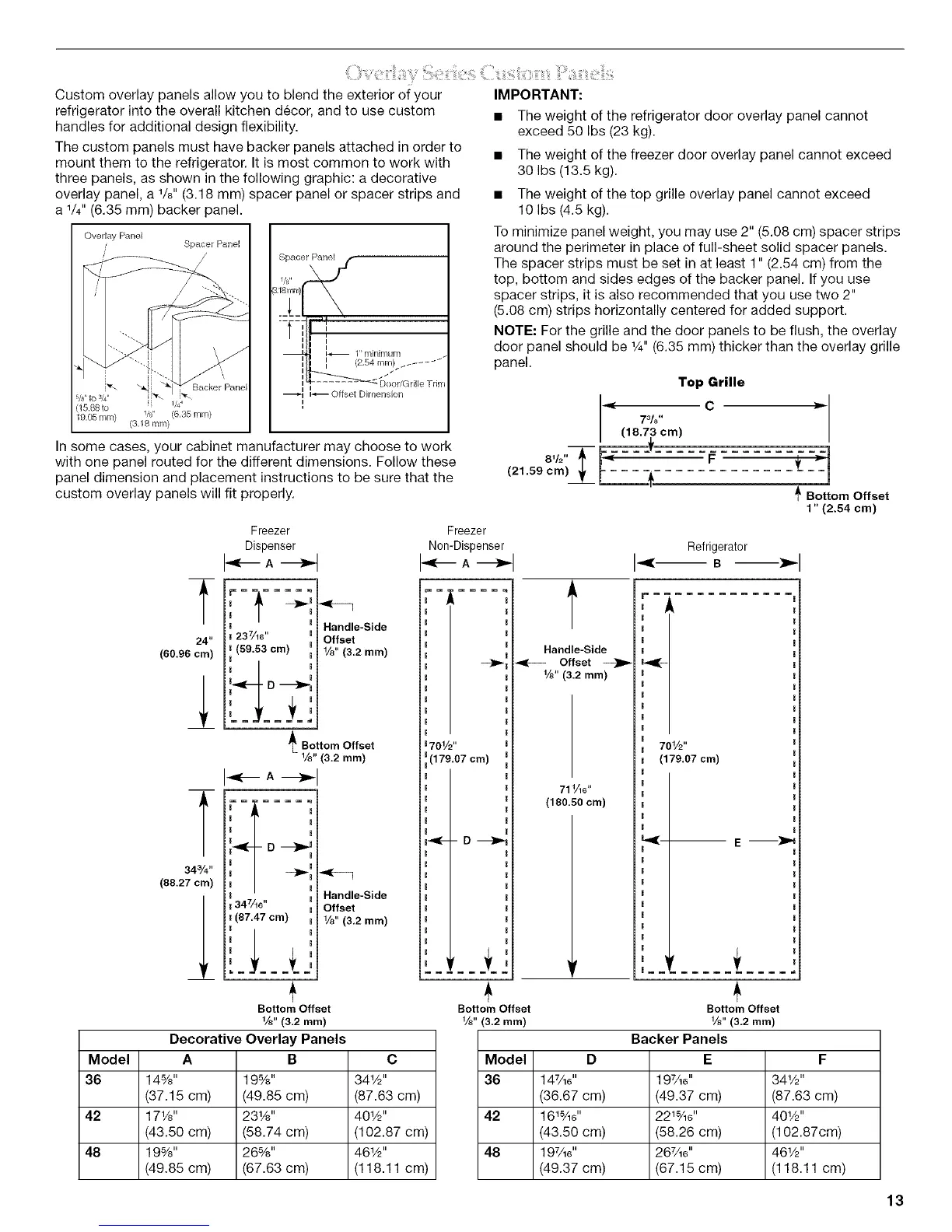
Custom overlay panels allow you to blend the exterior of your
refrigerator into the overall kitchen decor, and to use custom
handles for additional design flexibility.
The custom panels must have backer panels attached in order to
mount them to the refrigerator. It is most common to work with
three panels, as shown in the following graphic: a decorative
overlay panel, a 1/8" (3.18 mm) spacer panel or spacer strips and
a 1/4"(6.35 mm) backer panel.
[ Overlay PaheJ Spacer PaheJ 1
Spacer Panel
1/8"
I i
I_ 1" fninlmutn
I I (2,54 mm)_ ......
i _D00r/GrilleTrim
_ Offset Dimension
In some cases, your cabinet manufacturer may choose to work
with one panel routed for the different dimensions. Follow these
panel dimension and placement instructions to be sure that the
custom overlay panels will fit properly.
IMPORTANT:
The weight of the refrigerator door overlay panel cannot
exceed 50 Ibs (23 kg).
The weight of the freezer door overlay panel cannot exceed
30 Ibs (13.5 kg).
The weight of the top grille overlay panel cannot exceed
10 Ibs (4.5 kg).
To minimize panel weight, you may use 2" (5.08 cm) spacer strips
around the perimeter in place of full-sheet solid spacer panels.
The spacer strips must be set in at least 1" (2.54 cm) from the
top, bottom and sides edges of the backer panel. If you use
spacer strips, it is also recommended that you use two 2"
(5.08 cm) strips horizontally centered for added support.
NOTE: For the grille and the door panels to be flush, the overlay
door panel should be 1/4"(6.35 mm) thicker than the overlay grille
panel.
Top Grille
I I
73/8-
(18.73 cm)
8,u,T F ' -
(21.59 em)__
om Offset
1" (2.54 cm)
Model
36
42
48
t
24"
(60.96 cm)
Freezer
Dispenser
(88.27 cm)
I
I
I 237/16"
I (59.53 cm)
_ Bottom Offset
Vs" (3,2 ram)
l r__ .... ]
I I
I I
' g_
343/4" /
347/16"
(87,47 cm)
Bettem Offset
Va"(3.2 ram)
Decorative Overlay Panels
A
14%"
(37.15 cm)
171/8''
(43.50 cm)
19%"
(49.85 cm)
B
19%"
(49.85 cm)
231/8''
(58.74 cm)
26%"
(67.63 cm)
Handle-Side
Offset
V_" (3.2 mm)
Handle-Side
Offset
Vs" (3.2 mm)
Freezer
Non-Dispenser
-._-_ A _
170V2"
(179.07 cm)
_(-- D _
__i
Bottom Offset
Vs" (3.2 mm)
C Model
341A '' 36
(87.63 cm)
401A '' 42
(102.87 cm)
461A '' 48
(118.11 cm)
t
Handle-Side
Offset -_
1/8" (3.2 ram)
711/16"
(180.50 cm)
D
147/16"
(36.67 cm)
16Wld'
(43.50 cm)
197/16"
(49.37 cm)
Refrigerator
_9[- B -}lP,-
rA
I
I
I
I
m.q{-
701/2''
(179.07 cm)
:_2!..... ....
Bottom Offset
Vs" (3,2 mm)
Backer Panels
E
197/18''
(49.37 cm)
22Wld'
(58.26 cm)
267/18''
(67.15 cm)
F
341/2''
(87.63 cm)
401/2''
(102.87cm)
461/2''
(118.11 cm)
13

Related product manuals