EasyManua.ls Logo

Kohler 32EKOZD

Kohler 32EKOZD
360 pages
To Next Page IconTo Next Page
To Next Page IconTo Next Page
To Previous Page IconTo Previous Page
To Previous Page IconTo Previous Page
Loading...
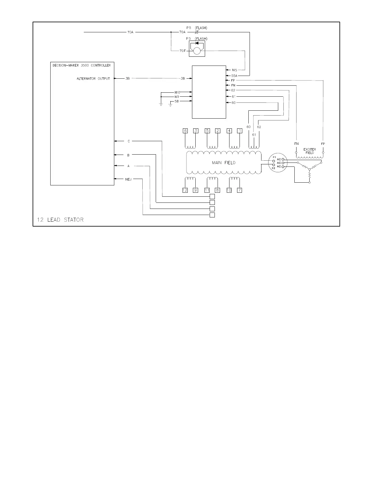
24 Section 1 Specifications TP-6953 7/19
ACTIVATOR
BOARD GM88453
TP-6953-1
AUXILIARY
POWER
WINDINGS
STATOR
WINDINGS
RECTIFIER
MODULE
EXCITER
ARMATURE
AC VOLTAGE SENSING
AC VOLTAGE SENSING
AC VOLTAGE SENSING
AC VOLTAGE SENSING
L2
L1
L3
L0
NOTE: Refer to wiring
diagram ADV-5875 in the
Section 17 for voltage
configurations.
See the full wiring diagram in Section 17.
Figure 1 -5 12-Lead Brushless Alternator Schematic (13- 32EKOZD and 11- 28EFKOZD Models)
When a large motor is connected to the alternator, the
output voltage will decrease suddenly (due to the
increased requirements of the motor load). The voltage
regulator increases the current target (transmitted
through a PWM signal on 3B and 5B) to respond to the
change in the output voltage, which causes the activator
board to apply full auxiliary winding voltage to the exciter
field until it reaches the new target current. As the
exciter field current increases, the rotor field current
starts to increase, causing the output voltage of the
alternator to start to recover. As the motor speed
increases, the current draw to the motor decreases,
resulting in a decrease of the alternator load.
When a short circuit condition occurs on the output of the
alternator, the output voltage will go to 0 volts and the
voltage regulator will set a 100% PWM output duty cycle
in an effort to recover the voltage to rated. This causes
the a ctivator to apply full auxiliary winding voltage
(about 160 VDC) to the exciter field until the exciter field
current reaches 7.8 amps DC (when it decreases the
voltage applied to maintain 7.8 amps DC on the exciter
field). The high current in the exciter field applies a
maximum voltage across the rotor field, driving it toward
a maximum current. The current supplied to the fault will
increase as the rotor field current increases, but the
initial short circuit current is supplied by stored energy in
the alternator. The initial current spike is d ue to stored
energy in the alternator.
When a large load is removed from the alternator, the
output voltage of that alternator increases and the
voltage regulator decreases the duty cycle of the PWM
signal to the activator board. This causes the activator
board to turn off the voltage to the exciter field until the
current r eaches the new target. The exciter armature
generates voltage until the exciter field current reaches
0 amps, causing the rotor field current to increase for a
short time after the load is removed. After the exciter
field current reaches 0 amps, the output voltage of the
alternator decreases until it decays to the target voltage,
when the voltage regulator increases the PWM duty
cycle again and the activator applies full voltage to the
exciter field until the current matches the target set by
the PWM signal (when it decreases the voltage to
maintain the target current).

Other manuals for Kohler 32EKOZD

Related product manuals