EasyManua.ls Logo

Kohler 9EFKOZD

Kohler 9EFKOZD
12 pages
To Next Page IconTo Next Page
To Next Page IconTo Next Page
To Previous Page IconTo Previous Page
To Previous Page IconTo Previous Page
Loading...
9
TT-1583 9/13
GM79008-C
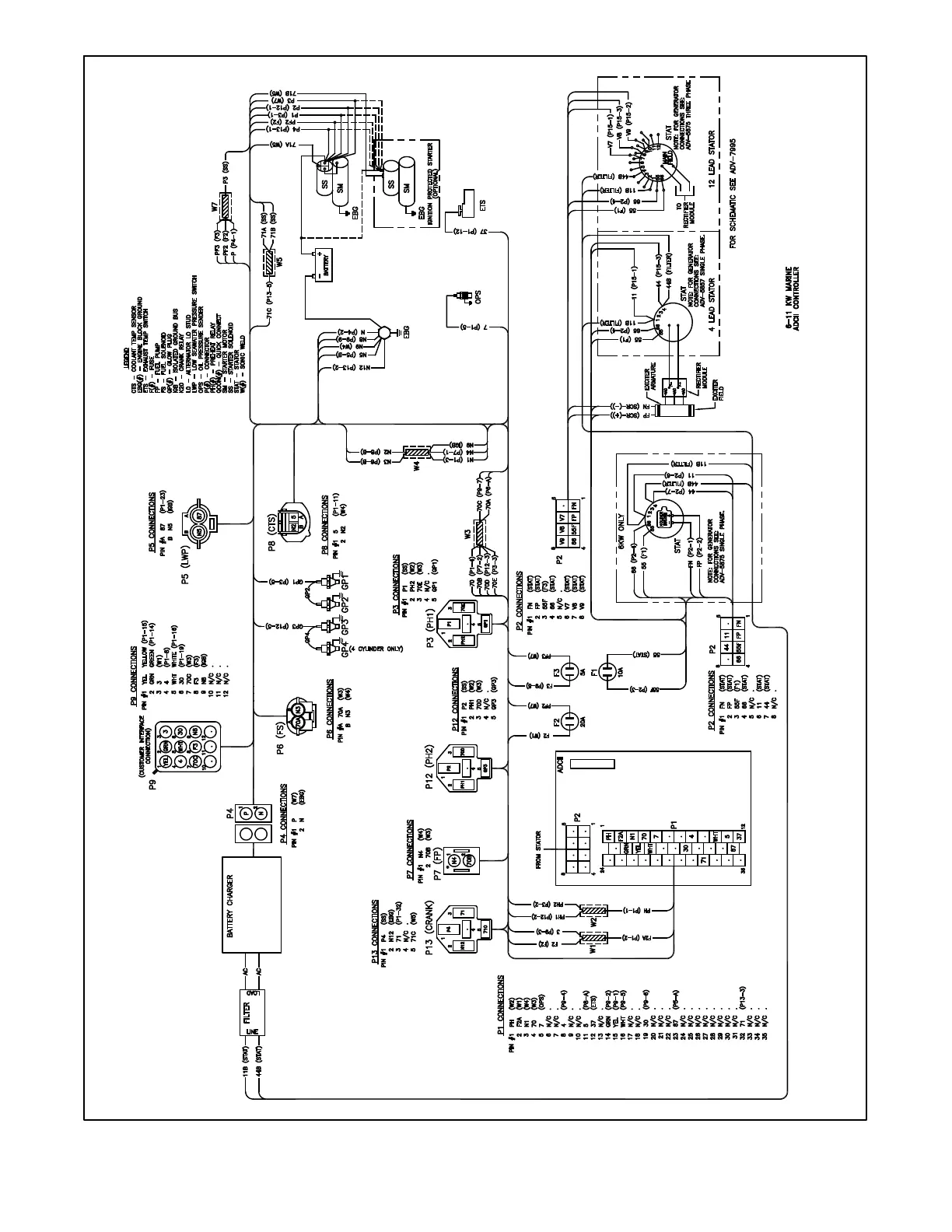
Figure 6 Wiring Diagram (Point-to-Point)

Other manuals for Kohler 9EFKOZD

Related product manuals