EasyManua.ls Logo

Kool-It KGF-23 - Page 11

Kool-It KGF-23
16 pages
Print Icon
To Next Page IconTo Next Page
To Next Page IconTo Next Page
To Previous Page IconTo Previous Page
To Previous Page IconTo Previous Page
Loading...
Service and Installation Manual
12
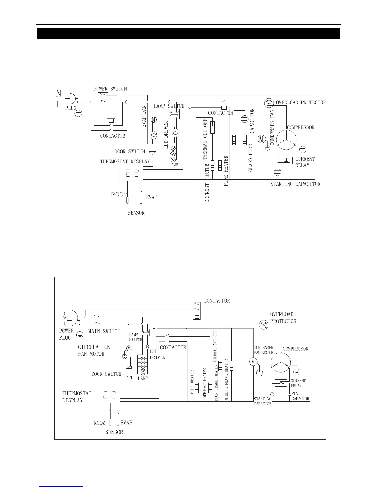
WIRING DIAGRAM
MODEL:KGF-23
MODEL: KGF-48DV

Related product manuals