EasyManua.ls Logo

koppel KV 36FM-ARF21 - Refrigerant pipe installation

Default Icon
144 pages
Print Icon
To Next Page IconTo Next Page
To Next Page IconTo Next Page
To Previous Page IconTo Previous Page
To Previous Page IconTo Previous Page
Loading...
Outdoor unit installation (Side Discharge Unit)
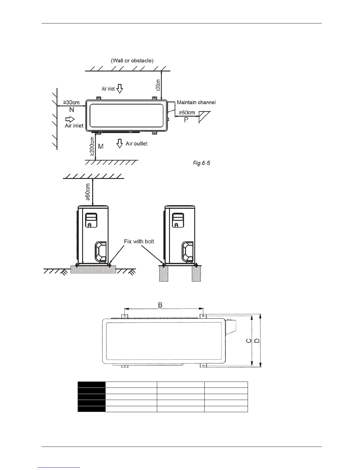
4. Outdoor unit installation (Side Discharge Unit)
4.1 Service space for outdoor unit
4.2 Bolt pitch
Model B C D
24K 560 335 360
36K 624 366 396
48K 634 404 448
60K 634 404 448
4.3 Install the Unit
Since the gravity center of the unit is not at its physical center, so please be careful when lifting it with a sling.
Never hold the inlet of the outdoor unit to prevent it from deforming.
90

Table of Contents

Related product manuals