EasyManua.ls Logo

KOTA ECO - Equipment Overview

Default Icon
24 pages
Print Icon
To Next Page IconTo Next Page
To Next Page IconTo Next Page
To Previous Page IconTo Previous Page
To Previous Page IconTo Previous Page
Loading...
7
ID.EQP.09 - INSTRUCTION MANUAL KOTA ECO - REV03 - 06.05.2023
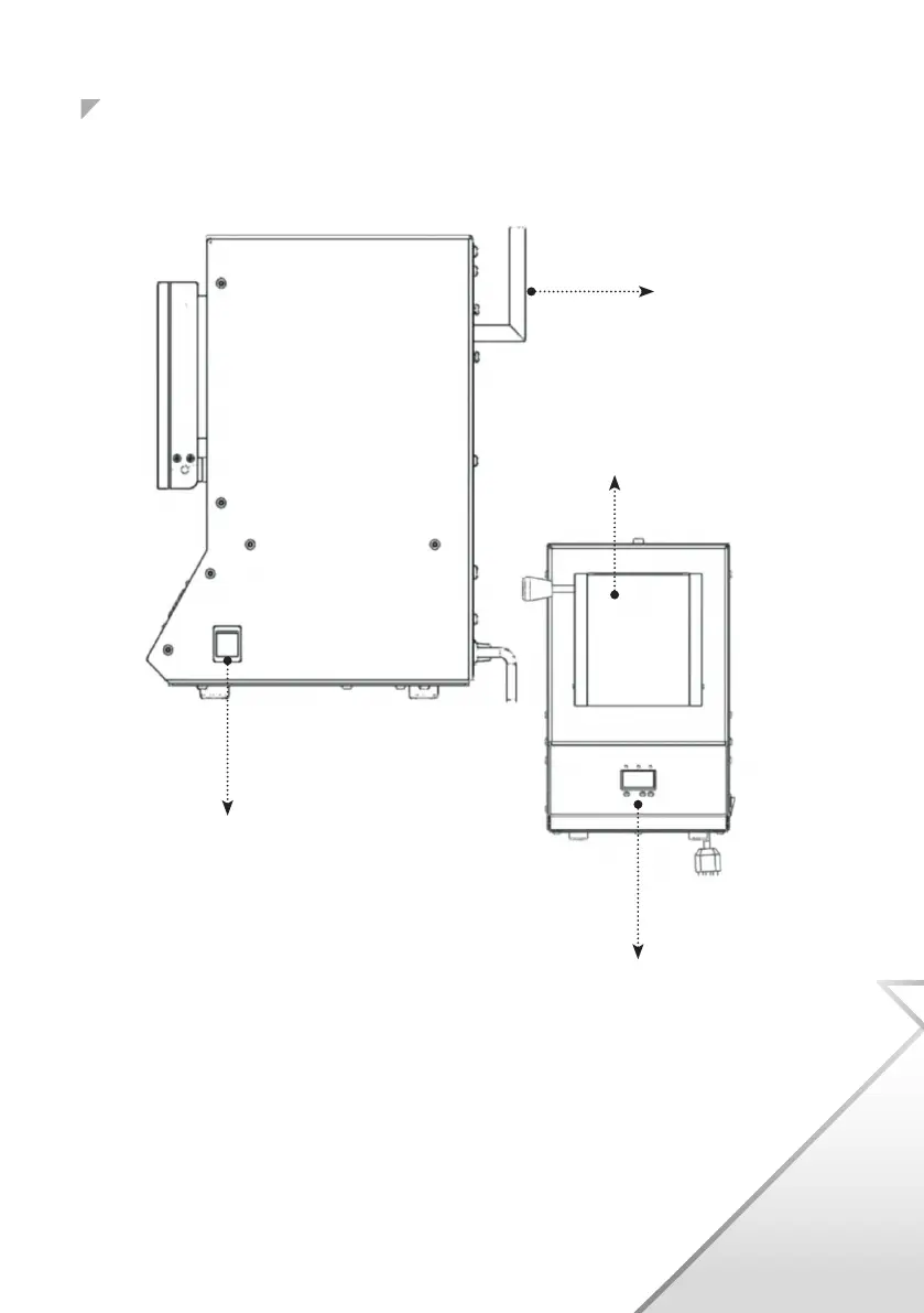
6. EQUIPMENT OVERVIEW
POWER BUTTON
LED PANEL
ALUMINUM DOOR
CHIMNEY