EasyManua.ls Logo

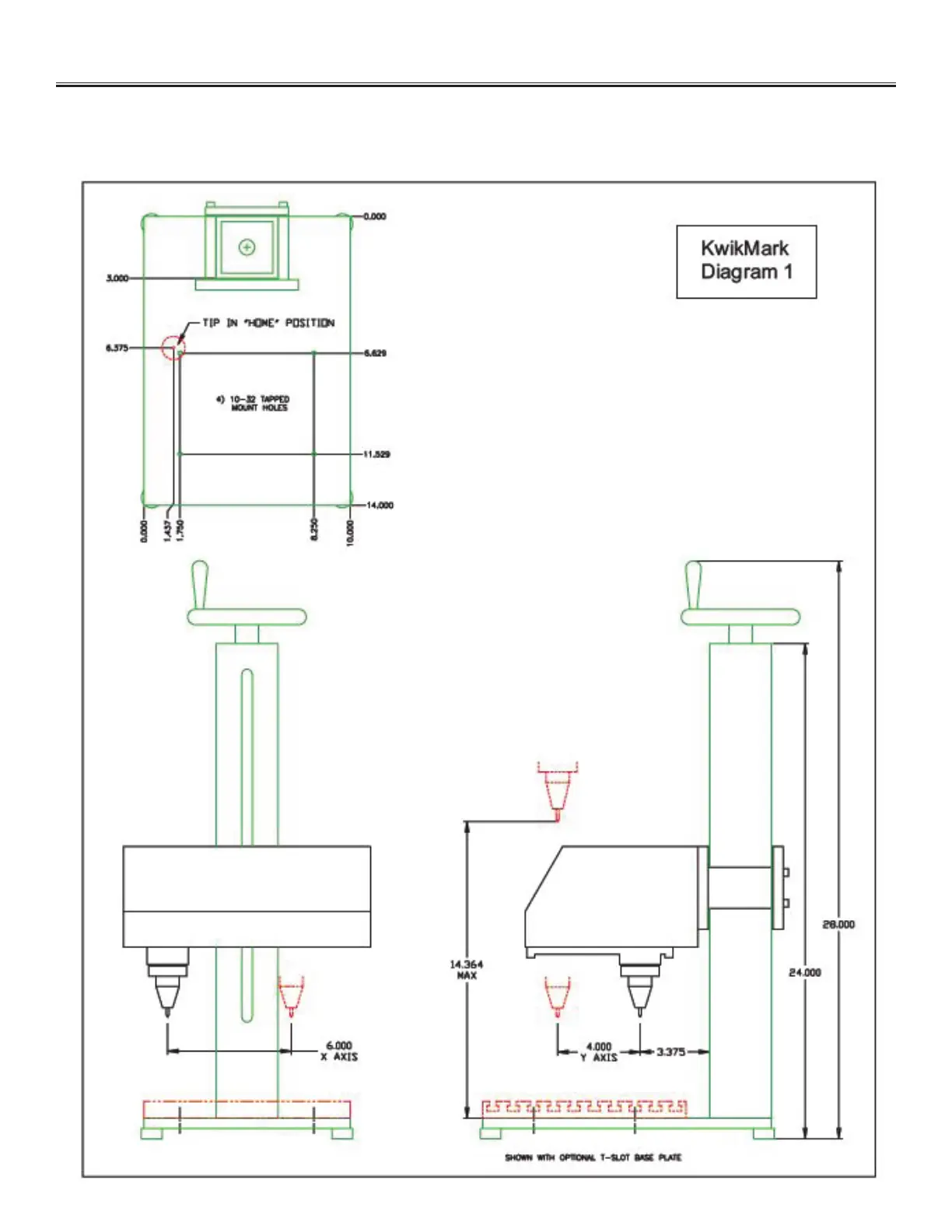
Kwik Mark KM-64 - General Machine Layout Diagram

Kwik Mark KM-64
47 pages
Print Icon
To Next Page IconTo Next Page
To Next Page IconTo Next Page
To Previous Page IconTo Previous Page
To Previous Page IconTo Previous Page
Loading...
Section 6.0 - Machine Diagrams
Work Safely. Always wear safety glasses near the machine.