EasyManua.ls Logo

Laars VW - Page 18

Laars VW
32 pages
Print Icon
To Next Page IconTo Next Page
To Next Page IconTo Next Page
To Previous Page IconTo Previous Page
To Previous Page IconTo Previous Page
Loading...
LAARS HEATING SYSTEMS
Page 18
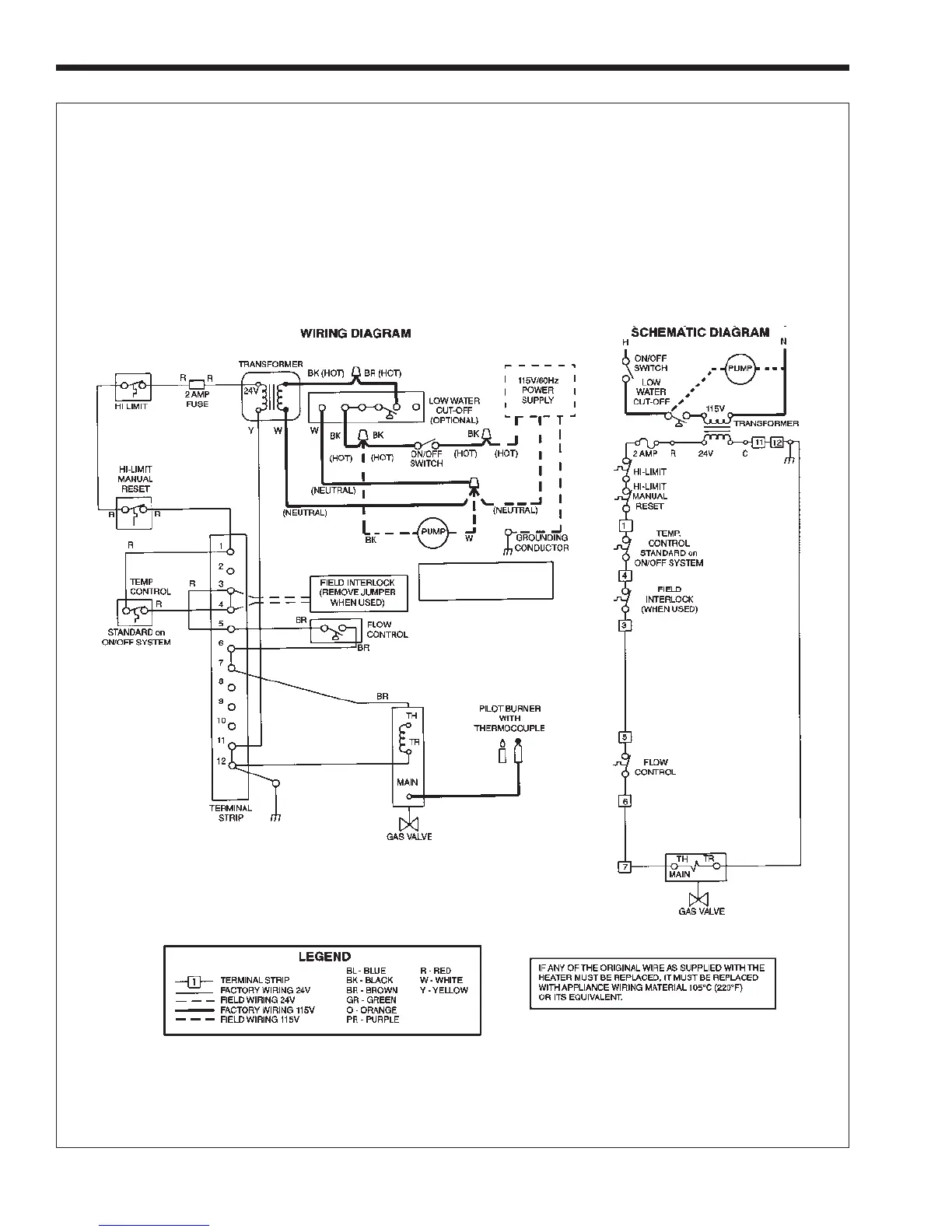
Figure 26. Typical example of wiring schematic, System 1.
IGNITION SYSTEM NO. 1 - STANDING PILOT
ON/OFF OR MECHANICAL MODULATION
Volume Water Heaters (325-400) Version B
Natural or Propane Gas
PUMP INCLUDED ON PW
MODELS, FIELD SUPPLIED
ON VW MODELS

Table of Contents

Related product manuals