EasyManua.ls Logo

laguna T1002 - Page 24

laguna T1002
49 pages
Print Icon
To Next Page IconTo Next Page
To Next Page IconTo Next Page
To Previous Page IconTo Previous Page
To Previous Page IconTo Previous Page
Loading...
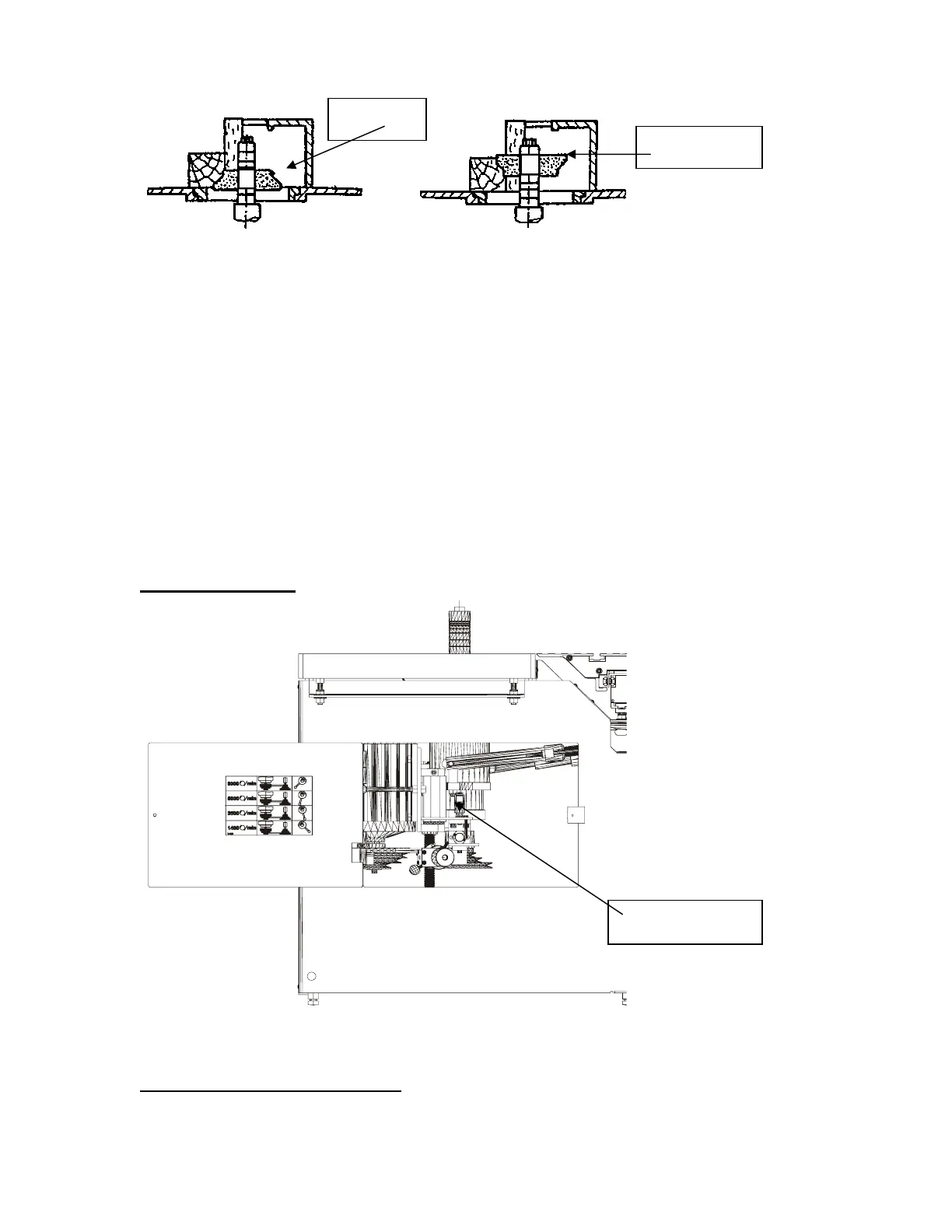
Note: Always mount the cutter head as close to the bottom of the spindle as
practical. This will minimize vibration, reduce stress on the machine and improve
the surface finish of the cut.
8. Fit the cutter head. Ensure that the cutter is fitted for the correct rotation.
Note: When fitting the spacers, make sure that the security ring is fitted [the
ring with the socket allen screws]. The security ring ensures that the cutter will
not loosen during motor breaking. Always tighten the two allen set screws before
operating the machine.
9. Tighten the lock bolt.
10. Refit the table rings [Select the rings that will minimize the gap between
the cutter and the table rings]. Adjust the height and angle of the cutter.
11. Release the shaft-locking pin, rotate the cutter shaft by hand to ensure
that it rotates freely and does not contact any part of the machine or the
shaper fence.
12. Re-lock the hinged cover in place and adjust the hold down and hold in
clamps.
Speed selection
Advised
Not advised
Ratchet handle
The speed selection will depend on various factors such as the type of wood,
diameter of cutter, cutter material, etc.
To change the spindle speed
24