EasyManua.ls Logo

Leisure PAS241MB - Refrigerator Components

Leisure PAS241MB
32 pages
Print Icon
To Next Page IconTo Next Page
To Next Page IconTo Next Page
To Previous Page IconTo Previous Page
To Previous Page IconTo Previous Page
Loading...
7 / 30 EN
Refrigerator / User Manual
2 Your refrigerator
C
*Optional: Figures in this user manual are schematic and may not match the product exactly. If
the relevant parts are not available in the product you purchased, it applies to other models.
2
1
3
*4
5
*6
*7
*8
11
10
13
14
9
*15
*16
*17
1212
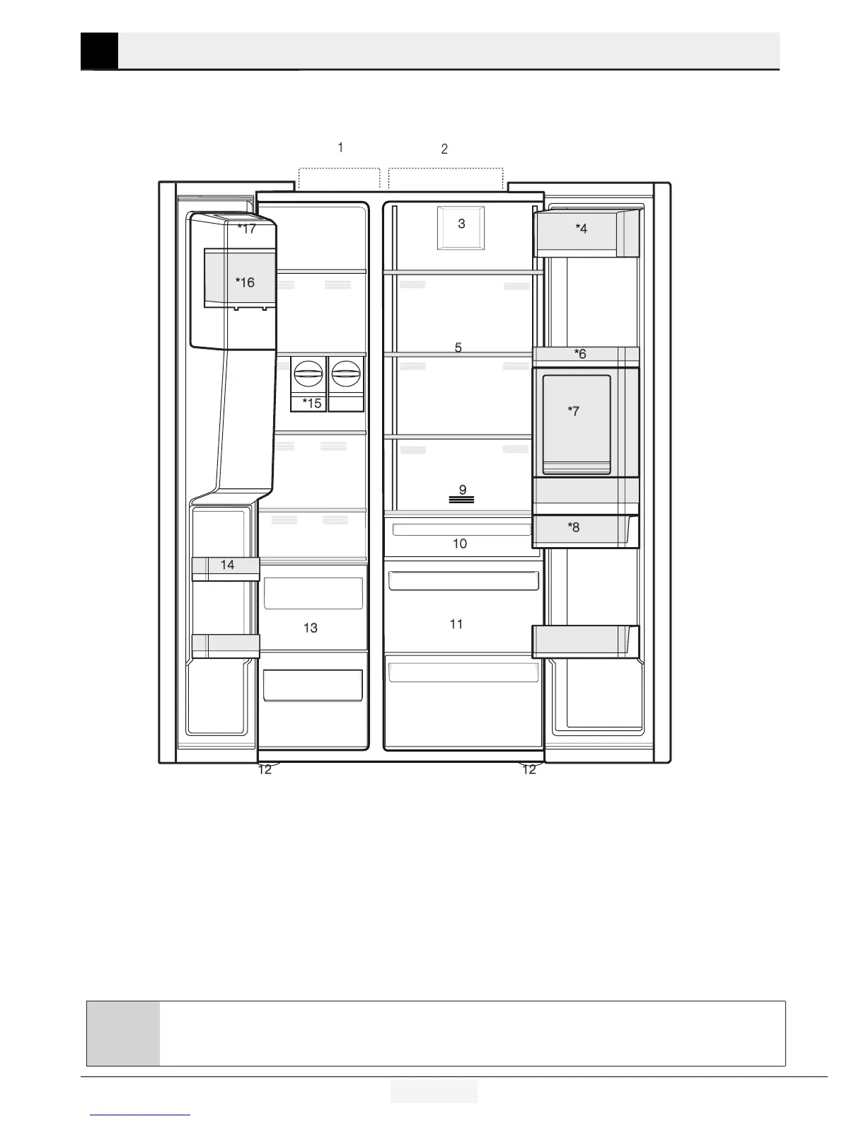
1- Freezer compartment
2- Fridge compartment
3- Fan
4- Butter-cheese compartments
5- Glass shelves
6- Fridge compartment door racks and egg
compartment
7- Minibar accessory
8- Water dispenser tank
9- Odour filter
10- Chiller compartment
11- Crisper compartment
12- Adjustable feet
13- Frozen food storage compartments
14- Freezer compartment door racks
15- Ice makers
16- Ice storage compartment
17- Ice maker decorative cover