EasyManua.ls Logo

Lennox COMFAIR HH 50

Lennox COMFAIR HH 50
32 pages
To Next Page IconTo Next Page
To Next Page IconTo Next Page
To Previous Page IconTo Previous Page
To Previous Page IconTo Previous Page
Loading...
• 21 •
A
C
B
88
B
D11 11
E
25
25
174 25
G
5088 50
25
FF
204 25
25
A
C
B
88
B
44
44
21
21
1111
D
E
2525
FF174
202 202
404
2525
G50
88
50
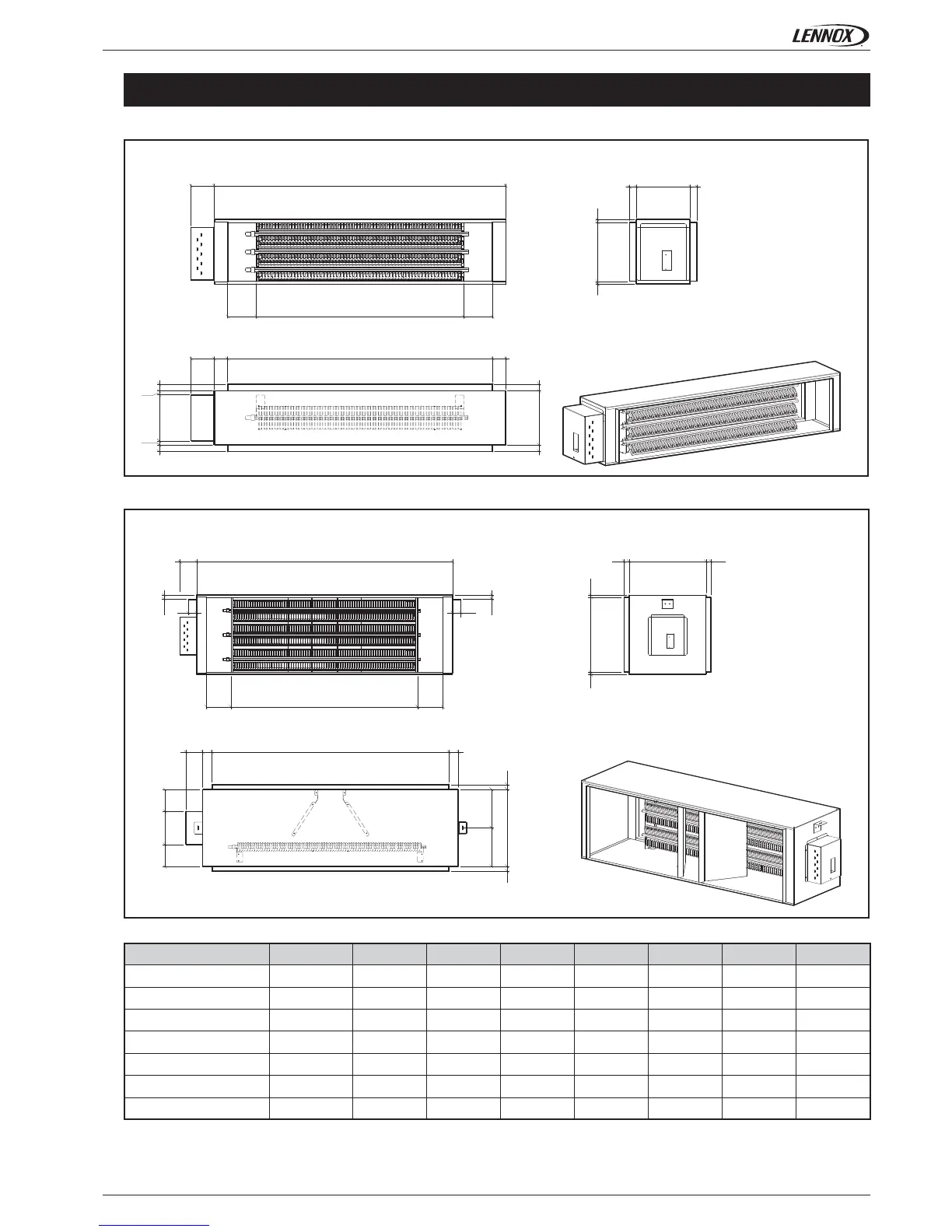
10 20 30 40 50 60 70
648 998 1098 1338 1338 1342 2029
84 159 109 128 128 131 *
380 580 780 980 980 980 1929
197 197 222 222 272 394 394
204 204 204 204 204 404 404
15 15 15 15 15 115 115
548 898 998 1238 1238 1242 1929
Application Guide COMFAIR HH-AGU-1107-E
ACCESSORIES - HH
SRE (HEATING SECTION WITH ELECTRIC HEATER - 380V)
SIZES 10 to 50
SIZES 60 and 70
COMFAIR HH
Amm
Bmm
Cmm
Dmm
Emm
Fmm
Gmm

Other manuals for Lennox COMFAIR HH 50

Related product manuals