EasyManua.ls Logo

Lennox CompleteHeat HM30

Lennox CompleteHeat HM30
9 pages
To Next Page IconTo Next Page
To Next Page IconTo Next Page
To Previous Page IconTo Previous Page
To Previous Page IconTo Previous Page
Loading...
3DJH
+2: 7+( &RPSOHWH+HDW
70
6<67(0 :25.6
7KH &RPSOHWH+HDW V\VWHP FRQVLVWV RI D KHDWLQJ PRGXOH +0 WKDW SURGXFHV KRW ZDWHU DQG DQ DLU KDQ
GOLQJ PRGXOH $0 WKDW VHQGV ZDUPHG DLU WKURXJK WKH KRPHV GXFW V\VWHP 7KH WZR PRGXOHV PD\ EH
LQVWDOOHG WRJHWKHU FORVH FRXSOHG RU DSDUW UHPRWH
7KH V\VWHPV RSHUDWLRQ EHJLQV ZKHQ FROG SRWDEOH ZDWHU ILOOV WKH ZDWHU VWRUDJH WDQN WKURXJK WKH SLSH DW
WKH WRS RI WKH +0 XQLW :KHQ KHDW LV QHHGHG WR SURGXFH ZDUP ZDWHU RU DLU WKH +0 FRQWURO WHOOV WKH
FRPEXVWLRQ DLU EORZHU WR GUDZ LQ RXWVLGH DLU IRU XVH LQ FRPEXVWLRQ $IWHU D VKRUW VDIHW\ GHOD\ D IXHO PL[
WXUH LV VHQW LQWR WKH EXUQHU ZKHUH LW LV LJQLWHG E\ DQ HOHFWURQLF VSDUN %XUQLQJ IXHO PRYHV WKURXJK WKH
VWDLQOHVV VWHHO KHDW H[FKDQJHU LQVLGH WKH ZDWHU VWRUDJH WDQN 7KH ZDWHU VXUURXQGLQJ WKH KHDW H[FKDQJHU LV
KHDWHG XQWLO WKH ZDWHU WHPSHUDWXUH UHDFKHV WKH GHVLUHG VHWSRLQW RQ WKH ZDWHU WKHUPRVWDW GLDO
&RPEXVWLRQ SURGXFWV WUDYHO RXW RI WKH KHDW H[FKDQJHU FRQGHQVDWH ZDWHU LV GUDLQHG DQG H[KDXVW JDVHV
DUH YHQWHG VDIHO\ WR WKH RXWGRRUV +RW ZDWHU LV GLUHFWHG IURP WKH +0 WR IDXFHWV VKRZHU KHDGV DQG
DSSOLDQFHV VXFK DV WKH GLVKZDVKHU DQG ZDVKLQJ PDFKLQH WKURXJK WKH SOXPELQJ ORFDWHG RQ WRS RI WKH
+0 XQLW
:KHQ WKH URRP WKHUPRVWDW VHQVHV D QHHG IRU KHDW WKH $0 ZDWHU FLUFXODWLQJ SXPS GUDZV KRW ZDWHU
IURP WKH +0 KHDWLQJ PRGXOH DQG URXWHG WKURXJK WKH $0 VSDFH KHDWLQJ FRLO 7KH DOXPLQLXP DQG
FRSSHU FRLO DEVRUEV KHDW IURP WKH ZDWHU 7KH EORZHU WXUQV RQ DQG H[WUDFWV KHDW IURP WKH FRLO :DUPHG DLU
LV VHQW WKURXJK WKH DLU GXFW V\VWHP LQWR WKH KRPH :DWHU FLUFXODWHV EDFN WR WKH +0 XQLW WR EH UHKHDWHG
XQWLO WKH URRP WHPSHUDWXUH UHDFKHV WKH WKHUPRVWDW VHWWLQJ
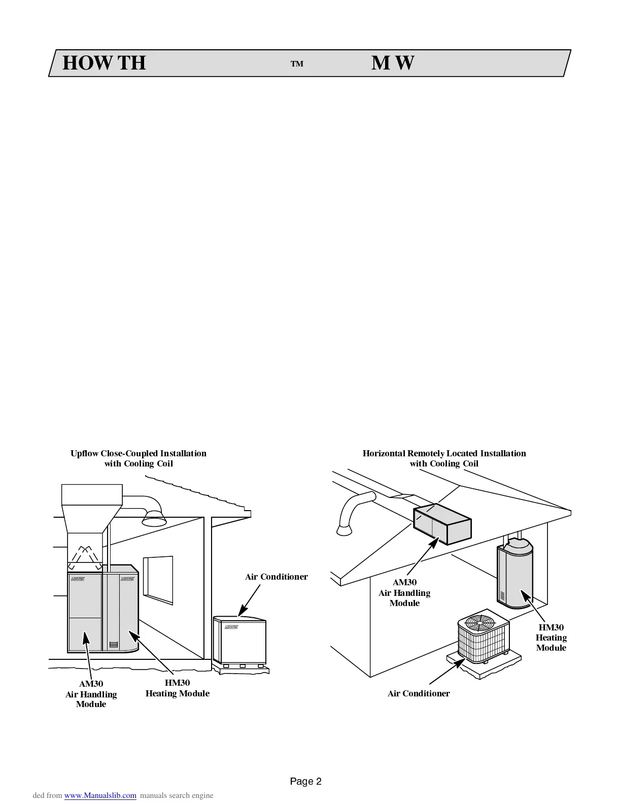
&RPSOHWH+HDW 7\SLFDO $SSOLFDWLRQV
8SIORZ &ORVH&RXSOHG ,QVWDOODWLRQ
ZLWK &RROLQJ &RLO
+RUL]RQWDO 5HPRWHO\ /RFDWHG ,QVWDOODWLRQ
ZLWK &RROLQJ &RLO
$LU &RQGLWLRQHU
$LU &RQGLWLRQHU
$0
$LU +DQGOLQJ
0RGXOH
+0
+HDWLQJ 0RGXOH
+0
+HDWLQJ
0RGXOH
$0
$LU +DQGOLQJ
0RGXOH

Related product manuals