EasyManua.ls Logo

Lennox EL296UH070XV36B - Page 47

Lennox EL296UH070XV36B
67 pages
To Next Page IconTo Next Page
To Next Page IconTo Next Page
To Previous Page IconTo Previous Page
To Previous Page IconTo Previous Page
Loading...
Page 47
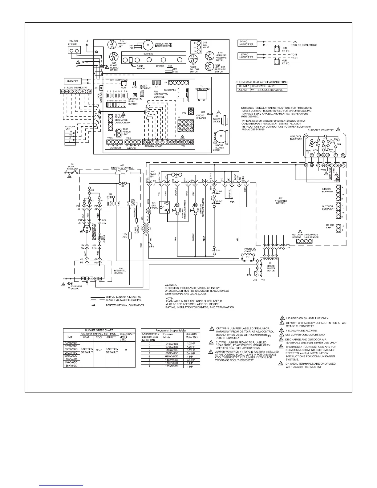
Figure 60
EL296UHV Schematic Wiring Diagram

Other manuals for Lennox EL296UH070XV36B

Related product manuals