EasyManua.ls Logo

Lennox EL296UH090XV36C - Page 74

Lennox EL296UH090XV36C
114 pages
To Next Page IconTo Next Page
To Next Page IconTo Next Page
To Previous Page IconTo Previous Page
To Previous Page IconTo Previous Page
Loading...
Page 74
2” EXTENSION FOR 2” PVC
PIPE1” EXTENSION FOR 3”
PVC PIPE
1-1/2” ACCELERATOR
FURNACE
EXHAUST
PIPE
FURNACE
INTAKE
PIPE
4''
GLUE EXHAUST
END FLUSH INTO
TERMINATION
FLAT
SIDE
FLUSH-MOUNT SIDE WALL TERMINATION KIT
51W11 (US) or 51W12 (Canada)
FIGURE 36
DIRECT VENT CONCENTRIC ROOFTOP TERMINATION
71M80, 69M29 or 60L46 (US)
44W92 or 44W93 (Canada)
Minimum
Above Average
Snow
Accumulation
SHEET METAL STRAP
(Clamp and sheet metal strap
must be field installed to support
the weight of the termination kit.)
FLASHING
(Not Furnished)
CLAMP
FIELD-PROVIDED
REDUCER MAY BE REQUIRED
TO ADAPT DIFFERENT VENT
PIPE SIZE TO TERMINATION
INTAKE
Accelerator not required for
3” concentric
12” (305mm)
FIGURE 37
12” (305mm) Min.
above grade or
average snow ac
cumulation.
DIRECT VENT CONCENTRIC WALL TERMINATION
71M80, 69M29 or 60L46 (US)
44W92 or 44W93 (Canada)
INTAKE
AIR
EXHAUST
AIR
INTAKE
AIR
INTAKE
AIR
EXHAUST
AIR
OUTSIDE
WALL
GRADE
CLAMP
(Not Furnished)
FIELD-PROVIDED
REDUCER MAY BE
REQUIRED TO ADAPT
DIFFERENT VENT PIPE
SIZE TO TERMINATION
Accelerator not required
for 3” concentric
FIGURE 38
EXHAUST
VENT
INTAKE
AIR
5-1/2”
(140mm)
Front View
12”
(305mm)
5”
(127mm)
18” MAX.
(457mm)
EXHAUST VENT
INTAKE
AIR
OPTIONAL VENT TERMINATION FOR MULTIPLE UNIT
INSTALLATION OF DIRECT VENT WALL TERMINATION KIT
(30G28 or 81J20)
Inches (mm)
Side View
12” (305mm) Min.
above grade or
cumulation.
optional intake elbow
FIGURE 39
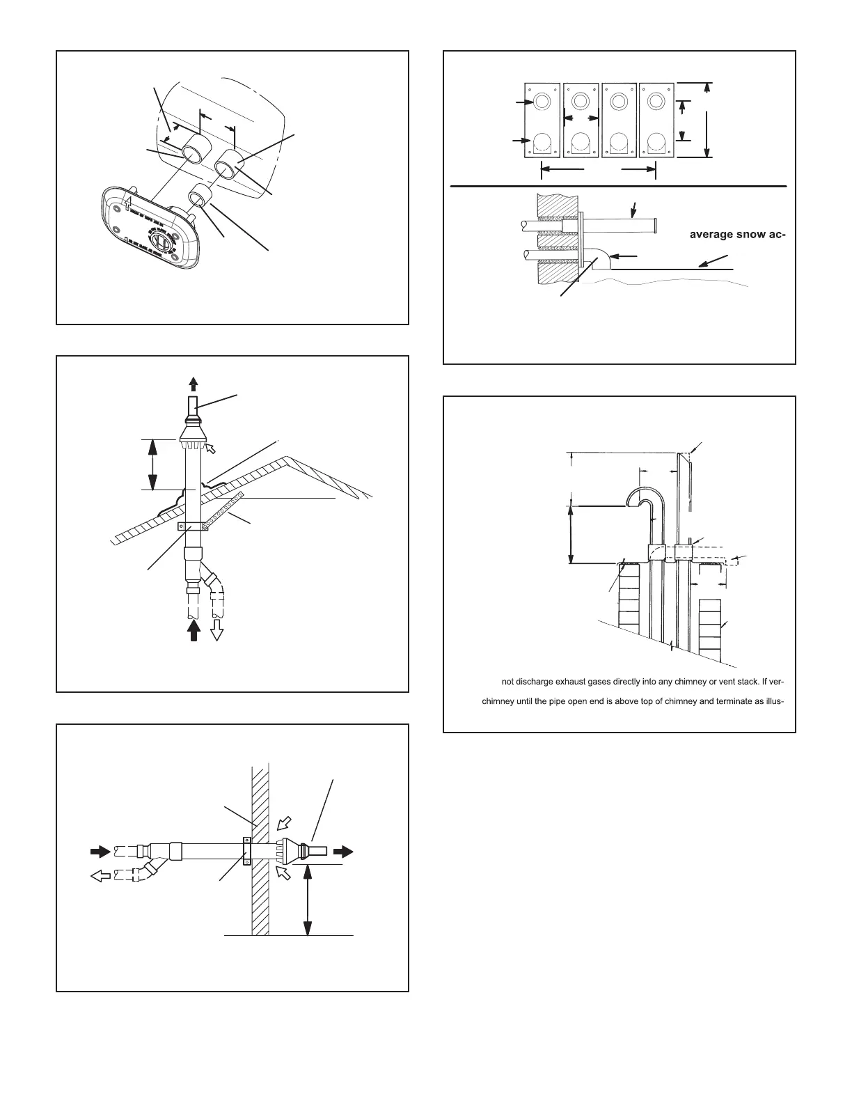
DIRECT VENT APPLICATION
USING EXISTING CHIMNEY
NOTE - Do
tical discharge through an existing unused chimney or stack is required, insert piping
inside
trated. In any exterior portion of chimney, the exhaust vent must be insulated.
8” - 12”
(203mm - 305mm)
3” - 8”
(76mm-
203mm)
3” - 8”
(76mm-
203mm)
STRAIGHT-CUT OR
ANGLE-CUT IN DIRECTION
OF ROOF SLOPE *
SHOULDER OF FITTINGS
PROVIDE SUPPORT
OF PIPE ON TOP PLATE
ALTERNATE
INTAKE PIPE
INTAKE PIPE
INSULATION (optional)
EXTERIOR
PORTION OF
CHIMNEY
INSULATE
TO FORM
SEAL
SHEET
METAL TOP
PLATE
Minimum 12” (305MM)
above chimney top
plate or average snow
accumulation
FIGURE 40
Details of Exhaust Piping Terminations for Non-Direct
Vent Applications
Exhaust pipes may be routed either horizontally through
an outside wall or vertically through the roof. In attic or
closet installations, vertical termination through the roof is
preferred. FIGURE 41 and FIGURE 42 show typical ter-
minations.
1 - Exhaust piping must terminate straight out or up as
shown. The termination pipe must be sized as listed
in TABLE 27.The specied pipe size ensures proper
velocity required to move the exhaust gases away
from the building.

Other manuals for Lennox EL296UH090XV36C

Related product manuals