EasyManua.ls Logo

Lennox EL296UH090XV48C - On Board Links; OPERATING SEQUENCE Non-Communicating Thermostat with Humidity Control Feature and Single-Speed Outdoor Unit

Lennox EL296UH090XV48C
67 pages
To Next Page IconTo Next Page
To Next Page IconTo Next Page
To Previous Page IconTo Previous Page
To Previous Page IconTo Previous Page
Loading...
Page 47
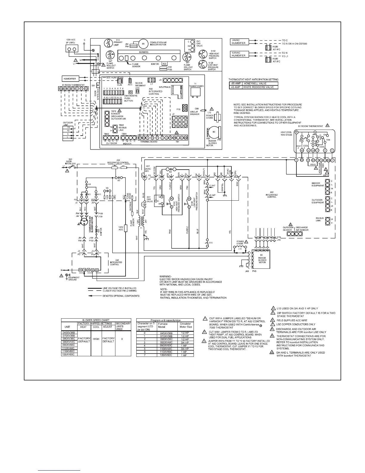
Figure 60
EL296UHV Schematic Wiring Diagram

Other manuals for Lennox EL296UH090XV48C

Related product manuals