EasyManua.ls Logo

Lennox ELS090S4S - Page 6

Lennox ELS090S4S
24 pages
Print Icon
To Next Page IconTo Next Page
To Next Page IconTo Next Page
To Previous Page IconTo Previous Page
To Previous Page IconTo Previous Page
Loading...
Page 6
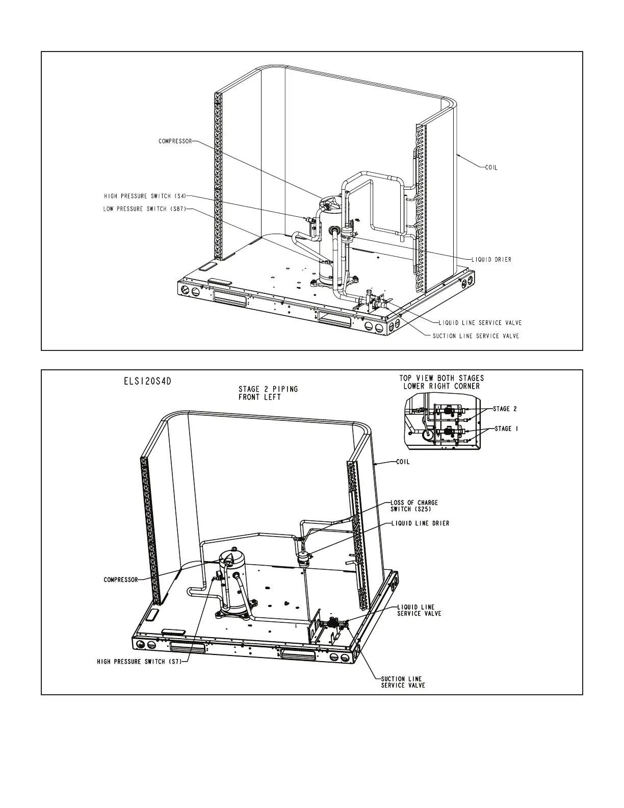
ELS120S4S
ELS120S4D – STAGE 2

Other manuals for Lennox ELS090S4S

Related product manuals