EasyManua.ls Logo

Lennox Enlight LGT240H4M

Lennox Enlight LGT240H4M
106 pages
To Next Page IconTo Next Page
To Next Page IconTo Next Page
To Previous Page IconTo Previous Page
To Previous Page IconTo Previous Page
Loading...

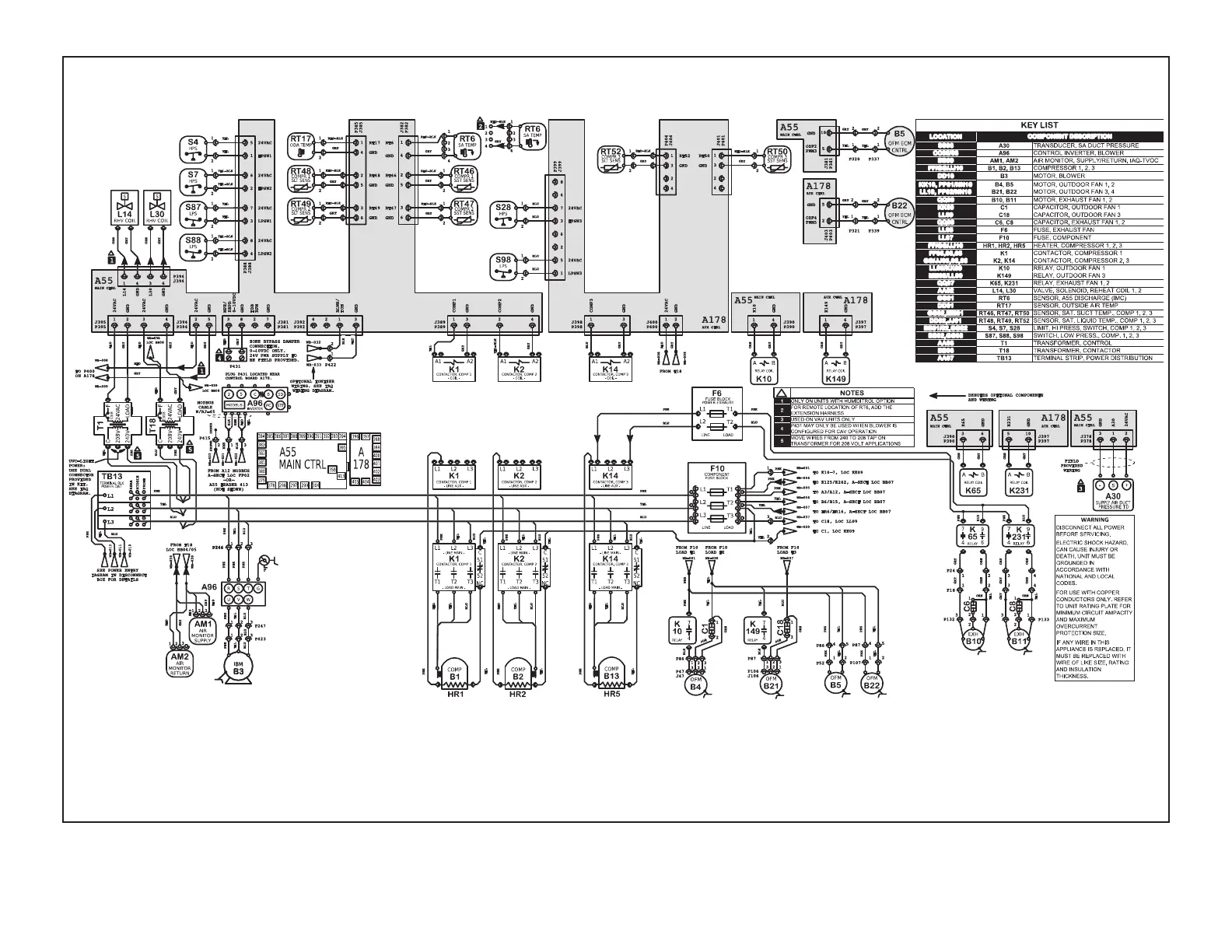
LGT/LCT180 Y Voltage No By-Pass
Model: LGT, LCT 180H − Y−VOLT
COOLING − MSAV NO BYPASS −OR− VAV − 3 COMPRESSORS 4 CONDENSER FANS Supersedes:N/AForm No:
Voltage: 208−240V/3~/60Hz (Y)
Rev: 1
53821501

Related product manuals