EasyManua.ls Logo

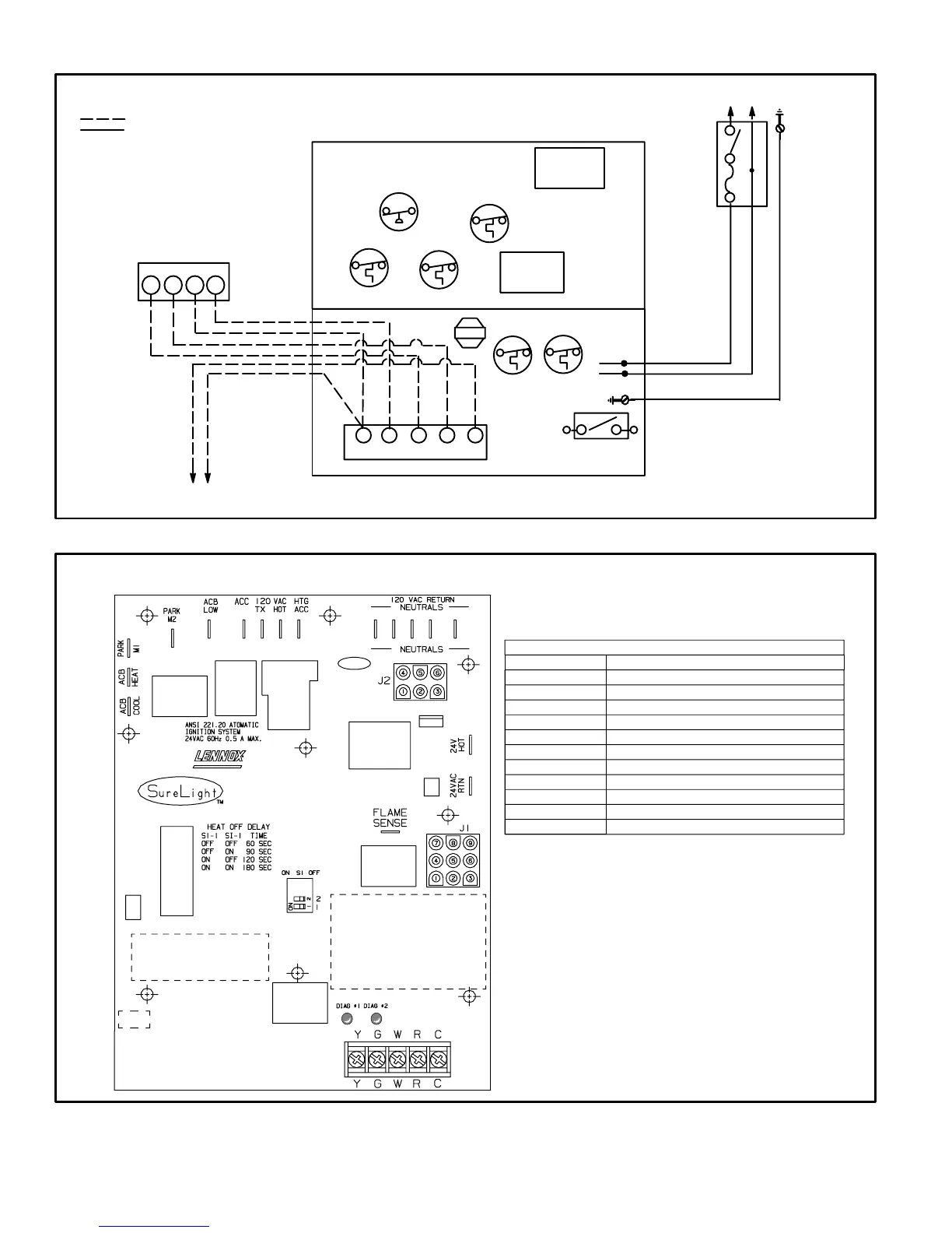
Lennox G24M4/5-120 - Typical G24 M Field Wiring Diagram; 50 A62 Surelight Integrated Control Board

Lennox G24M4/5-120
32 pages
To Next Page IconTo Next Page
To Next Page IconTo Next Page
To Previous Page IconTo Previous Page
To Previous Page IconTo Previous Page
Loading...
Page 22
GWYCR
SURELIGHT CONTROL
THERMOSTAT
GAS
VALVE
SECONDARY
LIMITS
BLACK
TO COMPRESSOR
CONTACTOR
FIELD INSTALLED CLASS II 24V
FIELD INSTALLED LINE VOLTAGE
TYPICAL G24M FIELD WIRING DIAGRAM
(120V, 1PH, 60HZ)
L1 N
(FURNISHED BY INSTALLER)
TRANSFORMER
DOOR
INTERLOCK
SWITCH
COMBUSTION
AIR BLOWER
PRESSURE SWITCH
GND
WHITE
GWRY
PRIMARY LIMIT
FLAME ROLLOUT SWITCHES
FUSED OR CIRCUIT BREAKER
DISCONNECT
120V, 1PH, 60 HZ
FIGURE 20
50A62 SureLight INTEGRATED CONTROL BOARD
(Silicon Nitride Ignition System)
TERMINAL DESIGNATIONS
ACB COOL
ACB HEAT
PARK
ACB LOW
ACC
TX
HOT
HTG ACC
NEUTRALS
24VAC HOT
24VAC RTN
FLAME SENSE
Blower - Cooling Speed (Line Volt)
Blower - Heating Speed (Line Volt)
Alternate Blower Speeds (Dead)
Continuous Low Speed Blower
Accessory Terminal (Line Volt)
120VAC Hot to Transformer
120VAC Hot Input
Heat Only Accessory (Line Volt)
120VAC Neutrals
24VAC Hot from Transformer
24VAC Return from Transformer
Flame Sense Terminal
FIGURE 21

Related product manuals