EasyManua.ls Logo

Lennox G26Q2-50

Lennox G26Q2-50
31 pages
To Next Page IconTo Next Page
To Next Page IconTo Next Page
To Previous Page IconTo Previous Page
To Previous Page IconTo Previous Page
Loading...
Page 18
Indoor Blower Speeds (Refer to Figure 31)
1 - When the thermostat is set to FAN ON," the indoor
blower will run continuously on low speed when there
is no cooling or heating demand.
2 - When there is a cooling demand, the indoor blower will
run on the cooling speed.
3 - When there is a heating demand, the indoor blower
will run on the heating speed.
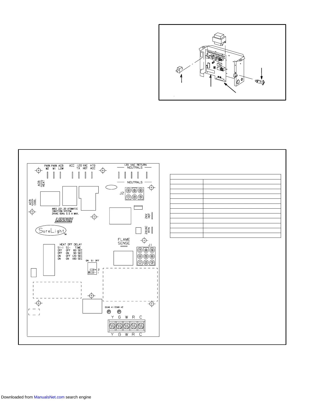
G26 CONTROL BOX
FIGURE 29
CIRCUIT
BREAKER
SURELIGHT
CONTROL
DOOR
INTERLOCK
SWITCH
TRANSFORMER
DETACHABLE
TERMINAL STRIP
SURELIGHT INTEGRATED CONTROL BOARD
FIGURE 30
TERMINAL DESIGNATIONS
ACB COOL
ACB HEAT
PARK
ACB LOW
ACC
TX
HOT
HTG ACC
NEUTRALS
24VAC HOT
24VAC RTN
FLAME SENSE
Blower - Cooling Speed (Line Volt)
Blower - Heating Speed (Line Volt)
Alternate Blower Speeds (Dead)
Continuous Low Speed Blower
Accessory Terminal (Line Volt)
120VAC Hot to Transformer
120VAC Hot Input
Heat Only Accessory (Line Volt)
120VAC Neutrals
24VAC Hot from Transformer
24VAC Return from Transformer
Flame Sense Terminal
2
Downloaded from ManualsNet.com search engine

Other manuals for Lennox G26Q2-50

Related product manuals