EasyManua.ls Logo

Lennox G26Q4/5-100 - SPECIFICATIONS

Lennox G26Q4/5-100
31 pages
To Next Page IconTo Next Page
To Next Page IconTo Next Page
To Previous Page IconTo Previous Page
To Previous Page IconTo Previous Page
Loading...
Page 2
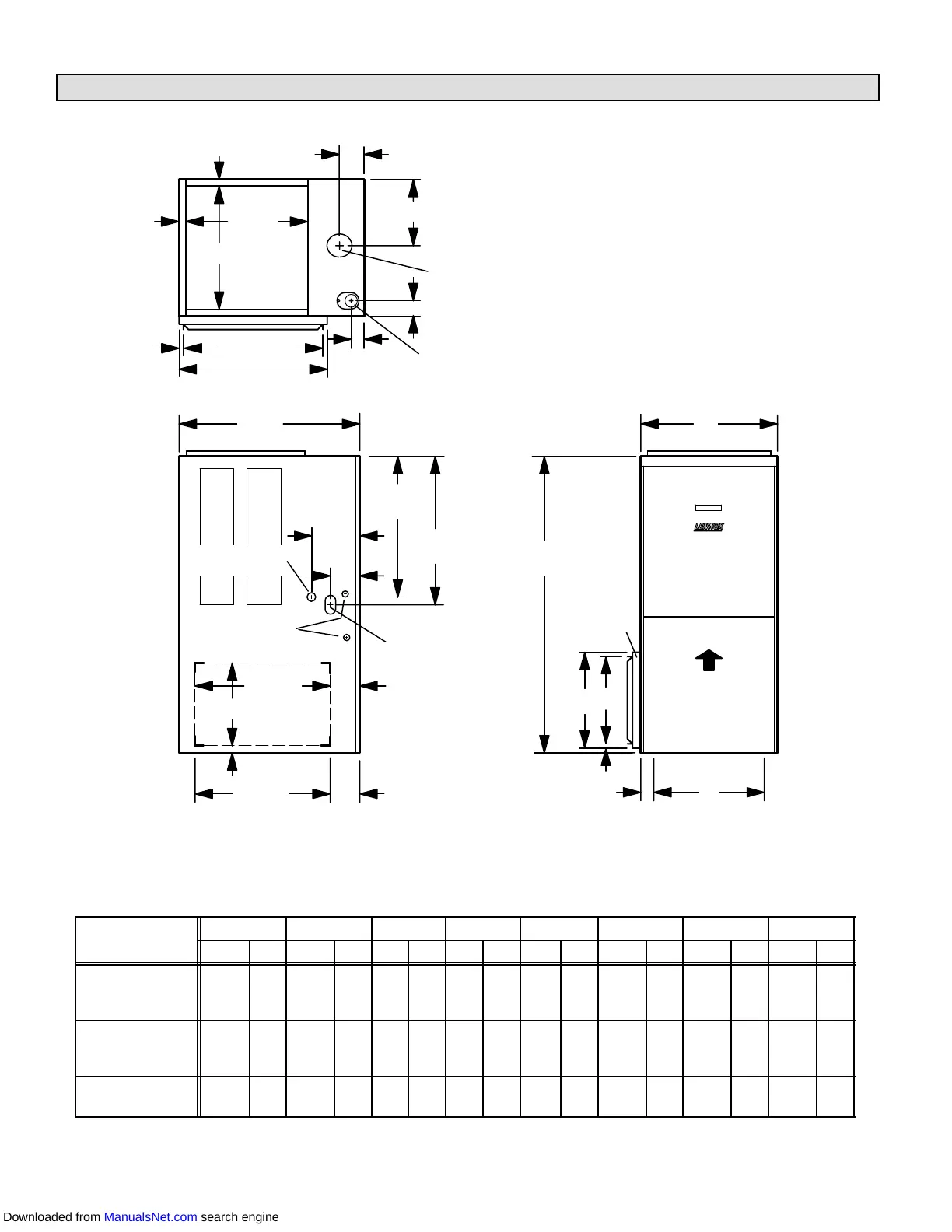
G26 Unit Dimensions - inches (mm)
AIR FLOW
SUPPLY
AIR
OPENING
4 (102)
1 1/16
(41)
A
B
E
Return Air
Knockout (Bottom)
GAS PIPING
INLET
(Both Sides)
18 7/8
(479)
ELECTRICAL
INLETS
(Both Sides)
RETURN AIR
KNOCKOUT
(Either Side)
28 1/2
(724)
C
23 (584)
1Ć15/16 (49)
F
TOP VIEW
FRONT VIEWSIDE VIEW
1 1/16
(41)
46
(1168)
2 1/2 (64)
2
(51)
3 5/8
(92)
23
(584)
4 1/2
(114)
CONDENSATE
DRAIN
(Both Sides)
EXHAUST
AIR OUTLET
COMBUSTION
AIR INTAKE
21 3/4
(552)
7 3/8
(187)
23 3/4 (603)
25 (635)
5/8
(16)
H
G
5/8 (16)
EXTERNAL
SIDE RETURN
AIR FILTER KIT
(Either Side)
(Optional)
23 (584)
D
Return Air
Knockout (Bottom)
4 (102)
Model No
A B C D E F G H
Model No.
in. mm in. mm in. mm in. mm in. mm in. mm in. mm in. mm
G26Q2-50
G26Q3Ć50
G26Q3Ć75
16Ć1/4 413 14Ć1/8 359 12 305 12 305 2Ć1/8 54 7Ć5/8 194 14 356 12Ć3/4 324
G26Q3/4Ć100
G26Q4/5-75
G26Q4/5Ć100
21Ć1/4 540 19Ć1/8 486 18 457 18 457 1Ć5/8 41 10Ć1/8 257 20 508 18Ć3/4 476
G26Q3/4-125
G26Q4/5Ć125
26Ć1/4 667 24Ć1/8 613 18 457 18 457 4Ć1/8 105 12Ć5/8 321 20 508 18Ć3/4 476
Downloaded from ManualsNet.com search engine

Other manuals for Lennox G26Q4/5-100

Related product manuals