EasyManua.ls Logo

Lennox G32V Series - Page 2

Lennox G32V Series
42 pages
To Next Page IconTo Next Page
To Next Page IconTo Next Page
To Previous Page IconTo Previous Page
To Previous Page IconTo Previous Page
Loading...
Page 2
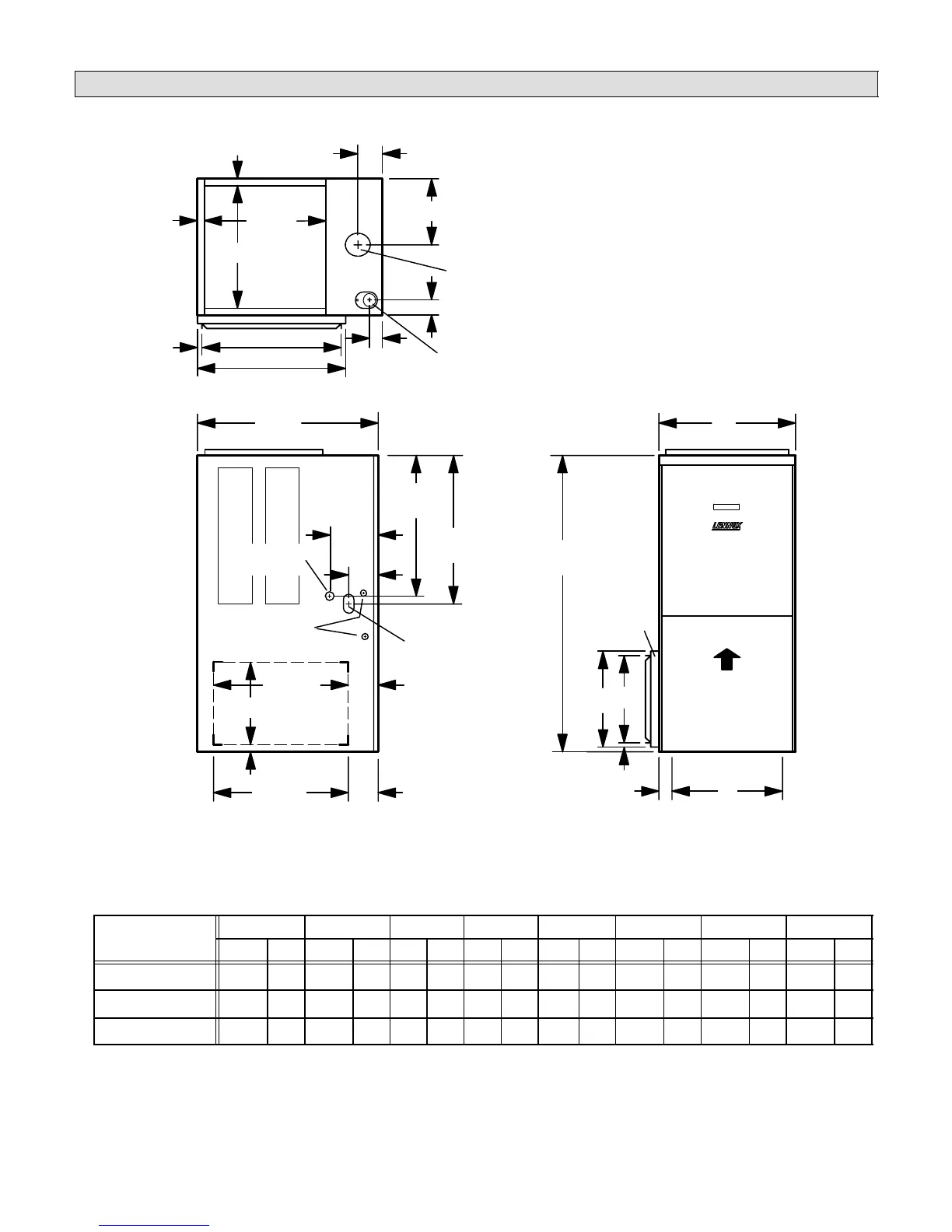
G32V Unit Dimensions - inches (mm)
AIR FLOW
SUPPLY
AIR
OPENING
4 (102)
1 1/16
(41)
A
B
E
Return Air
Knockout (Bottom)
GAS PIPING
INLET
(Both Sides)
18 7/8
(479)
ELECTRICAL
INLETS
(Both Sides)
RETURN AIR
KNOCKOUT
(Either Side)
28 1/2
(724)
C
23 (584)
1-15/16 (49)
F
TOP VIEW
FRONT VIEWSIDE VIEW
1 1/16
(41)
46
(1168)
2 1/2 (64)
2
(51)
3 5/8
(92)
23
(584)
4 1/2
(114)
CONDENSATE
DRAIN
(Both Sides)
EXHAUST
AIR OUTLET
COMBUSTION
AIR INTAKE
21 3/4
(552)
7 3/8
(187)
23 3/4 (603)
25 (635)
5/8
(16)
H
G
5/8 (16)
EXTERNAL
SIDE RETURN
AIR FILTER KIT
(Either Side)
(Optional)
23 (584)
D
Return Air
Knockout (Bottom)
4 (102)
Model No
A B C D E F G H
Model No.
in. mm in. mm in. mm in. mm in. mm in. mm in. mm in. mm
G32V3-75 16-1/4 413 14-1/8 359 12 305 12 305 2-1/8 54 7-5/8 194 14 356 12-3/4 324
G32V5–100 21-1/4 540 19-1/8 486 18 457 18 457 1-5/8 41 10-1/8 257 20 508 18-3/4 476
G32V5–125 26-1/4 667 24-1/8 613 18 457 18 457 4-1/8 105 12-5/8 321 20 508 18-3/4 476

Other manuals for Lennox G32V Series

Related product manuals