EasyManua.ls Logo

Lennox HS29-513 - HS29 Three-Phase Operation

Lennox HS29-513
20 pages
Print Icon
To Next Page IconTo Next Page
To Next Page IconTo Next Page
To Previous Page IconTo Previous Page
To Previous Page IconTo Previous Page
Loading...
Page 17
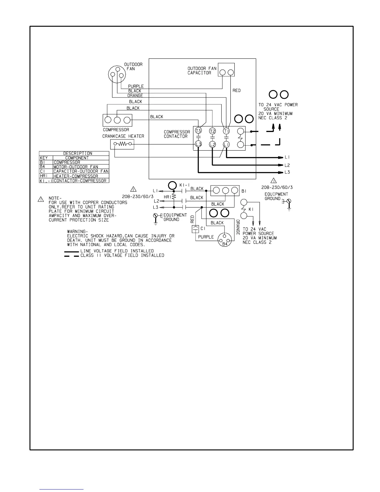
HS29 THREE-PHASE OPERATING SEQUENCE
(ALL COMPRESSORS)
a−HS29 Y", G", and J" Voltage Operation Sequence
This is the sequence of operation for HS29 Y" voltage units. The HS29 G"voltage sequence is the same; however the
J" voltage units have an outdoor fan transformer. The sequence is outlined by numbered steps which correspond to
circled numbers on the adjacent diagram.
NOTE− The thermostat used may be electromechanical or electronic.
NOTE− Transformer in indoor unit supplies power (24 VAC) to the thermostat and outdoor unit controls.
COOLING:
2Cooling demand initiates at Y1 in the thermostat.
324VAC energizes compressor contactor K1.
4K1-1 N.O. closes energizing compressor (B1) and outdoor fan motor (B4).
5Compressor (B1) and outdoor fan motor (B4) begin immediate operation.
END OF COOLING DEMAND:
6Cooling demand is satisfied. Terminal Y1 is de-energized.
7Compressor contactor K1 is de-energized.
8K1-1 opens and compressor (B1) and outdoor fan motor (B4) are de-energized and stop immediately.
5
6
7
1
2
3
4

Related product manuals