EasyManua.ls Logo

Lennox KCC092S4 - Page 42

Lennox KCC092S4
51 pages
To Next Page IconTo Next Page
To Next Page IconTo Next Page
To Previous Page IconTo Previous Page
To Previous Page IconTo Previous Page
Loading...
Page 42
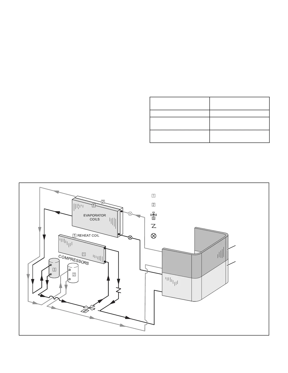
M-Hot Gas Reheat Start-Up and Operation
General
        
operation. These units contain a reheat coil adjacent
        
        
        

          

L14 Reheat Coil Solenoid Valve


reheat coil.
Reheat Setpoint
       


deenergizes. Turn the knob on the dehumidistat to adjust
the setpoint.
Check-Out
       
procedure.
 Make sure reheat is wired as shown in wiring
section.
      
dehumidistat setpoint knob BELOW indoor
       
compressor 2 should be operating.
      
setpoint knob ABOVE indoor relative humidity. The
      
deenergize.
Default Reheat Operation
TABLE 19


Demands
Operation
 


Compressor 2 Cooling*


Compressor 2 Cooling**
      
will operate.

and compressor 1 will operate.
REHEAT MODE REFRIGERANT ROUTING
EXPANSION
VALVES
REFRIGERANT
CIRCUIT 1
REFRIGERANT
CIRCUIT 2
REHEAT
VALVE
CHECK
VALVE
CONDENSER COIL
092/102 STG 1
120/150 STG 2
092/102 STG 2
120/150 STG 1
DRAWING SHOWS
102/120
FIGURE 29

Related product manuals