EasyManua.ls Logo

Lennox LHT078H

Lennox LHT078H
40 pages
To Next Page IconTo Next Page
To Next Page IconTo Next Page
To Previous Page IconTo Previous Page
To Previous Page IconTo Previous Page
Loading...
Page 3
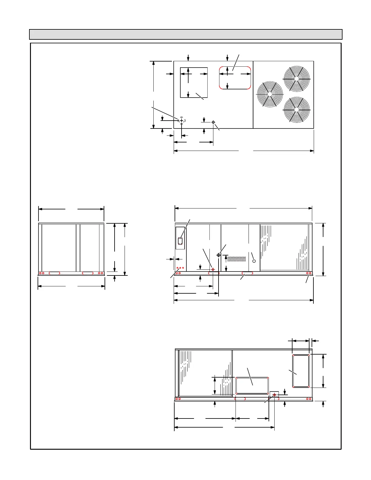
LHT/LDT122, 150H DIMENSIONS - GAS HEAT SECTION SHOWN
END VIEW
601/8
(1527)
581/8
467/8
(1191)
31/2
(89)
433/8
(1102)
(1476)
SIDE VIEW
(Horizontal Openings)
HORIZONTAL
RETURN AIR
OPENING
HORIZONTAL
SUPPLY AIR
OPENING
CONDENSATE
DRAIN (BACK)
53/8
(137)
61/8
(156)
121/8
(308)
15/8
(41)
545/8
(1387)
891/2
(2273)
(762)
(762)
(394)
151/2
(394)
30
151/2
30
BASE
601/8 (1527)
TOP VIEW
BOTTOM RETURN
AIR OPENING
24
(610)
55/8
(143)
61/8
(156)
61/8
(156)
65/8
(168)
28
(711)
27
(686)
20
(508)
BOTTOM
CONDENSATE
1243/8
(3159)
BOTTOM SUPPLY
AIR OPENING
347/8
(886)
BASE
(273)
103/4
7 (178)
7 (178)
BOTTOM
POWER ENTRY
51/2 (140) Dia.
SIDE VIEW
LIFTING HOLES
(FOR RIGGING)
1243/8
(3159)
1231/8
(3127)
OPTIONAL DISCONNECT
(FACTORY INSTALLED)
5/8
(16)
347/8
(886)
53/8
(137)
467/8
(1191)
FORKLIFT SLOTS
(BOTH SIDES)
CONDENSATE
DRAIN (FRONT)
ELECTRIC
INLETS
18-1/2
GAS SUPPLY
INLET
39-7/8
(1013)
OUTLET
FLUE

Related product manuals