EasyManua.ls Logo

Lennox MCC 132 SK

Lennox MCC 132 SK
24 pages
To Next Page IconTo Next Page
To Next Page IconTo Next Page
To Previous Page IconTo Previous Page
To Previous Page IconTo Previous Page
Loading...
MCC_AGU/0102-G • 15 •
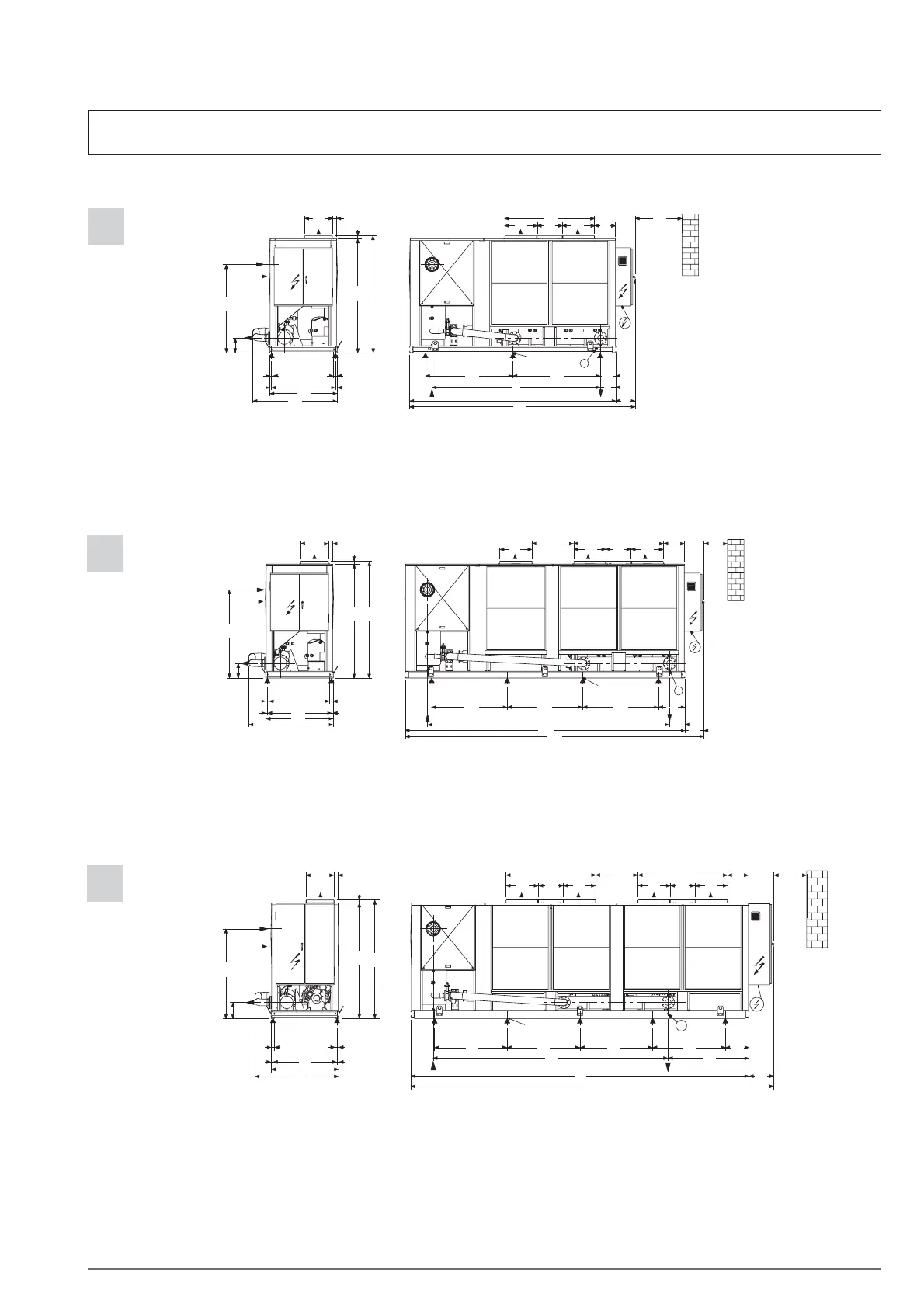
ABMESSUNGEN (Forts.) - DIMENSIONAL DATA (cont'd)
1
2
3
E : Einlass - Inlet
S : Auslass - Outlet
Der Hauptschalter ist eine Option
Main switch is an option
MCC MASCHINE MIT HYDRAULIKMODULOPTION
MCC UNIT WITH HYDRAULIC MODULE OPTION
478
558 426 558 362
50
74
1963
1520
2013
G1/G2/G3 D1/D2/D3 D3/G3 D2/G2
V
D1/G1
60
30
60
30
1450
1500
3876
3545
1500
1541 1000
273
331
AB
1161
1101
S
C
E
n Ø 20
ES
G1/G2/G3/G4 D1/D2/D3/D4 D4/G4 D3/G3 D2/G2 D1/G1
V
478
50
74
1963
1520
2013
S
E
254
60
30
60
30
1450
1300 13001300
5142
4811
1161
1101
558
717
558 426 558
362
1541
1000
n Ø 20
456
331
A
B
S
E
1441
1161
1101
1250 1250
5811
6242
1250 1250 406
431
A
B
478
558 426
1541 725 1541 1000
558 558 426 558
362
1540
1983
2033
30
60
S
E
V
E
S
C
50
D1/D2/D3/D4/D5 D5/G5 D4/G4 D3/G3 D2/G2 D1/G1
n Ø 20
G1/G2/G3/G4/G5
30
60
74

Related product manuals