EasyManua.ls Logo

Lennox MPB012S4S - Page 57

Lennox MPB012S4S
168 pages
To Next Page IconTo Next Page
To Next Page IconTo Next Page
To Previous Page IconTo Previous Page
To Previous Page IconTo Previous Page
Loading...
57
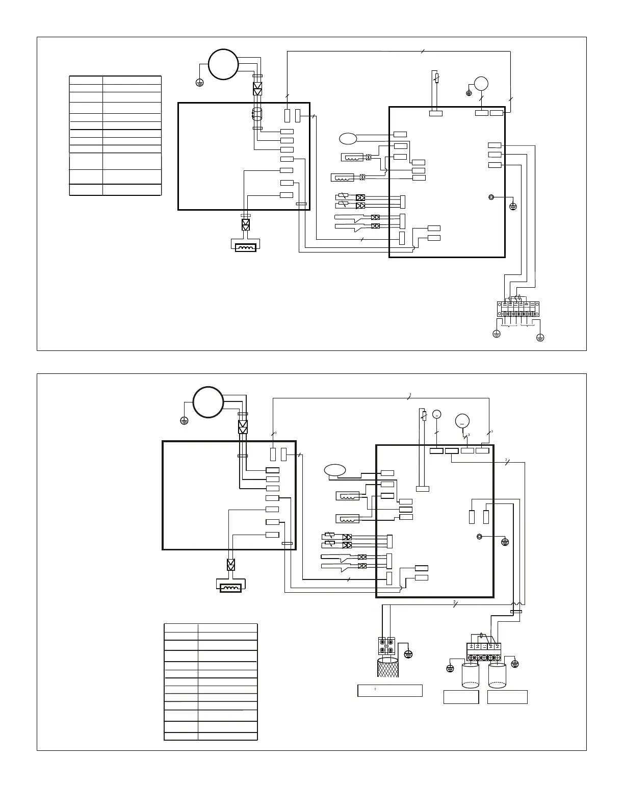
COMP
FM1
MAIN BOARD
U
V
W
Y/G
Y/G
L
L-PRO
T3
T4
CODE PART NAME
COMPRESSOR
HEAT1
4-WAY VALVE
COMP
H-PRO
L-PRO
LOW PRESSURE SWITCH
HIGH PRESSURE SWITCH
T3
T4
OUTDOOR COIL
TEMP.SENSOR
OUTDOOR TEMP.SENSOR
CRANKCASE HEATER
H-PRO
SV
L
PFC INDUCTOR
Y/G
COMPRESSOR DISCHARGE
TEMP.
RED
BLACK
V
U
CN19
CN51
CN55
W
BLACK
RED
7
7
YELLOW
BLUE
P-1
FM1
OUTDOOR DC FAN
CN53
CN3
CN4
CN10
CN40
CN22
CN44
CN8
CN9
CN7
CN2
CN1
CN5
CN54
CN52
3
CN33
CN6
SV
BLUE
BLUE
HEAT2
HEAT1
CN12 CN11
3
3
3
BLACK
RED
BLUE
BLUE
BLUE
YELLOW
RED
BLACK
RED
BLACK
JXI
L2
TO INDOOR UNIT
POWER SUPPLY
Y/G
2
3
L1
1
RED
RED
BLACK
YELLOW
S
BL A C K
YE L L O W
L1
L2
CR AN KC ASE H EA TE R
PA N HE AT ER
HE AT 2
PA N HE AT ER
SE NS OR
V1.0 2015/5/08
Compressor
Control Board
Figure 10. 208/230V MPA030S4S-1P Outdoor Unit Wiring Diagram
COMP
FM1
MAIN BOARD
RED
BLACK
U
V
W
Y/G
Y/G
L
L-PRO
T3
T4
CODE PART NAME
COMPRESSOR
HEAT1
4 WAY VALVE
COMP
EXV
ELECTRIC EXPANSION
VALVE
H-PRO
L-PRO
LOW PRESSURE SWITCH
HIGH PRESSURE SWITCH
T3
T4
OUTDOOR COIL TEMP.
SENSOR
OUTDOOR TEMP. SENSOR
P OW ER S UP PLY
H-PRO
SV
L
PFC INDUCTOR
COMPRESSOR
DISCHARGE
TEMP. SENSOR
RED
BLACK
V
U
CN19
CN51
CN55
W
EXV
BLACK
DRIVER BOARD
RED
7
7
YELLOW
BLUE
P-1
FM1
OUTDOOR DC FAN
CN53
CN20
CN34
CN3
CN4
CN10
CN40
CN22
CN44
CN8
CN9
CN7
CN2
CN1
CN5
CN54
CN52
CN33
ORANGE
ORANGE
M
5
CN6
SV
4 WAY
VALVE
ORANGE
ORANGE
CN12 CN11
BLACK
RED
BLUE
BLUE
BLUE
YELLOW
RED
BLACK
RED
BLACK
TO INDOOR COMM. BUS
XT2
YELLOW
GRAY
S1
S2
NOTEP lease use 2-core
shielded wire.
XT1
L1
L2
L1
L2
2
)(
1
( )
RED
BLACK
MAIN
TO INDOOR UNIT
POWER SUPPLY
HEAT2
HEAT1
CRANKCASE HEATER
PAN HEATER
HEAT2
Figure 11. 208/230V MPA036S4S-1P Outdoor Unit Wiring Diagram

Table of Contents

Related product manuals