EasyManua.ls Logo

Lennox MPB012S4S

Lennox MPB012S4S
168 pages
To Next Page IconTo Next Page
To Next Page IconTo Next Page
To Previous Page IconTo Previous Page
To Previous Page IconTo Previous Page
Loading...
64
IPM & PFC BOARD
CODE
PART NAME
COMPRESSOR
D
HEAT_Y
CT1
AC CURRENT DETECTOR
4-WAY VALVE
COMP
DCFAN1,DCFAN2
H-PRO
L-PRO
LOW PRESSURE SWITCH
HIGH PRESSURE SWITCH
T3
T4
CRANKCASE HEATER
DIODE MODULE
SV
L
PFC INDUCTOR
T5
MAIN BOARD
OUTDOOR DC FAN
2L
1L
XT1
T2B-A B C D E
CN13
E D B A
INDOOR COIL
OUTLET TEMP.
SENSOR
C
ELECTRONIC
EXPANSION
VALVE E
CN30
CN26
CN33
E
D C
ELECTRONIC
EXPANSION
VALVE D
ELECTRONIC
EXPANSION
VALVE C
CN23
B
ELECTRONIC
EXPANSION
VALVE B
CN15
A
ELECTRONIC
EXPANSION
VALVE A
CN8
T5
01NC
RED
YELLOW
L-PRO
H-PRO
9NC
T4
T3
D
12
3
4
5
P-6
C N 19
CN7
C N 20
CN55
C N 24
CN11
C N 25
CN37
C N 17
CN39
C N 18
HEA T_D
HEA T_Y
SV
4- W AY
BLUE
BLUE
RED
BLUE
CN4
CN2
CN3
CN1
COMP
U
V
W
Y/G
DCFAN2
DCFAN1
5
5
CN6
CN5
CN8
CN15
CN9
CN14
7
5
CN6
CN3
L
YELLOW
YELLOW
U
V
W
BLUE
BLACK
RED
Y/G
XT2
XT3
LPPUS REWOP Y
1(A)
2(A)
3(A)
1(B)
2(B)
3(B)
1(C)
2(C)
3(C)
1(D)
2(D)
3(D)
1(E)
2(E)
3(E)
TO A
TO B
TO D
TO E
TO C
BROWN
BLUE
BLACK
BROWN
BLUE
BLACK
BROWN
BLUE
BLACK
BROWN
BLUE
BLACK
BROWN
BLUE
BLACK
CN29
CN21
CN16
CN13
CN39
A
B
C
E
D
WHITE
BLACK
BLACK
BLACK
RED
BLACK
RED
BLACK
P-5
P-4
Ferrite bead
CH1
Ferrite bead
CH2
Ferrite bead
CH3
CT1
PAN HEATER
HEAT_D
6
6
6
6
6
3
3
3
3
3
OUTDOOR COIL
TEMP. SENSOR
OUTDOOR TEMP. SENSOR
DISCHARGE
TEMP. SENSOR
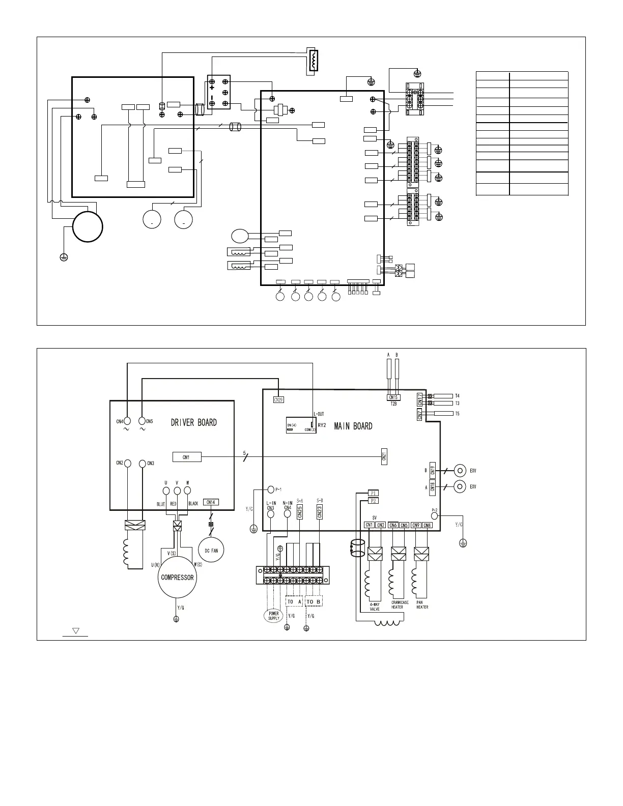
Figure 24. MPA048S4M-1P Outdoor Unit Wiring Diagram
INDO OR COI L OUTL ET
TEMP. SENSOR
BR OW N
BL UE
HE AT 1
HE AT 2
RE AC TO R
BL UE
BL UE
OUTDOOR
TEMPERATURE SE NSOR
OUTDOOR COIL
TEMPERATURE SENSOR
REACT0R2 R05094A
WHIT E
WHIT E
6
3
3
6
1(A)
3(A)
L2
2(A)
L1
BLACK
BLUE
BROWN
BLACK
BLUE
BROWN
BLACK
RED
1(B)
2(B)
3(B)
COMPRE SSOR DI SCHARG E
TEMPER ATURE SENSOR
Figure 25. MPB018S4M-*P Outdoor Unit Wiring Diagram

Table of Contents

Related product manuals