EasyManua.ls Logo

Lennox MWMA012S4-*L - Page 64

Lennox MWMA012S4-*L
168 pages
To Next Page IconTo Next Page
To Next Page IconTo Next Page
To Previous Page IconTo Previous Page
To Previous Page IconTo Previous Page
Loading...
64
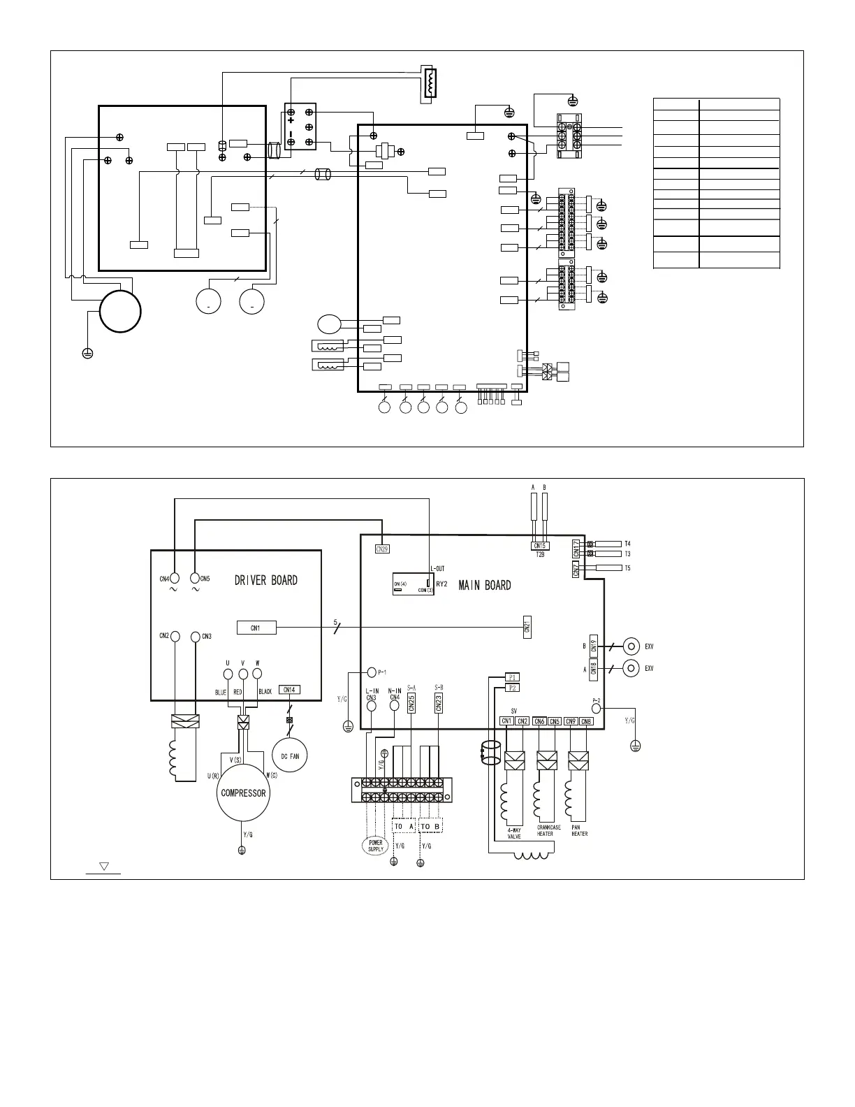
IPM & PFC BOARD
CODE
PART NAME
COMPRESSOR
D
HEAT_Y
CT1
AC CURRENT DETECTOR
4-WAY VALVE
COMP
DCFAN1,DCFAN2
H-PRO
L-PRO
LOW PRESSURE SWITCH
HIGH PRESSURE SWITCH
T3
T4
CRANKCASE HEATER
DIODE MODULE
SV
L
PFC INDUCTOR
T5
MAIN BOARD
OUTDOOR DC FAN
2L
1L
XT1
T2B-A B C D E
CN13
E D B A
INDOOR COIL
OUTLET TEMP.
SENSOR
C
ELECTRONIC
EXPANSION
VALVE E
CN30
CN26
CN33
E
D C
ELECTRONIC
EXPANSION
VALVE D
ELECTRONIC
EXPANSION
VALVE C
CN23
B
ELECTRONIC
EXPANSION
VALVE B
CN15
A
ELECTRONIC
EXPANSION
VALVE A
CN8
T5
01NC
RED
YELLOW
L-PRO
H-PRO
9NC
T4
T3
D
12
3
4
5
P-6
C N 19
CN7
C N 20
CN55
C N 24
CN11
C N 25
CN37
C N 17
CN39
C N 18
HEA T_D
HEA T_Y
SV
4- W AY
BLUE
BLUE
RED
BLUE
CN4
CN2
CN3
CN1
COMP
U
V
W
Y/G
DCFAN2
DCFAN1
5
5
CN6
CN5
CN8
CN15
CN9
CN14
7
5
CN6
CN3
L
YELLOW
YELLOW
U
V
W
BLUE
BLACK
RED
Y/G
XT2
XT3
LPPUS REWOP Y
1(A)
2(A)
3(A)
1(B)
2(B)
3(B)
1(C)
2(C)
3(C)
1(D)
2(D)
3(D)
1(E)
2(E)
3(E)
TO A
TO B
TO D
TO E
TO C
BROWN
BLUE
BLACK
BROWN
BLUE
BLACK
BROWN
BLUE
BLACK
BROWN
BLUE
BLACK
BROWN
BLUE
BLACK
CN29
CN21
CN16
CN13
CN39
A
B
C
E
D
WHITE
BLACK
BLACK
BLACK
RED
BLACK
RED
BLACK
P-5
P-4
Ferrite bead
CH1
Ferrite bead
CH2
Ferrite bead
CH3
CT1
PAN HEATER
HEAT_D
6
6
6
6
6
3
3
3
3
3
OUTDOOR COIL
TEMP. SENSOR
OUTDOOR TEMP. SENSOR
DISCHARGE
TEMP. SENSOR
Figure 24. MPA048S4M-1P Outdoor Unit Wiring Diagram
INDO OR COI L OUTL ET
TEMP. SENSOR
BR OW N
BL UE
HE AT 1
HE AT 2
RE AC TO R
BL UE
BL UE
OUTDOOR
TEMPERATURE SE NSOR
OUTDOOR COIL
TEMPERATURE SENSOR
REACT0R2 R05094A
WHIT E
WHIT E
6
3
3
6
1(A)
3(A)
L2
2(A)
L1
BLACK
BLUE
BROWN
BLACK
BLUE
BROWN
BLACK
RED
1(B)
2(B)
3(B)
COMPRE SSOR DI SCHARG E
TEMPER ATURE SENSOR
Figure 25. MPB018S4M-*P Outdoor Unit Wiring Diagram

Table of Contents

Other manuals for Lennox MWMA012S4-*L

Related product manuals