EasyManua.ls Logo

Lennox MWMB030S4-*P - Page 67

Lennox MWMB030S4-*P
168 pages
Print Icon
To Next Page IconTo Next Page
To Next Page IconTo Next Page
To Previous Page IconTo Previous Page
To Previous Page IconTo Previous Page
Loading...
67
HE AT _1
HE AT _2
CRANKCASE HEATER
HEAT_1
HEAT_2
COMPRESSOR DISCHARGE
TEMP. SENSOR
OUTDOOR COIL
TEMP. SENSOR
OUTDOOR
TEMP. SENSOR
INDOOR COIL OUTLET
TEMP. SENSOR
IN D O O R C O IL O U T L E T
T EM P. S E N S O R
GN D
P-1
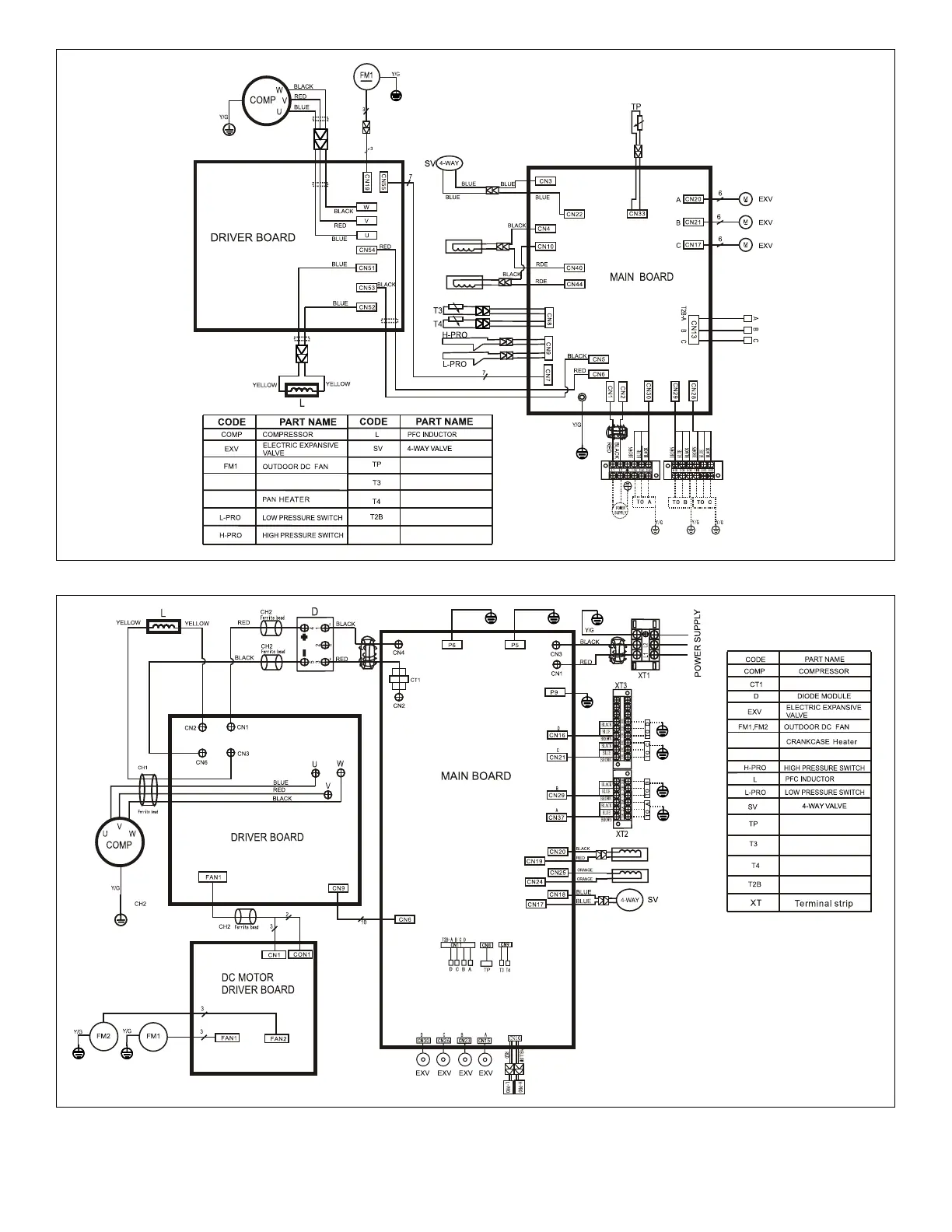
Figure 30. MLA030S4M-1P Outdoor Unit Wiring Diagram
HE AT _2
PAN HEATER
IND OO R C OIL
OU TL ET
TE MP . S EN SO R
HE AT _1
HE AT _2
HE AT _1
AC CURRENT DETECTOR
COMPRESSOR DISCHARGE
TEMP. SENSOR
OUTDOOR COIL
TEMP. SENSOR
OUTDOOR
TEMP. SENSOR
INDOOR COIL OUTLET
TEMP. SENSOR
Figure 31. MLA036S4M-1P Outdoor Unit Wiring Diagram

Table of Contents

Other manuals for Lennox MWMB030S4-*P

Related product manuals