EasyManua.ls Logo

Lennox RGEN17 - Emission Compliance, RGEN17;18

Lennox RGEN17
36 pages
Print Icon
To Next Page IconTo Next Page
To Next Page IconTo Next Page
To Previous Page IconTo Previous Page
To Previous Page IconTo Previous Page
Loading...
XP-6514 4/098
12 5420
16
6
3
13
25
17
19
1415
22
ADV-7341A-B
10
26
24
9
21
27
29
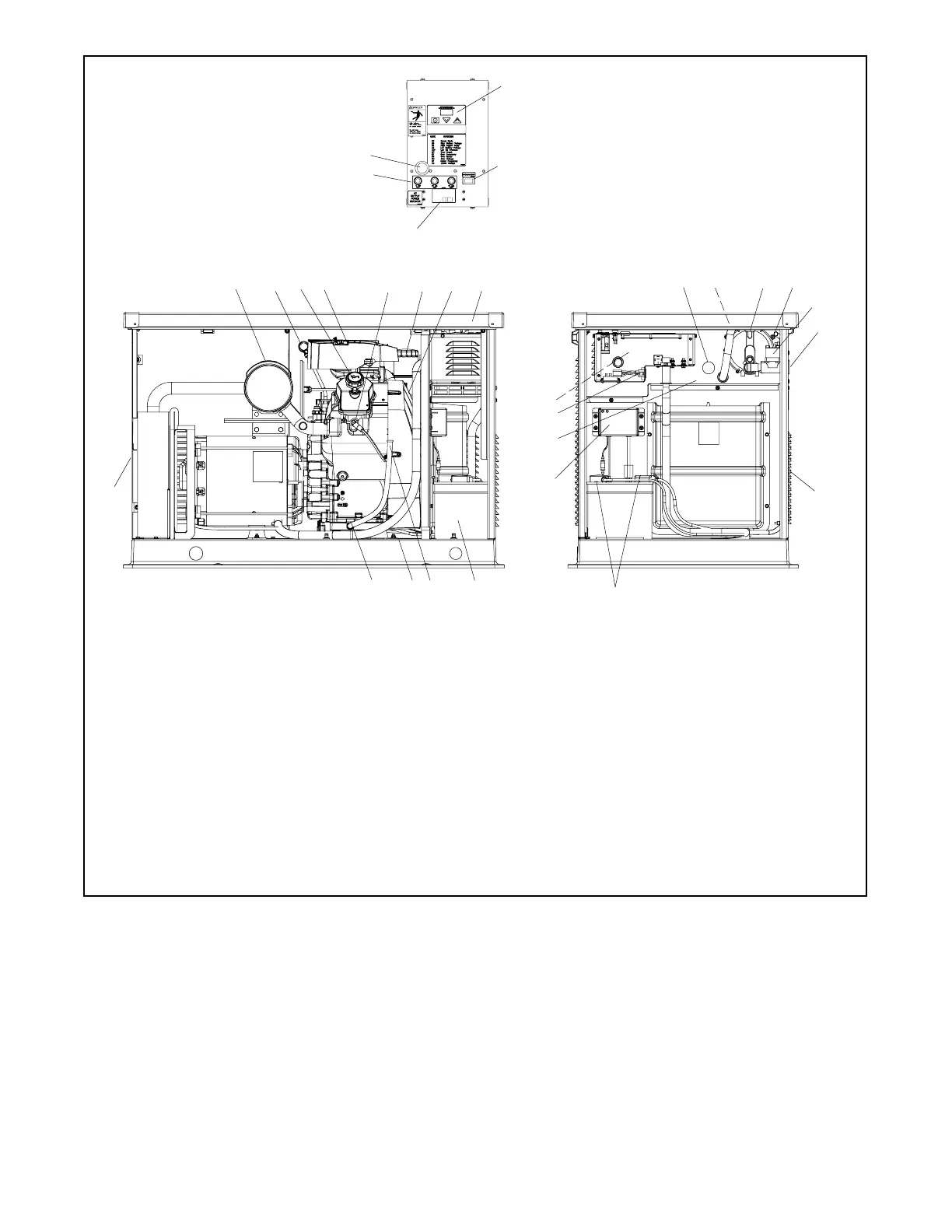
Control detail
8
11
7
12
1. Muffler
2. Oil check
3. Oil fill
4. Air cleaner
5. Spark plug locations (both sides)
6. Oil filter
7. Oil cooler location
8. Controller user interface
9. Generator set master switch (RUN-OFF/RESET-AUTO)
10. Line circuit breaker
11. Fuses
12. RS-232 connector (for application program updates)
13. Engine starting battery location (battery purchased separately)
14. Oil drain hose
15. Nameplate location (on base)
16. Oil drain valve
17. Exhaust
18. Carburetor heater access opening
19. LP fuel orifice location (inside hose fitting)
20. Gas regulator assembly
21. DSAI leads
22. Fuel solenoid valve
23. Fuel inlet
24. Air intake
25. Battery cables
26. Battery charger
27. Field-connection terminal block location
28. 120 VAC receptacles for battery charger and optional
carburetor heater
29. Field connections inside junction box if optional terminal
block is not used
See control detail
18
28
23
Figure 2 Generator Set Component Locations, RGEN17/18

Other manuals for Lennox RGEN17

Related product manuals