EasyManua.ls Logo

Lennox SLP98DF090XV60C - Page 35

Lennox SLP98DF090XV60C
71 pages
To Next Page IconTo Next Page
To Next Page IconTo Next Page
To Previous Page IconTo Previous Page
To Previous Page IconTo Previous Page
Loading...
Page 35
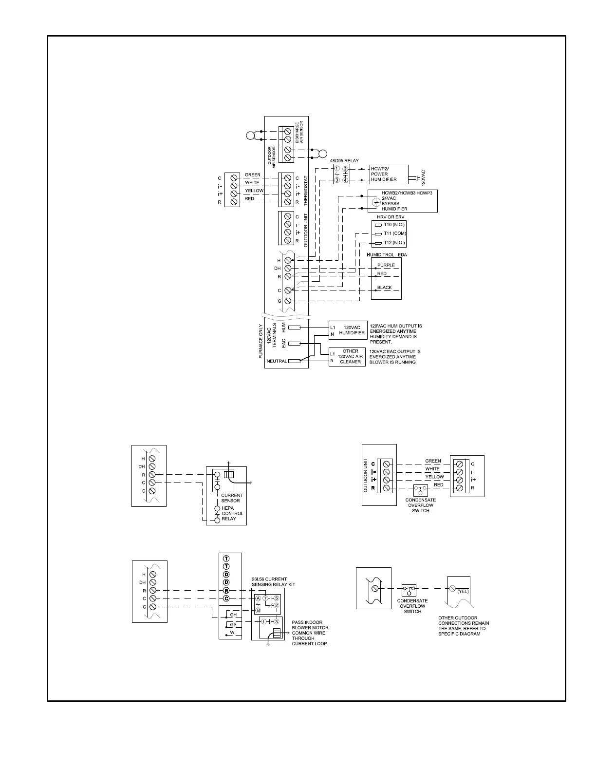
FIGURE 21
Optional Accessories for use with any icomfort Touch System
NOTE: 24V UV LIGHT
APPLICATIONS
Furnace transformer will not have ad
equate va to power 24v UV light ap
plications. An additional transformer
for UV light applications is required.
icomfort Toucht
THERMOSTAT
DISCHARGE AIR SENSOR
NOTE: icomfortt THERMOSTAT SENSES HUMIDITY & CONTROLS
24V “H” OUTPUT (& 120V “H” OUTPUT) TO CYCLE HUMIDIFIER
BASED ON DEMAND. NO OTHER CONTROL OR HUMIDISTAT
REQUIRED.
OPTIONAL OUTDOOR AIR SENSOR FOR USE WITH HU
MIDIFIER (IF NOT ALREADY IN THE SYSTEM FOR OTHER
FUNCTIONS. BUILT INTO ALL icomfortt OUTDOOR UNITS).
icomfortt-
ENABLED
SLP98DFV
FURNACE
HEPA BYPASS FILTER
X2680 HEPA
INTERLOCK KIT
PASS INDOOR BLOWER
MOTOR COMMON WIRE
THROUGH CURRENT LOOP.
SEE HEPA INTERLOCK KIT
FOR INSTALLATION DE
TAILS
LVCS VENTILATION
CONTROL SYSTEM
SEE LVCS VENTILATION
INSTRUCTIONS FOR
DAMPER & SENSOR WIRING
icomfortt- ENABLED
OUTDOOR AIR
CONDITIONING OR
HEAT PUMP UNIT
NON-COMMUNICATING
1 OR 2 STAGE AC OR HP UNIT
icomfortt-
ENABLED
SLP98DFV
FURNACE
icomfortt-
ENABLED
SLP98DFV
FURNACE
icomfortt-
ENABLED
SLP98DFV
FURNACE
icomfortt-
ENABLED
SLP98DFV
FURNACE
(C)
(C)
(disables out
door unit only)

Related product manuals