EasyManua.ls Logo

Lenoxx G1D91BU - G1 D91 BT & G1 D93 BT Horizontal Models - Non-Direct Vent Installation; Horizontal Non-Direct Vent - Horizontal Venting (G1 D91 BT & G1 D93 BT Only); Horizontal Non-Direct Vent - Vertical Venting (G1 D91 BT & G1 D93 BT Only)

Lenoxx G1D91BU
36 pages
Print Icon
To Next Page IconTo Next Page
To Next Page IconTo Next Page
To Previous Page IconTo Previous Page
To Previous Page IconTo Previous Page
Loading...
506305-01Page 16 of 36 Issue 0938
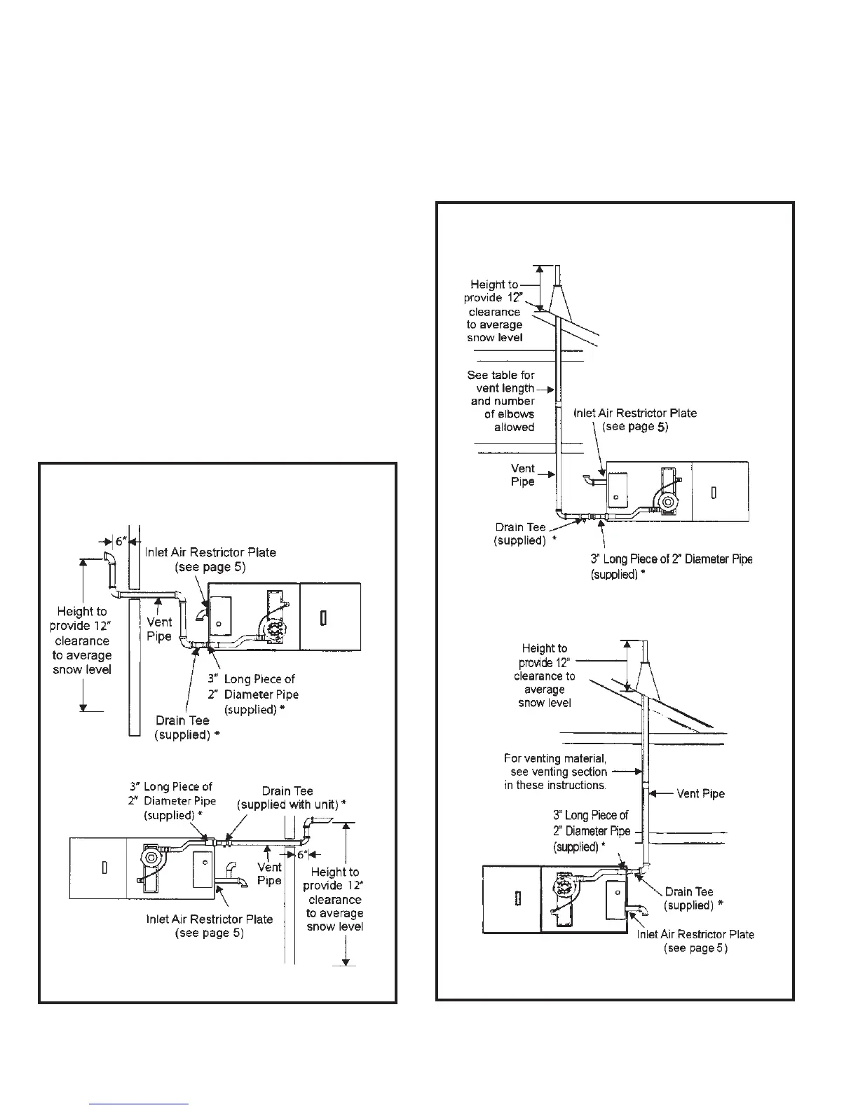
For horizontal venting, refer to Figure 17. For vertical venting,
refer to Figure 18. The vent pipe on horizontal runs must
slope upward, away from the furnace, at a minimum pitch of
1/4" per foot of run, to prevent accumulation of condensate.
Prime the trap system by slowly pouring 1 cup of water down
the vent pipe. On initial start-up of the unit, some of the
water used to prime the trap system may run down into the
combustion blower and cause noise.
Figure 18
Figure 17
Horizontal Non-Direct Vent – Horizontal Venting
(G1D91BT & G1D93BT Only)
* Canadian Installations: See “Canadian Applications Only” on page 7.
Airflow Right to Left
Airflow Left to Right
Horizontal Non-Direct Vent – Vertical Venting
(G1D91BT & G1D93BT Only)
* Canadian Installations: See “Canadian Applications Only” on page 7.
Airflow Left to Right
Airflow Right to Left
Prime the trap system by slowly pouring 1 cup of water down
the vent pipe. On initial start-up of the unit, some of the
water used to prime the trap system may run down into the
combustion blower and cause noise.
G1D91BT & G1D93BT Horizontal Models - Non-Direct
Vent Installation
An inlet air restrictor plate (see Figure 2 on page 5) is supplied
with this furnace and can be found in the plastic bag
containing these Installation Instructions. This restrictor plate
is to be used only in non-direct vent applications. Place the
restrictor plate into the inlet collar, insert 3” section of PVC
pipe (field supplied), then attach a 90° elbow (field supplied)
to the PVC pipe in all non-direct vent installations (see
Figures 17 and 18).
Two inlet air restrictor plates are supplied with each furnace
– a 2" plate and a 3" plate. Use the proper restrictor plate
for the furnace model.
The flue pipe screen (see Figure 2 on page 5) should be
installed at the termination of the flue pipe and is designed
to keep objects out of the flue pipe.