EasyManua.ls Logo

Lenz Digital Plus BM1 - Page 18

Lenz Digital Plus BM1
Print Icon
To Next Page IconTo Next Page
To Next Page IconTo Next Page
To Previous Page IconTo Previous Page
To Previous Page IconTo Previous Page
Loading...
18 Information BM1
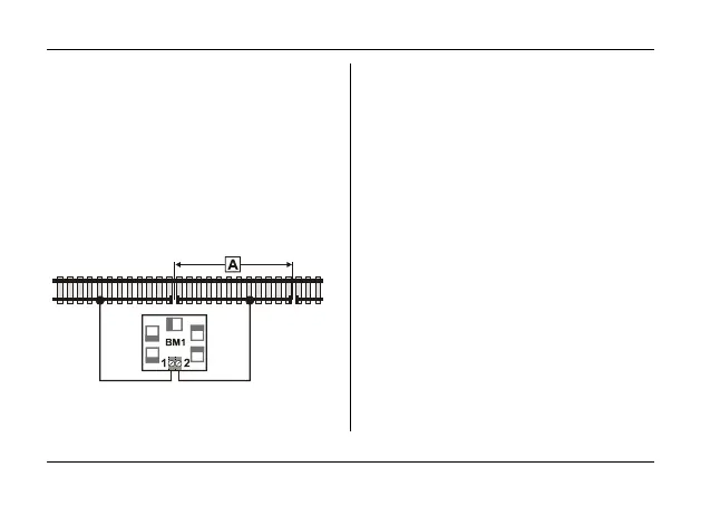
qui doit être sectionné lorsqu'on regarde
la voie dans le sens de marche du train.
Effectuez donc les coupures qui fixeront
le début et la fin de la section de
freinage uniquement sur le rail droit
(compte tenu du sens de marche). Une
alternative consiste à remplacer deux
éclisses métalliques par deux éclisses
isolantes pour autant que les joints de
rails se trouvent aux bons endroits.
Reliez la borne "1" du BM1 au rail droit
situé avant la section de freinage.
Reliez ensuite la borne "2" du BM1 au
rail isolé de la section de freinage "A".
Un interrupteur branché en parallèle aux
bornes 1 et 2 vous permettra de mettre
en ou hors service le BM1. Pour ce
faire, vous pouvez vous servir d'un
interrupteur libre du signal. La plupart
des signaux disponibles dans le
commerce sont équipés d'un moteur à
double bobinage et d'un interrupteur au
moins.
Si vous désirez mettre le BM1 en
service avec un signal lumineux, vous
devrez installer un relais en parallèle au
bornes du feu vert. Vous pourrez ainsi
vous servir d'un contact de travail du
relais pour ponter le BM1 lorsque le
signal présente un feu vert.

Related product manuals