EasyManua.ls Logo

Lenze MP 1000 DVI - Mounting Cutout

Lenze MP 1000 DVI
88 pages
Go to English
To Next Page IconTo Next Page
To Next Page IconTo Next Page
To Previous Page IconTo Previous Page
To Previous Page IconTo Previous Page
Loading...
Installation
Mounting cutout
4
31
MA_ELx0xx DE/EN/FR/ES/IT 2.0
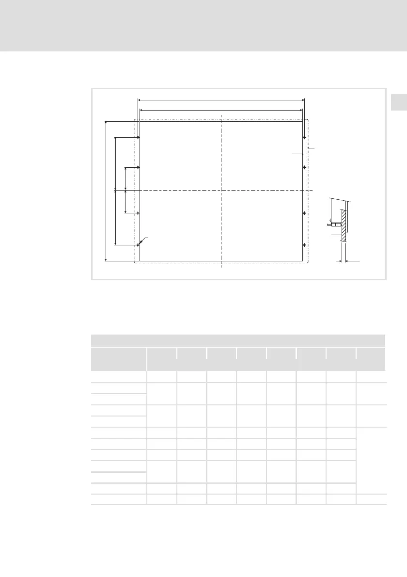
4.3 Mounting cutout
0
1
a1
a2
£ 5
2
b1
b2
b3
b5
b4
D
ELx7xx−004
Mounting cutout
Outline of front panel
Control board
All dimensions in millimetres.
Dimensions
a1 a2 b1 b2 b3 b4 b5 D
[mm]
MP 800 DVI 246 188
MP 1000 DVI
305.0 228.0
MP 1000s DVI
MP 1050 DVI
343.0 228.0
MP 1050s DVI
MP 2000 DVI
340.0 351.0 288.0 122.0 122.0 0.0
6 x Æ5.5
MP 2050 DVI
375.0 386.0 288.0 122.0 122.0 0.0
MP 5000 DVI
400.0 411.0 313.0 134.5 134.5 0.0
MP 5020 DVI
452.0 462.4 299.0 104.9 104.6 15.7
MP 5050 DVI
MP 5070 DVI
452.0 462.4 388.2 149.3 149.3 15.9
MP 9000 DVI 438.0 451.0 386.0 172.0 172.0 60.0 60.0 8 x Æ4.5

Table of Contents

Other manuals for Lenze MP 1000 DVI

Related product manuals