EasyManua.ls Logo

LEYBOLD LV 80 - Page 38

Default Icon
62 pages
Print Icon
To Next Page IconTo Next Page
To Next Page IconTo Next Page
To Previous Page IconTo Previous Page
To Previous Page IconTo Previous Page
Loading...
Installation
38
300407956_002_C1 - 01/2017 - © Leybold
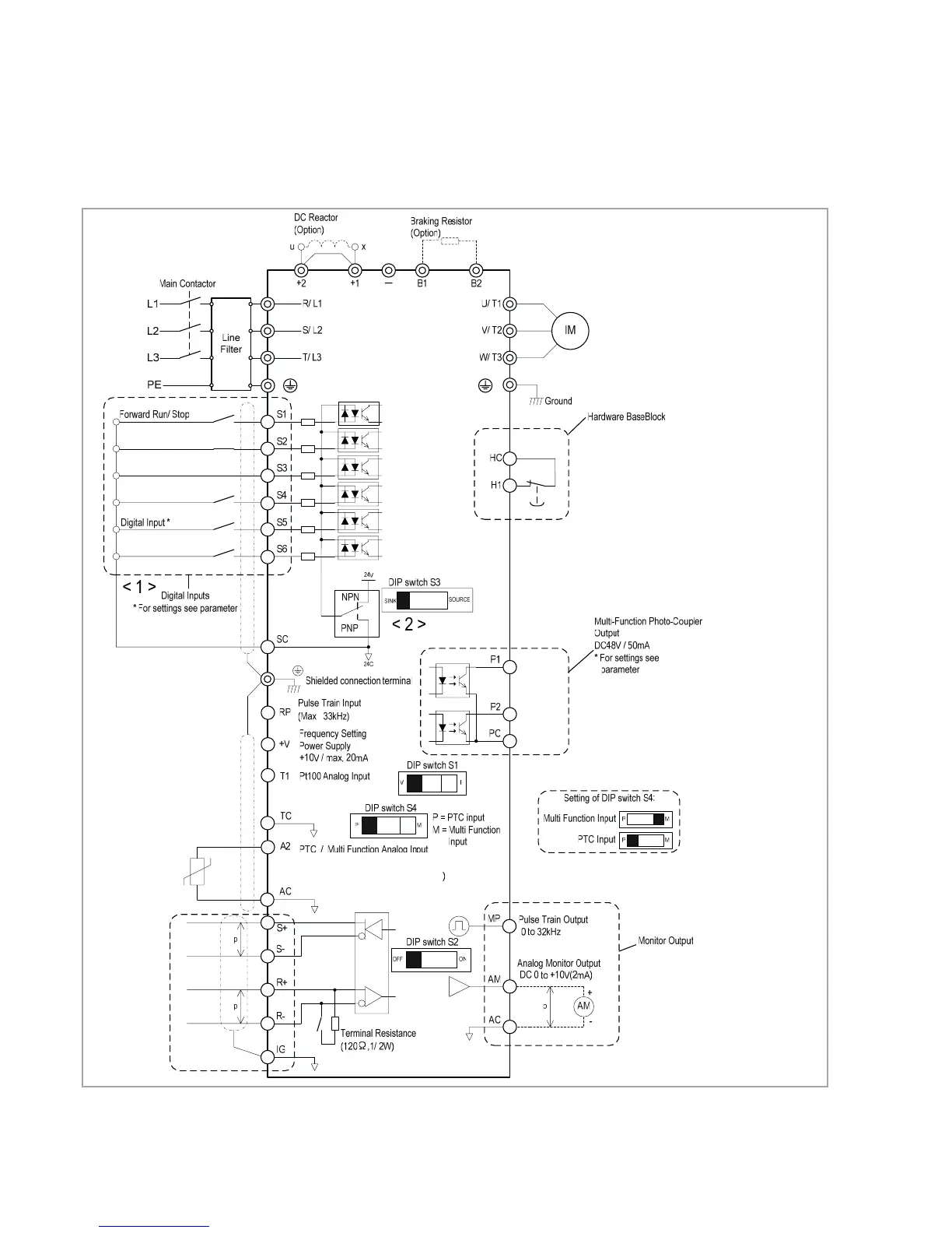
Fig. 3.8 Wiring of the main and control circuits for LEYVACs w/ external frequency converter
<1> Connected using
sequence input signal
(S1 to S6) from NPN
transistor. Default: sink
mode (0V com).
Fault reset*
PTC
Digital
Output
Warning*
Digital
Output
Failure*
Baseblock
Thermal switch casing
Thermal switch motor
Do not use the “Hardware Baseblock“
input for any functional safety in ac-
cordance to IEC 61508 or ISO/EN
13849 on your machine. For details
contact Leybold.
<2> Use only the +24V internal power supply
in sinking mode. The source mode requires
an external power supply.
DIP switch S4 changes the functio-
nality of analog input A2. When DIP
switch S4 is set to “P“ the function is
PTC input. When DIP switch S4 is set
to “M“ the function of analog input A2
is multi-function input.

Related product manuals