THE SYMBOL MARK OF THIS SCHEMETIC DIAGRAM INCORPORATES
SPECIAL FEATURES IMPORTANT FOR PROTECTION FROM X-RADIATION.
FIRE AND ELECTRICAL SHOCK HAZARDS, WHEN SERVICING IF IS
ESSENTIAL THAT ONLY MANUFACTURES SPECIFIED PARTS BE USED FOR
THE CRITICAL COMPONENTS IN THE SYMBOL MARK OF THE SCHEMETIC.
R206 1K
OPT
+3.3V_Normal
MODEL_OPT_4
C255
0.1uF
16V
R209 1K
MODEL_OPT_0
R212 1K
+3.3V_Normal
RF_SWITCH_CTL
MODEL_OPT_2
R294 1K
MODEL_OPT_5
+1.15V_VDDC
R224 1K
OPT
R226 1K
HD(12V Panel)
C209 0.1uF
16V
MODEL_OPT_1
R211 1K
OPT
MODEL_OPT_6
R291 1K
OPT
R290
1K
OPT
R222 1K
R227 1K
FHD(5V Panel)
AUD_LRCH
C283
0.1uF
16V
R208 1K
OPT
C259
0.1uF
16V
C235 0.1uF
16V
+1.15V_VDDC
R207 1K
R293
1K
C245 0.1uF
16V
R221 1K
EXT_128MB
AUD_LRCK
R223 1K
EXT_NON_128MB
R203 0
(OPT)RF_SW
C277
1uF
10V
C280
1uF
10V
10uF
10V
C228
10uF
10V
C275
C254
1uF
10V
DDR_EXT
C207
0.1uF
16V
DDR_EXT
10uF
10V
C278
DDR_EXT
C248
0.1uF
16V
DDR_EXT
C266
0.1uF
16V
DDR_EXT
+1.5V_DDR
C212
1uF
10V
(OPT)HDMI_ARC
HDMI_ARC
R231
0
(OPT)HDMI_ARC
C210
4.7uF
10V
Head Phone
HP_ROUT
HP_LOUT
C211
4.7uF
10V
Head Phone
L213Head Phone 5.6uH
L212Head Phone 5.6uH
C2380.047uF
25V
C2370.047uF
25V
R24633
R24533
R247
68
C239
0.047uF
25V
AUD_SCK
AUD_MASTER_CLK_0
+3.3V_Normal
SCART1_Lout
SCART1_Rout
L214
BLM18SG121TN1D
C219 2.2uF
10V
C216 2.2uF
10V
C214 2.2uF
10V
C217 2.2uF
10V
C234
1000pF
50V
R241
33
R23868
R23933
C233
0.047uF
25V
R24333
R24268
C230
0.047uF
25V
C231
0.047uF
25V
C229
0.047uF
25V
C227
0.047uF
25V
R240
68
C232
0.047uF
25V
R235
33
C226
0.047uF
25V
C223
0.047uF
25V
C222
0.047uF
25V
R23333
C225
0.047uF
25V
C224
0.047uF
25V
C221
0.047uF
25V
R23733
+1.5V_DDR
C260
1uF
10V
R248
10K
OPT
R250
10K
OPT
R249
10K
OPT
R251
10K
OPT
R21410
R21510
AUVRM
AUVRM
R205
10
+3.3V_ST
SOC_RESET
C200
4.7uF
10V
SB_MUTE
D200
MMBD6100
OPT
A2
C
A1
R200
62K
10uF
10V
C202 C203
0.1uF
16V
HPD2
HPD1
D0-_HDMI2
D2-_HDMI2
DDC_SDA_1
D0+_HDMI2
D1-_HDMI2
CK-_HDMI1
D1-_HDMI1
D2-_HDMI1
CK-_HDMI2
CK+_HDMI2
D0+_HDMI1
CK+_HDMI1
CEC_REMOTE_S7
DDC_SCL_2
DDC_SDA_2
D1+_HDMI1
D0-_HDMI1
D1+_HDMI2
D2+_HDMI1
DDC_SCL_1
D2+_HDMI2
C201 2.2uF
10V
C242 2.2uF
10V
PC_R_IN
SC1_R_IN
COMP_L_IN
SC1_L_IN
PC_L_IN
COMP_R_IN
COMP_Pb+
COMP_Pr+
COMP_Y+/AV_CVBS_IN
DSUB/SC1_B+
DSUB/SC1_R+
DSUB/SC1_G+
USB_DM
USB_DP
DTV/MNT_VOUT
SC1_CVBS_IN
COMP_Y+/AV_CVBS_IN
+3.3V_Normal
+1.15V_VDDC
+3.3V_Normal
+1.15V_VDDC
+1.15V_VDDC
+1.15V_VDDC
+3.3V_Normal
AVDD5V_MHL
C218
0.1uF
16V
L202
BLM18PG121SN1D
AVDD_AU33
AVDD_DMPLL
10uF
10V
C205
C215
0.1uF
16V
10uF
10V
C236
L201
BLM18PG121SN1D
10uF
10V
C208
C241
0.1uF
16V
C240
0.1uF
16V
+3.3V_ST
L200
BLM18PG121SN1D
AVDD_NODIE
C206
0.1uF
16V
AVDD_DMPLL
AVDD_NODIE
AVDD_NODIE
AVDD_AU33
R21033
DSUB/SC1_HSYNC
R21333
DSUB/SC1_VSYNC
ZD200
5V
AUD_LRCH
AUD_LRCK
SC1_B+
SC1_G+
SC1_R+
R3466
0
LB45
R3467
0
LB45
R3468
0
LB45
ZD201
2.5V
ZD202
5V
OPT
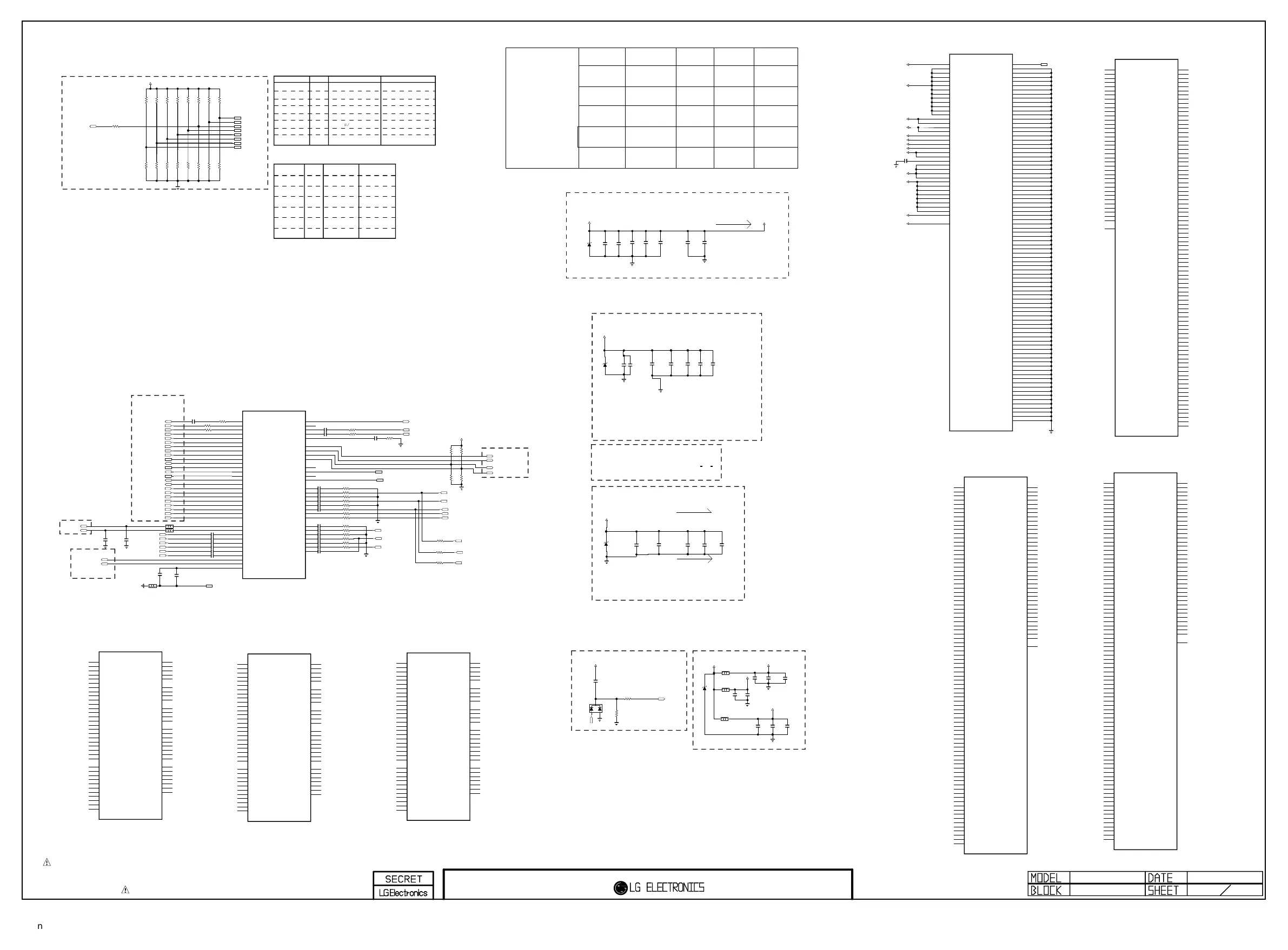
IC101
LGE2133(128M)
128SCALER
AUVRM
U3
GND_1
A6
GND_2
A13
GND_3
A15
GND_4
A18
GND_5
B12
GND_6
B14
GND_7
B16
GND_8
B17
GND_9
B19
GND_10
B20
GND_11
C9
GND_12
C10
GND_13
C21
GND_14
D9
GND_15
E20
GND_16
F9
GND_17
F11
GND_18
F13
GND_19
F15
GND_20
F17
GND_21
F19
GND_22
F21
GND_23
G8
GND_24
G9
GND_25
G10
GND_26
G11
GND_27
G12
GND_28
G13
GND_29
G14
GND_30
G15
GND_31
G16
GND_32
G17
GND_33
G18
GND_34
H7
GND_35
H8
GND_36
H9
GND_37
H10
GND_38
H11
GND_39
H12
GND_40
H13
GND_41
H14
GND_42
H15
GND_43
H16
GND_44
H17
GND_45
H18
GND_46
J7
GND_47
J8
GND_48
J9
GND_49
J10
GND_50
J11
GND_51
J12
GND_52
J13
GND_53
J14
GND_54
K8
GND_55
K10
GND_56
K11
GND_57
L10
GND_58
M5
GND_59
M7
GND_60
M8
GND_61
M9
GND_62
M10
GND_63
N4
GND_64
N5
GND_65
N6
GND_66
N7
GND_67
N8
GND_68
N9
GND_69
N10
GND_70
P4
GND_71
P5
GND_72
P6
GND_73
P7
GND_74
P9
GND_75
P10
GND_76
P15
GND_77
P16
GND_78
P17
GND_79
P18
GND_80
R10
GND_81
R11
GND_82
R12
GND_83
R13
GND_84
R14
GND_EFUSE
K7
AVDD_AU33
R4
AVDD_DDR0_CLK
L11
AVDD_DDR1_CLK
L13
AVDD_DDR0_CMD
M11
AVDD_DDR1_CMD
K13
AVDD_DDR0_D_1
C5
AVDD_DDR0_D_2
K12
AVDD_DDR0_D_3
L12
AVDD_DDR1_D_1
C6
AVDD_DDR1_D_2
K14
AVDD_DDR1_D_3
L14
AVDD_DRAM_1
B5
AVDD_DRAM_2
B6
AVDD_DVI_USB_MPLL_1
R8
AVDD_DVI_USB_MPLL_2
R9
AVDD_MOD_1
L7
AVDD_MOD_2
L8
AVDD_NODIE
P8
AVDD_PLL
K9
AVDD3P3_DMPLL
R5
AVDDL_MOD
P11
DVDD_DDR_1
C7
DVDD_DDR_2
M13
DVDD_NODIE
R6
DVDD_RX_1_1
A7
DVDD_RX_1_2
M12
DVDD_RX_2_1
B7
DVDD_RX_2_2
M14
VDDC_1
N11
VDDC_2
N12
VDDC_3
N13
VDDC_4
N14
VDDC_5
N15
VDDC_6
P12
VDDC_7
P13
VDDC_8
P14
VDDP
L9
AVDD5V_MHL
AA10
IC101
LGE2133(128M)
128SCALER
ARC0
M4
RXC0N
W7
RXC0P
Y8
RXC1N
W8
RXC1P
Y9
RXC2N
AA9
RXC2P
W9
RXCCKN
AA7
RXCCKP
Y7
CEC/GPIO6
N2
DDCDA_CK/GPIO27
E3
DDCDA_DA/GPIO28
E2
DDCDC_CK/GPIO31
W6
DDCDC_DA/GPIO32
AA6
HOTPLUGA/GPIO23
L4
HOTPLUGC/GPIO25
Y6
RXA0N
F1
RXA0P
G3
RXA1N
G1
RXA1P
G2
RXA2N
H3
RXA2P
H2
RXACKN
F3
RXACKP
F2
EAR_OUTL
U4
EAR_OUTR
T4
AUL1
P2
AUL2
R2
AUL3
T1
AUR1
R3
AUR2
R1
AUR3
T3
AUOUTL0
U2
AUOUTR0
V3
AUVAG
T2
CVBSOUT1
T6
CVBS0
V5
CVBS1
U5
CVBS2
T5
VCOM
V4
I2S_OUT_BCK/GPIO165
E4
I2S_OUT_MCK/GPIO163
F4
I2S_OUT_SD/GPIO166
F7
I2S_OUT_WS/GPIO164
F5
USB0_DM
C4
USB1_DM
Y12
USB0_DP
B4
USB1_DP
AA12
BIN0M
J2
BIN0P
J3
GIN0M
K3
GIN0P
J1
RIN0M
K2
RIN0P
K1
HSYNC0
M6
VSYNC0
L6
BIN1M
L2
BIN1P
L3
GIN1M
M1
GIN1P
M2
RIN1M
N1
RIN1P
N3
SOGIN1
M3
IC101-*1
LGE2134(256M)
256SCALER
ARC0
M4
RXC0N
W7
RXC0P
Y8
RXC1N
W8
RXC1P
Y9
RXC2N
AA9
RXC2P
W9
RXCCKN
AA7
RXCCKP
Y7
CEC/GPIO6
N2
DDCDA_CK/GPIO27
E3
DDCDA_DA/GPIO28
E2
DDCDC_CK/GPIO31
W6
DDCDC_DA/GPIO32
AA6
HOTPLUGA/GPIO23
L4
HOTPLUGC/GPIO25
Y6
RXA0N
F1
RXA0P
G3
RXA1N
G1
RXA1P
G2
RXA2N
H3
RXA2P
H2
RXACKN
F3
RXACKP
F2
EAR_OUTL
U4
EAR_OUTR
T4
AUL1
P2
AUL2
R2
AUL3
T1
AUR1
R3
AUR2
R1
AUR3
T3
AUOUTL0
U2
AUOUTR0
V3
AUVAG
T2
CVBSOUT1
T6
CVBS0
V5
CVBS1
U5
CVBS2
T5
VCOM
V4
I2S_OUT_BCK/GPIO165
E4
I2S_OUT_MCK/GPIO163
F4
I2S_OUT_SD/GPIO166
F7
I2S_OUT_WS/GPIO164
F5
USB0_DM
C4
USB1_DM
Y12
USB0_DP
B4
USB1_DP
AA12
BIN0M
J2
BIN0P
J3
GIN0M
K3
GIN0P
J1
RIN0M
K2
RIN0P
K1
HSYNC0
M6
VSYNC0
L6
BIN1M
L2
BIN1P
L3
GIN1M
M1
GIN1P
M2
RIN1M
N1
RIN1P
N3
SOGIN1
M3
IC101-*1
LGE2134(256M)
256SCALER
AUVRM
U3
GND_1
A6
GND_2
A13
GND_3
A15
GND_4
A18
GND_5
B12
GND_6
B14
GND_7
B16
GND_8
B17
GND_9
B19
GND_10
B20
GND_11
C9
GND_12
C10
GND_13
C21
GND_14
D9
GND_15
E20
GND_16
F9
GND_17
F11
GND_18
F13
GND_19
F15
GND_20
F17
GND_21
F19
GND_22
F21
GND_23
G8
GND_24
G9
GND_25
G10
GND_26
G11
GND_27
G12
GND_28
G13
GND_29
G14
GND_30
G15
GND_31
G16
GND_32
G17
GND_33
G18
GND_34
H7
GND_35
H8
GND_36
H9
GND_37
H10
GND_38
H11
GND_39
H12
GND_40
H13
GND_41
H14
GND_42
H15
GND_43
H16
GND_44
H17
GND_45
H18
GND_46
J7
GND_47
J8
GND_48
J9
GND_49
J10
GND_50
J11
GND_51
J12
GND_52
J13
GND_53
J14
GND_54
K8
GND_55
K10
GND_56
K11
GND_57
L10
GND_58
M5
GND_59
M7
GND_60
M8
GND_61
M9
GND_62
M10
GND_63
N4
GND_64
N5
GND_65
N6
GND_66
N7
GND_67
N8
GND_68
N9
GND_69
N10
GND_70
P4
GND_71
P5
GND_72
P6
GND_73
P7
GND_74
P9
GND_75
P10
GND_76
P15
GND_77
P16
GND_78
P17
GND_79
P18
GND_80
R10
GND_81
R11
GND_82
R12
GND_83
R13
GND_84
R14
GND_EFUSE
K7
AVDD_AU33
R4
AVDD_DDR0_CLK
L11
AVDD_DDR1_CLK
L13
AVDD_DDR0_CMD
M11
AVDD_DDR1_CMD
K13
AVDD_DDR0_D_1
C5
AVDD_DDR0_D_2
K12
AVDD_DDR0_D_3
L12
AVDD_DDR1_D_1
C6
AVDD_DDR1_D_2
K14
AVDD_DDR1_D_3
L14
AVDD_DRAM_1
B5
AVDD_DRAM_2
B6
AVDD_DVI_USB_MPLL_1
R8
AVDD_DVI_USB_MPLL_2
R9
AVDD_MOD_1
L7
AVDD_MOD_2
L8
AVDD_NODIE
P8
AVDD_PLL
K9
AVDD3P3_DMPLL
R5
AVDDL_MOD
P11
DVDD_DDR_1
C7
DVDD_DDR_2
M13
DVDD_NODIE
R6
DVDD_RX_1_1
A7
DVDD_RX_1_2
M12
DVDD_RX_2_1
B7
DVDD_RX_2_2
M14
VDDC_1
N11
VDDC_2
N12
VDDC_3
N13
VDDC_4
N14
VDDC_5
N15
VDDC_6
P12
VDDC_7
P13
VDDC_8
P14
VDDP
L9
AVDD5V_MHL
AA10
ZD203
2.5V
OPT
10uF 10V
C204
10uF 10V
C284
C213
1uF
10V
C220
4.7uF
10V
IC101-*2
LGE2131(M1A_128M)
LCD_TV_SCALER_128M
ARC0
M4
RXC0N
W7
RXC0P
Y8
RXC1N
W8
RXC1P
Y9
RXC2N
AA9
RXC2P
W9
RXCCKN
AA7
RXCCKP
Y7
CEC/GPIO6
N2
DDCDA_CK/GPIO27
E3
DDCDA_DA/GPIO28
E2
DDCDC_CK/GPIO31
W6
DDCDC_DA/GPIO32
AA6
HOTPLUGA/GPIO23
L4
HOTPLUGC/GPIO25
Y6
RXA0N
F1
RXA0P
G3
RXA1N
G1
RXA1P
G2
RXA2N
H3
RXA2P
H2
RXACKN
F3
RXACKP
F2
EAR_OUTL
U4
EAR_OUTR
T4
AUL1
P2
AUL2
R2
AUL3
T1
AUR1
R3
AUR2
R1
AUR3
T3
AUOUTL0
U2
AUOUTR0
V3
AUVAG
T2
CVBSOUT1
T6
CVBS0
V5
CVBS1
U5
CVBS2
T5
VCOM
V4
I2S_OUT_BCK/GPIO165
E4
I2S_OUT_MCK/GPIO163
F4
I2S_OUT_SD/GPIO166
F7
I2S_OUT_WS/GPIO164
F5
USB0_DM
C4
USB1_DM
Y12
USB0_DP
B4
USB1_DP
AA12
BIN0M
J2
BIN0P
J3
GIN0M
K3
GIN0P
J1
RIN0M
K2
RIN0P
K1
HSYNC0
M6
VSYNC0
L6
BIN1M
L2
BIN1P
L3
GIN1M
M1
GIN1P
M2
RIN1M
N1
RIN1P
N3
SOGIN1
M3
IC101-*3
LGE2132(M1A_256M)
LCD_TV_SCALER_256M
ARC0
M4
RXC0N
W7
RXC0P
Y8
RXC1N
W8
RXC1P
Y9
RXC2N
AA9
RXC2P
W9
RXCCKN
AA7
RXCCKP
Y7
CEC/GPIO6
N2
DDCDA_CK/GPIO27
E3
DDCDA_DA/GPIO28
E2
DDCDC_CK/GPIO31
W6
DDCDC_DA/GPIO32
AA6
HOTPLUGA/GPIO23
L4
HOTPLUGC/GPIO25
Y6
RXA0N
F1
RXA0P
G3
RXA1N
G1
RXA1P
G2
RXA2N
H3
RXA2P
H2
RXACKN
F3
RXACKP
F2
EAR_OUTL
U4
EAR_OUTR
T4
AUL1
P2
AUL2
R2
AUL3
T1
AUR1
R3
AUR2
R1
AUR3
T3
AUOUTL0
U2
AUOUTR0
V3
AUVAG
T2
CVBSOUT1
T6
CVBS0
V5
CVBS1
U5
CVBS2
T5
VCOM
V4
I2S_OUT_BCK/GPIO165
E4
I2S_OUT_MCK/GPIO163
F4
I2S_OUT_SD/GPIO166
F7
I2S_OUT_WS/GPIO164
F5
USB0_DM
C4
USB1_DM
Y12
USB0_DP
B4
USB1_DP
AA12
BIN0M
J2
BIN0P
J3
GIN0M
K3
GIN0P
J1
RIN0M
K2
RIN0P
K1
HSYNC0
M6
VSYNC0
L6
BIN1M
L2
BIN1P
L3
GIN1M
M1
GIN1P
M2
RIN1M
N1
RIN1P
N3
SOGIN1
M3
IC101-*2
LGE2131(M1A_128M)
LCD_TV_SCALER_128M
AUVRM
U3
GND_1
A6
GND_2
A13
GND_3
A15
GND_4
A18
GND_5
B12
GND_6
B14
GND_7
B16
GND_8
B17
GND_9
B19
GND_10
B20
GND_11
C9
GND_12
C10
GND_13
C21
GND_14
D9
GND_15
E20
GND_16
F9
GND_17
F11
GND_18
F13
GND_19
F15
GND_20
F17
GND_21
F19
GND_22
F21
GND_23
G8
GND_24
G9
GND_25
G10
GND_26
G11
GND_27
G12
GND_28
G13
GND_29
G14
GND_30
G15
GND_31
G16
GND_32
G17
GND_33
G18
GND_34
H7
GND_35
H8
GND_36
H9
GND_37
H10
GND_38
H11
GND_39
H12
GND_40
H13
GND_41
H14
GND_42
H15
GND_43
H16
GND_44
H17
GND_45
H18
GND_46
J7
GND_47
J8
GND_48
J9
GND_49
J10
GND_50
J11
GND_51
J12
GND_52
J13
GND_53
J14
GND_54
K8
GND_55
K10
GND_56
K11
GND_57
L10
GND_58
M5
GND_59
M7
GND_60
M8
GND_61
M9
GND_62
M10
GND_63
N4
GND_64
N5
GND_65
N6
GND_66
N7
GND_67
N8
GND_68
N9
GND_69
N10
GND_70
P4
GND_71
P5
GND_72
P6
GND_73
P7
GND_74
P9
GND_75
P10
GND_76
P15
GND_77
P16
GND_78
P17
GND_79
P18
GND_80
R10
GND_81
R11
GND_82
R12
GND_83
R13
GND_84
R14
GND_EFUSE
K7
AVDD_AU33
R4
AVDD_DDR0_CLK
L11
AVDD_DDR1_CLK
L13
AVDD_DDR0_CMD
M11
AVDD_DDR1_CMD
K13
AVDD_DDR0_D_1
C5
AVDD_DDR0_D_2
K12
AVDD_DDR0_D_3
L12
AVDD_DDR1_D_1
C6
AVDD_DDR1_D_2
K14
AVDD_DDR1_D_3
L14
AVDD_DRAM_1
B5
AVDD_DRAM_2
B6
AVDD_DVI_USB_MPLL_1
R8
AVDD_DVI_USB_MPLL_2
R9
AVDD_MOD_1
L7
AVDD_MOD_2
L8
AVDD_NODIE
P8
AVDD_PLL
K9
AVDD3P3_DMPLL
R5
AVDDL_MOD
P11
DVDD_DDR_1
C7
DVDD_DDR_2
M13
DVDD_NODIE
R6
DVDD_RX_1_1
A7
DVDD_RX_1_2
M12
DVDD_RX_2_1
B7
DVDD_RX_2_2
M14
VDDC_1
N11
VDDC_2
N12
VDDC_3
N13
VDDC_4
N14
VDDC_5
N15
VDDC_6
P12
VDDC_7
P13
VDDC_8
P14
VDDP
L9
AVDD5V_MHL
AA10
IC101-*3
LGE2132(M1A_256M)
LCD_TV_SCALER_256M
AUVRM
U3
GND_1
A6
GND_2
A13
GND_3
A15
GND_4
A18
GND_5
B12
GND_6
B14
GND_7
B16
GND_8
B17
GND_9
B19
GND_10
B20
GND_11
C9
GND_12
C10
GND_13
C21
GND_14
D9
GND_15
E20
GND_16
F9
GND_17
F11
GND_18
F13
GND_19
F15
GND_20
F17
GND_21
F19
GND_22
F21
GND_23
G8
GND_24
G9
GND_25
G10
GND_26
G11
GND_27
G12
GND_28
G13
GND_29
G14
GND_30
G15
GND_31
G16
GND_32
G17
GND_33
G18
GND_34
H7
GND_35
H8
GND_36
H9
GND_37
H10
GND_38
H11
GND_39
H12
GND_40
H13
GND_41
H14
GND_42
H15
GND_43
H16
GND_44
H17
GND_45
H18
GND_46
J7
GND_47
J8
GND_48
J9
GND_49
J10
GND_50
J11
GND_51
J12
GND_52
J13
GND_53
J14
GND_54
K8
GND_55
K10
GND_56
K11
GND_57
L10
GND_58
M5
GND_59
M7
GND_60
M8
GND_61
M9
GND_62
M10
GND_63
N4
GND_64
N5
GND_65
N6
GND_66
N7
GND_67
N8
GND_68
N9
GND_69
N10
GND_70
P4
GND_71
P5
GND_72
P6
GND_73
P7
GND_74
P9
GND_75
P10
GND_76
P15
GND_77
P16
GND_78
P17
GND_79
P18
GND_80
R10
GND_81
R11
GND_82
R12
GND_83
R13
GND_84
R14
GND_EFUSE
K7
AVDD_AU33
R4
AVDD_DDR0_CLK
L11
AVDD_DDR1_CLK
L13
AVDD_DDR0_CMD
M11
AVDD_DDR1_CMD
K13
AVDD_DDR0_D_1
C5
AVDD_DDR0_D_2
K12
AVDD_DDR0_D_3
L12
AVDD_DDR1_D_1
C6
AVDD_DDR1_D_2
K14
AVDD_DDR1_D_3
L14
AVDD_DRAM_1
B5
AVDD_DRAM_2
B6
AVDD_DVI_USB_MPLL_1
R8
AVDD_DVI_USB_MPLL_2
R9
AVDD_MOD_1
L7
AVDD_MOD_2
L8
AVDD_NODIE
P8
AVDD_PLL
K9
AVDD3P3_DMPLL
R5
AVDDL_MOD
P11
DVDD_DDR_1
C7
DVDD_DDR_2
M13
DVDD_NODIE
R6
DVDD_RX_1_1
A7
DVDD_RX_1_2
M12
DVDD_RX_2_1
B7
DVDD_RX_2_2
M14
VDDC_1
N11
VDDC_2
N12
VDDC_3
N13
VDDC_4
N14
VDDC_5
N15
VDDC_6
P12
VDDC_7
P13
VDDC_8
P14
VDDP
L9
AVDD5V_MHL
AA10
R234
100
R236100
R232100
MA55
52
2013/05/23
MAIN2_NON_EU
MODEL OPTION
AUD_LRCH
MODEL OPTION
Normal Power 3.3V
HIGH
S/W_NON_AJ
DDR3 1.5V
M120
MODEL_OPT_5
NON_M120
PIN NAME
J5
MODEL_OPT_6
U6
DVB_T/C
PIN NO.
EXTERNAL_DDR
FHD
EXTERNAL_NO_DDR
VDDC 1.15V
DVB_T2/C/S2
MODEL_OPT_4
HD
G19
K4
L5
VDDC : 2026mA
K5
G20
LOW
S/W_AJMODEL_OPT_1
AUD_LRCK
MODEL_OPT_0
* Dual Stream is only Korea 3D spec
MODEL_OPT_2
Normal 2.5V
H19
DUALSTREAM
NON_DUALSTREAM
AVDD_DDR1:55mA
AVDD_DDR0:55mA
HDMI
H/P OUT
I2S_I/F
SIDE USB
AUDIO OUT
M1A 2.5V inbeded
S/W_TW S/W_EU/AJ
111026Switch
EBF32593901 Deletion
SOC_RESET
STby 3.3V
LTV SCART ONLY
1
1
MODEL_OPT_4
256M Only
Memory OPTION
Auto
0
DET
0
0
1
Memory
256M+256M
0
0
MODEL_OPT_6
1
0
128M+128M
1
0
INT+EXT EXT 128MB
0
0
128M Only
128M+256M
0
256M+128M
1
EXT 256MB
0
1
KR
EU
BR
AJ/HK
Etc
0
0
1
0
0
128
256
128?
256
256
DDR
OPT6
MT55/MT75
128
128
256?
128
128
Scaler
OPT4
Area
1
1
0
1
1
Copyright ⓒ 2014 LG Electronics. Inc. All right reserved.
Only for training and service purposes