EasyManua.ls Logo

LG A2UH146FA0 - Outdoor Unit Schematics

LG A2UH146FA0
78 pages
Print Icon
To Next Page IconTo Next Page
To Next Page IconTo Next Page
To Previous Page IconTo Previous Page
To Previous Page IconTo Previous Page
Loading...
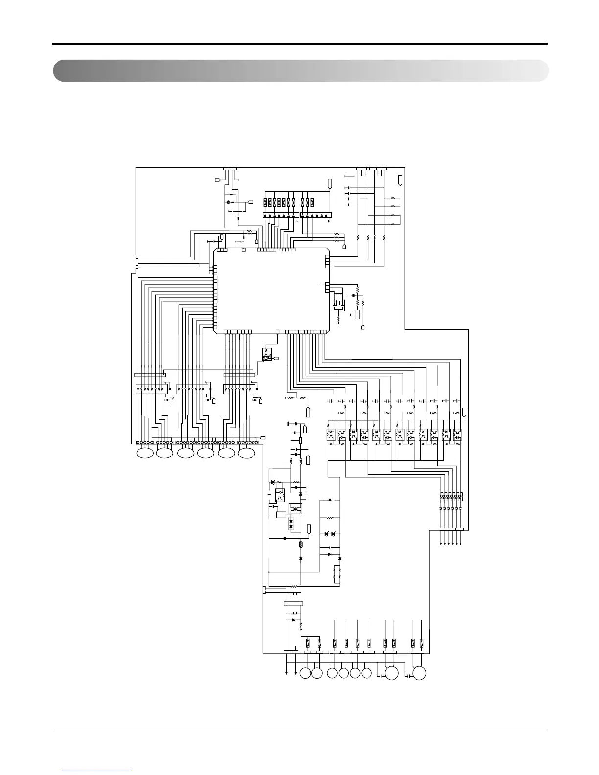
34 Free Joint Multi Air Conditioner
Schematic Diagram
Outdoor Unit
A2UC146FA0, A2UC186FA0, A3UC216FA0, A4UC306FA0, A2UH146FA0, A2UH186FA0,
A3UH216FA0, A4UH306FA0
R02T
1K
10K
56K
(YELLOW)
LED01T
TEST S/W
R03T
R04T
1K
R01T
R08B
1K
ULN2804
IC03M
IC04M
ULN2804
IC05M
ULN2804
7
12
11
8
11
14
13
15
12
5
6
4
8
7
16
18
17
10
3
9
2
1
14
13
15
12
18
17
16
5
6
4
7
2
1
3
11
10
8
9
17
16
18
15
14
13
10
2
1
4
5
6
3
9
LEV_1
LEV_2
LEV_6
LEV_5
LEV_3
LEV_4
1K
68V
0.001
4
3
OUT
5V
RY-FAN_1H
CN_TEST
2
1
IN
GND
RY-SV
RY-COMP1
RY-COMP2
RY-FAN_1L
RY-FAN_2H
RY-FAN_2L
RY-4WAY
RY-HOT
RY-LIQ
4
13
14
16
15
1
3
2
9
16
10
11
12
15
IC01M
1
8
7
6
5
2
CN-CENTRAL
5V
3
TX 0V
1
RX
4
1%
R06B,R07B
10K
12.1K
XXX
OR1H
R09H
Q01Z
KRA107M
1%
25V
104
C08D
KIA78L05BP
220uF/50V
C09D
DC 5V
5V
C10D
103
G
7805
O
IC12K(TLP621/421)
1
IC03D
4
R02J
ZD02D
150
11V
C07D
330uF/35V
I
NF02J
85uH
12V
39
R03J
R01H,1K
R05H,1K
R03H,1K
R07H,1K
R03B,R04B,R05B
1%
6.2K
R02H
OUT_TH
SUCTION
DISCHARGE
CN-TH2
4
3
3
4
2
1
PIPE_TH
CN-TH1
1
2
DC 5V
12.1K
R04H
1%
6.2K
1%
R06H
18K
R08H
1%
1%
4.7K
C10K
25V
C11K
0.001
25V
0.001
C12K
25V
0.001
C09K
0.001
C08K
25V
C07K
0.001
25V
25V
C06K
0.001
25V
C05K
0.001
R21K,1K
10K
R22K
R17K,1K
R18K
10K
R20K
IC11K(TLP621/421)
IC10K(TLP621/421)
2
3
4
1
1K
R24K
3
2
1
4
IC09K(TLP621/421)
IC08K(TLP621/421)
4
2
3
1
2
1K
R16K
1
3
2
4
3
R13K,1K
R14K
10K
R09K,1K
R10K
10K
IC07K(TLP621/421)
IC06K(TLP621/421)
4
3
1
2
1K
R12K
1
2
4
3
IC05K(TLP621/421)
3
4
2
1
ZD07D
R23K
1.5K
68V
ZD08D
1.5K
R19K
ZD06D
68V
R15K
1.5K
68V
ZD05D
R11K
1.5K
C07M
36V,1W
50.5K/1W
150uF/
11K/3W 11K/3W
CN-POWER
ZD02K
ST02D-170
DC310V
36V,1W
266P
C04D
0.01UF/400V
3,7,8
12
S
104
BP
C03D
TNY266P
S/Trans
SB360
(UF5402)
470uF/35V
IC02D(TLP521)
C06D
4,5
6,7
D03D
C05D
681
100V
3
D
5
TNY
4
1
EN
D02D
IC01D
(UF4005)
C01D
33uF/
450V
100D-9
NTC01D
102,100V
1N4007
D14K
1N4007
D01D
100nF
275V
AC_LAC_N
1
R01J
1M,1/2W
22mH/3A
4
2
275V
3
1
NF
NF01J
100nF
C02J
250V/T3.15A
INR14D471K
INR14D561K
FUSE
ZNR01J
C01J
3
2
1
RY-COMP2
RY-COMP1
2
3
1
COMP 1
COMP 2
NEUTRAL
LIVE
CN-COMP
11K/3W
ZD01K
C02A
R08J
D13K
1N4007
R04J
R06J
RY-FAN_2L
RY-FAN_2H
RY-FAN_1L
RY-LIQ
RY-HOT
RY-SV
RY-4WAY
11K/3W
R05J
R07J
4
3
1
2
3
2
1
3
HOT
4WAY
CN-HOT,LIQ,SV,4WAY
LIQ
SV
FAN_2
CN-FAN_2
0.001
C04K
25V
25V
25V
0.001
C02K
C03K
0.001
C01K
25V
0.001
IC03K(TLP621/421)
IC04K(TLP621/421)
1
2
1K
R08K
4
3
ZD04D
68V
10K
R05K,1K
R06K
10K
DC 5V
R01K,1K
R02K
IC01K(TLP621/421)
IC02K(TLP621/421)
3
4
1
2
1K
R04K
2
1
4
3
3
4
2
1
R07K
1.5K
68V
ZD03D
R03K
1.5K
30K/1W (12EA)
R31K
R32K
R30K
R34K
R36K
R35K
R33K
R25K
R26K
R28K
R27K
R29K
1SR139-600
1SR139-600
1SR139-600
1SR139-600
D12K
D11K
D10K
1SR139-600
1SR139-600
D07K
D08K
D09K
C ROOM
F ROOM
E ROOM
D ROOM
6
5
4
3
A ROOM
B ROOM
CN-COM
1
2
RY-FAN_1H
1
2
FAN_1
CN-FAN_1
DC 12V
5V
5V
12
11
14
13
5
6
3
4
27
P30
2
P53
VDD
VAREF
C01X
0.01
5V
46
49
58
48
VASS
20
TEST
26
VSS
33
P36
30
P33
P31
28
29
P32
32
P35
31
P34
51
P61
34
50
P60
P37
54
53
P64
P63
52
P62
P16
17
P13
P14
P12
P11
P15
P22
P21
P54
0.001
C03A
47
5V
14
15
13
12
16
22
21
59
P70
P51
P52
P17
P20
44
45
18
19
62
P73
60
P71
61
P72
(TOSHIBA)
TMP87CM41F
24
X
23
RESET
25
OUT
IN
X
12V
C01M
330uF/25V
12V
C03M
330uF/25V
12V
C05M
330uF/25V
AR02Z
4.7K,5%
56
57
P66
P67
P40
P41
55
P65
35
36
104K
C06M
+
104K
C04M
+
4.7K,5%
AR01Z
P42
P43
P44
P45
P46
P47
37
38
39
40
41
42
P50
43
5V
P74
P04
P05
P06
P10
P07
63
07
08
09
11
10
P75
P76
P00
P77
P03
P02
P01
64
01
03
02
06
05
04
+
104K
C02M
2
5
2
1
5
4
3
6
5
4
3
2
1
4
3
2
4
5
6
1
2
3
3
4
5
1
CN-LEV_1
CN-LEV_2
CN-LEV_5
CN-LEV_6
3
4
5
2
1
6
1
12V
CN-LEV_4
CN-LEV_3
OSC01B
CST-8.00MTW
25V
C01H~C04H
IC02M
(KID65004AP)
9
0.01
8
5V
R01B
C01A
1M
10
50V
1K
R01A
2
R03A
100
R02B
3
R02A,4.7K
1
3.6V
100
5V
KIA7036P
IC01A
1

Related product manuals