EasyManua.ls Logo

LG ARNU423B8A4 - Page 19

LG ARNU423B8A4
203 pages
Print Icon
To Next Page IconTo Next Page
To Next Page IconTo Next Page
To Previous Page IconTo Previous Page
To Previous Page IconTo Previous Page
Loading...
HIGH STATIC | 19
Ducted High Static
Due to our policy of continuous product innovation, some specications may change without notication.
© LG Electronics U.S.A., Inc., Englewood Cliffs, NJ. All rights reserved. “LG” is a registered trademark of LG Corp.
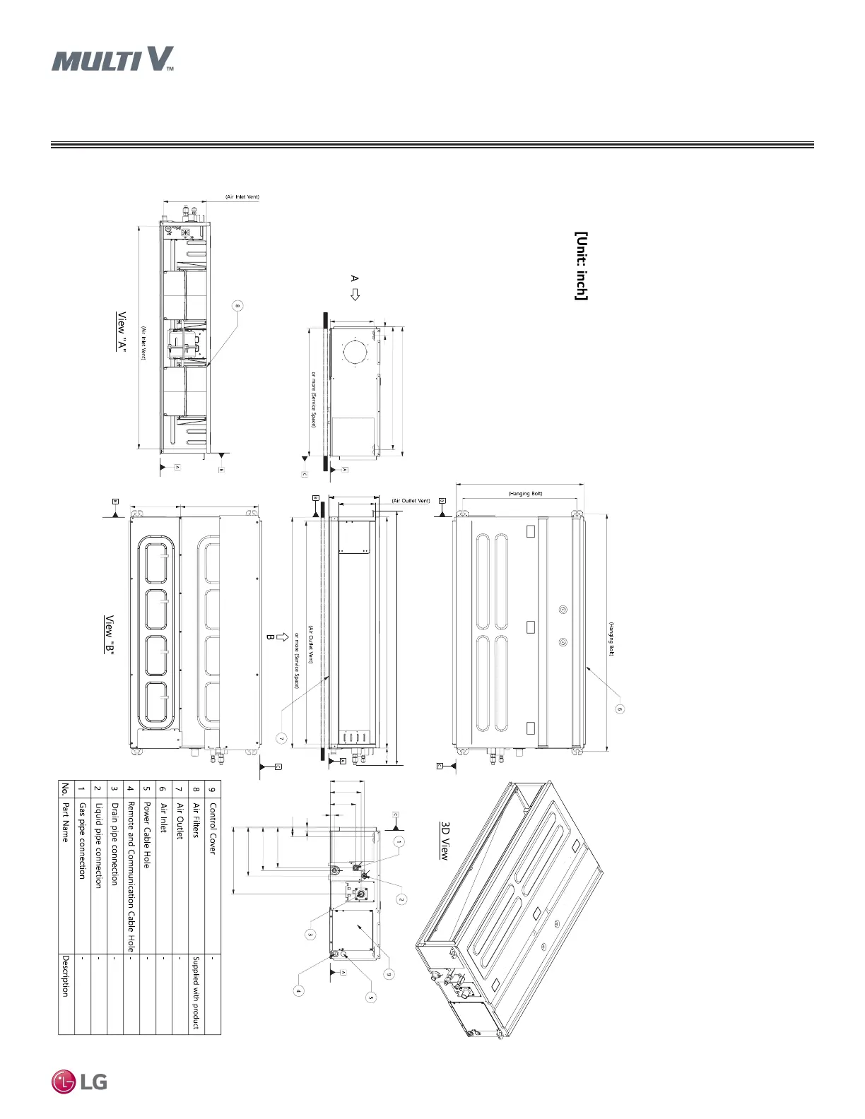
DUCTED HIGH STATIC
External Dimensions
M2 Units
Figure 4: ARNU073~423M2A4 Dimensions.
7-7/32
6-19/32
5-15/32
7/8
27-1/4
24-3/8
7-7/8
10-11/16
9-5/16
9-3/32
10-11/16 16-9/16
50-17/32
27/32
2-1/32
8-21/32
9-1/4
10-13/32
14-9/32
54-7/32
49-9/32
47-15/32
49-3/16
47-1/2
3-9/16
27-9/16
26-5/32
1-25/32
27-1/16

Other manuals for LG ARNU423B8A4

Related product manuals