EasyManua.ls Logo

LG ARNU423B8A4 - Page 20

LG ARNU423B8A4
203 pages
Print Icon
To Next Page IconTo Next Page
To Next Page IconTo Next Page
To Previous Page IconTo Previous Page
To Previous Page IconTo Previous Page
Loading...
20 | HIGH STATIC
MULTI V Ducted Indoor Unit Engineering Manual
Due to our policy of continuous product innovation, some specications may change without notication.
© LG Electronics U.S.A., Inc., Englewood Cliffs, NJ. All rights reserved. “LG” is a registered trademark of LG Corp.
DUCTED HIGH STATIC
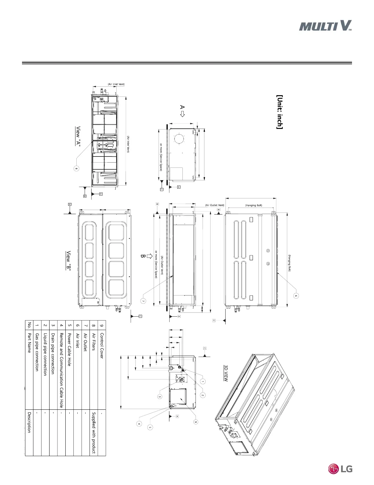
External Dimensions
M3 Units
Figure 5: ARNU283~543M3A4 Dimensions.
12-21/32
12-27/32
12-3/4
14-27/32
14-3/16
11-7/16
27-3/16
24-3/8
7-3/8
6-27/32
5-1/2
1-3/32
50-9/16
54-11/32
49-1/4
3-5/8
13/16
2-7/32
6-5/32
6-3/4
7-15/16
12-23/32
28-9/16
47-19/32
49-3/16
27-19/32
26-3/16
2-1/32
27-1/8
47-9/16

Other manuals for LG ARNU423B8A4

Related product manuals