EasyManua.ls Logo

LG GR-349SQF - Door Opening Alarm; Display Button Ring Operation; Defrosting Operation; Orderly Operation of Electric Parts

LG GR-349SQF
41 pages
To Next Page IconTo Next Page
To Next Page IconTo Next Page
To Previous Page IconTo Previous Page
To Previous Page IconTo Previous Page
Loading...
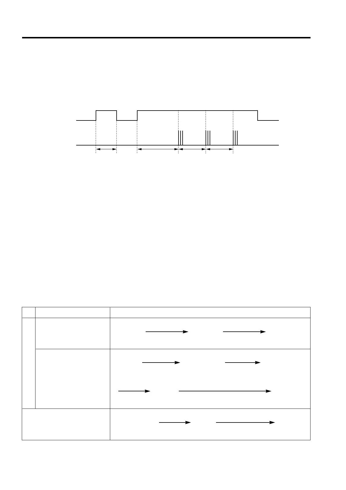
4) DOOR OPENING ALARM
(1) When the REFRIGERATOR DOOR is opened and won't be closed after 1 minute from the its opened, BUZZER sounds
to notify it.
(2) At frist, BUZZER sounds three times at each intervals of 0.5 second. Then makes a 0.5 second ON/OFF alarm three
times at intervals of 30 seconds.
(3) If the REFRIGERATOR door closed during ALARM, it is released.
5) DISPLAY BUTTON RING
(1) If display function button(FREEZE TEMP, QUICK FREEZE, VACATION) of the front of the TOP COVER is pushed,
BUZZER rings with "DING~ DONG~"(See the BUZZER OPERATION CHECK)
6) DEFROSTING
(1) If the accumulated time for the operation of the COMPRESSOR is meet with 7 hours, the DEFROSTING HEATER is
started.
(2) The first defrosting is performed at 4 hours(compressor ON) later since the power is on.
(3) If DEFROST SENSOR is over 7¡C during DEFROSTING, end the operation of DEFROSTING with DEFROSTING
HEATER paused, And after 7 minutes, the operation for the freezing is started.
But, if DEFROST SENSOR is not reach to 7¡C after 2 hours' operation of the defrosting heater, it represents a defrosting
trouble.(See the TROUBLE REPRESENTING FUNCTION)
(4) If DEFROST SENSOR is short or open, defrosting is not performed.
7) ORDERLY OPERATION OF ELECTRIC PARTS
To avoid NOISE and DAMAGE, the items containing an electric parts such as COMP, DEFROSTING HEATER and FAN
MOTOR operate in order as follows.
- 18 -
CLOSE OPEN CLOSE OPEN CLOSE
BUZZER
within
1 minute
1 minute 30
seconds
30
seconds
three
times
three
times
three
times
FREEZER
DOOR
OPERATION STATE OPERATION ORDER
WHEN DEFROST SENSOR
TEMPERATURE IS OVER
7¡C. (WHEN PURCHASING
OR MOVING)
WHEN DEFROST SENSOR
TEMPERATURE IS BELOW
7¡C. (WHEN POWER
FAILURE OR SERVICING)
WHEN RETURNING TO NORMAL
STATE FROM TEST MODE
POWER COMP FAN
ON ON ON
after 0.5 sec. after 0.5 sec.
All Elec. Parts COMP FAN
OFF ON ON
after 7 min . after 0.5 sec.
POWER DEFROSTING DEFROSTING
ON HEATER ON HEATER ON
after 0.5 sec. after 10 sec.
COMP FAN
ON ON
after 0.5 sec. after 0.5 sec.
WHEN PLUGGED AT FIRST

Related product manuals