EasyManua.ls Logo

LG LV-C3681HL - Performance and Selection Data

LG LV-C3681HL
91 pages
To Next Page IconTo Next Page
To Next Page IconTo Next Page
To Previous Page IconTo Previous Page
To Previous Page IconTo Previous Page
Loading...
Ceiling & Floor, Ceiling Suspended (50Hz, R22) 41
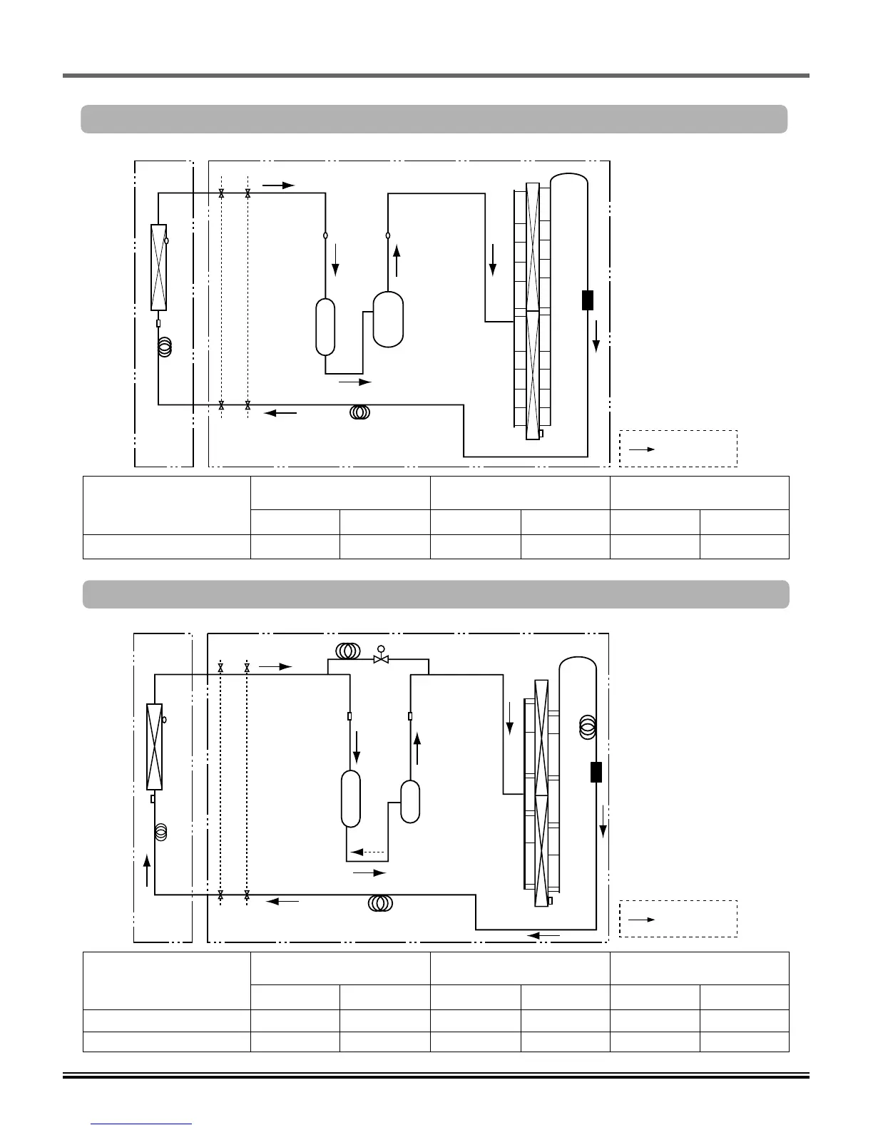
8. Refrigerant Cycle Diagrams
Pipe size(Diameter:Ø)
Piping length(m) Elevation(m)
Model No. (inch)
Gas Liquid Rated Max Rated Max
LV-C368KLA1 5/8" 1/4" 7.5 30 5 20
Model No.: LV-C368KLA1
Pipe size(Diameter:Ø)
Piping length(m) Elevation(m)
Model No. (inch)
Gas Liquid Rated Max Rated Max
LV-C488LLA1 3/4" 3/8" 7.5 50 5 30
LV-C608LLA1 3/4" 3/8" 7.5 30 5 20
Model No.: LV-C48(60)8LLA1
LIQUID SIDE
OUTDOOR COIL
H/P S/W
L/P S/W
GAS SIDE
INDOOR UNIT OUTDOOR UNIT
Accumulator
Comp
INDOOR
COIL
Air
Sensor
Eva.
Sensor
Thermister
: COOLING
Accumulator
Comp
H/P S/WL/P S/W
Solenoid valve
Air
Sensor
INDOOR
COIL
Eva.
Sensor
LIQUID SIDE
OUTDOOR COIL
GAS SIDE
INDOOR UNIT OUTDOOR UNIT
Thermister
: COOLING

Related product manuals