EasyManua.ls Logo

LG Multi V ARNU073M2A4 - Low-Static Ducted L2;L3 Chassis

LG Multi V ARNU073M2A4
94 pages
Print Icon
To Next Page IconTo Next Page
To Next Page IconTo Next Page
To Previous Page IconTo Previous Page
To Previous Page IconTo Previous Page
Loading...
79
Installation Manual
Due to our policy of continuous product innovation, some specifications may change without notification.
©LG Electronics U.S.A., Inc., Englewood Cliffs, NJ. All rights reserved. “LG” is a registered trademark of LG Corp.
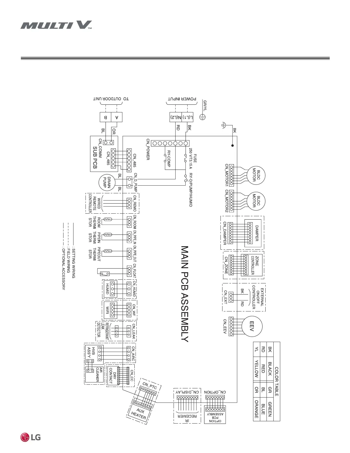
WIRING
Low-Static Ducted L2/L3 Chassis
Figure 75: Low-Static Ducted L2/L3 Chassis Wiring Diagram.
Optional Connections
Figure 75 shows the control board for the L2/L3 chassis. Connect optional equipment to the control board as required for your system.

Table of Contents

Related product manuals