EasyManua.ls Logo

Lovato DME CD - Wiring Diagrams; DMECD and EXM Module Wiring

Default Icon
18 pages
Print Icon
To Next Page IconTo Next Page
To Next Page IconTo Next Page
To Previous Page IconTo Previous Page
To Previous Page IconTo Previous Page
Loading...
Doc. AHIT101A0510.doc 10/02/2011 P. 17 / 18
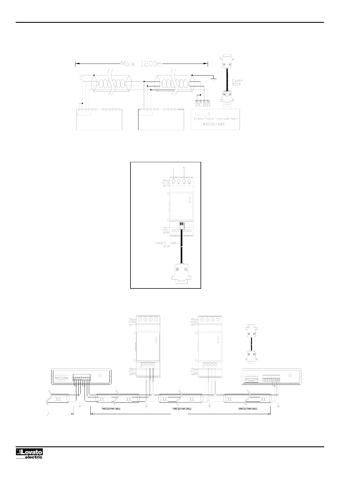
SGABTR
RS485
TR SGAB
PX1
SGBTR A
PC
DMG210 n°31
RS485
DMG210 n°1
Schemi di collegamento
Wiring diagrams
DMECD
EXM 10 11 RS 232
EXM 10 12 RS485
EXM 10 11
DEVICE 1......30
L MAX = 1200mt
DEVICE 31......60
L MAX = 1200mt
EXM10 ..
SET AS REPEATER
EIA-232
EIA-485/422
TR
B
TR
A
SG
CH2
A
B
SG
CH1
PX1
SG
TR BA
EXM10 ..
A1 A1 A2 A2
EXM10 ..
SG
TR A B
EXM10 ..
EIA-232
A1 A1 A2 A2
PC
RS232
RS232/RS485 CONV.
EIA-485/422
CH1
B
A
TR
CH2
SG
B
TR
A
SG
PX1
51C4
CABLE
DME
C
D n°
3
1 DME
C
D n°1 PX1