EasyManua.ls Logo

Lovato DMG210 - Page 17

Lovato DMG210
18 pages
Print Icon
To Next Page IconTo Next Page
To Next Page IconTo Next Page
To Previous Page IconTo Previous Page
To Previous Page IconTo Previous Page
Loading...
Doc. AHIT101C0208.doc Date: 10/11/2009 P. 17 / 18
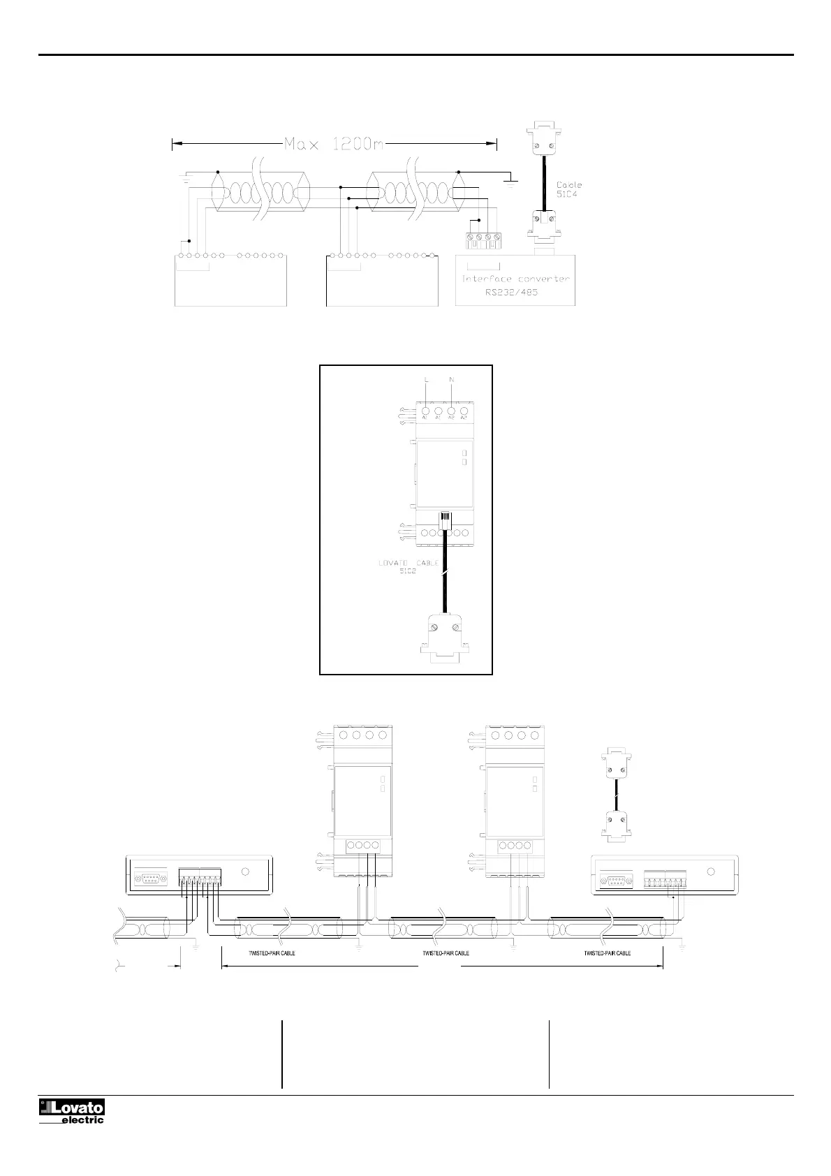
SGABTR
RS485
TR SGAB
PX1
SGBTR A
PC
DMG210 n°31
RS485
DMG210 n°1
Schemi di collegamento
Network wiring diagram
DMG210
EXM 10 11 RS 232
EXM 10 12 RS485
EXM 10 10 USB
EXM 10 13 Ethernet
EXP 10 10 USB
EXP 10 13 Ethernet
Per questi moduli utilizzare un cavo standard.
EXM 10 10 USB
EXM 10 13 Ethernet
EXP 10 10 USB
EXP 10 13 Ethernet
For this modules use a standard cable.
EXM 10 11
DEVICE 1......30
L MAX = 1200mt
DEVICE 31......60
L MAX = 1200mt
EXM10 ..
SET AS REPEATER
EIA-232
EIA-485/422
TR
B
TR
A
SG
CH2
A
B
SG
CH1
PX1
SG
TR BA
EXM10 ..
A1 A1 A2 A2
EXM10 ..
SG
TR A B
EXM10 ..
EIA-232
A1 A1 A2 A2
PC
RS232
RS232/RS485 CONV.
EIA-485/422
CH1
B
A
TR
CH2
SG
B
TR
A
SG
PX1
51C4
CABLE

Related product manuals