EasyManua.ls Logo

Lucent DDM-2000 OC-3 - Page 1037

Lucent DDM-2000 OC-3
1224 pages
Print Icon
To Next Page IconTo Next Page
To Next Page IconTo Next Page
To Previous Page IconTo Previous Page
To Previous Page IconTo Previous Page
Loading...
DLP-546: Detailed Level Procedure 363-206-285
Page 13 of 20 Issue 2, February 2000
DDM-2000 OC-3 MULTIPLEXER
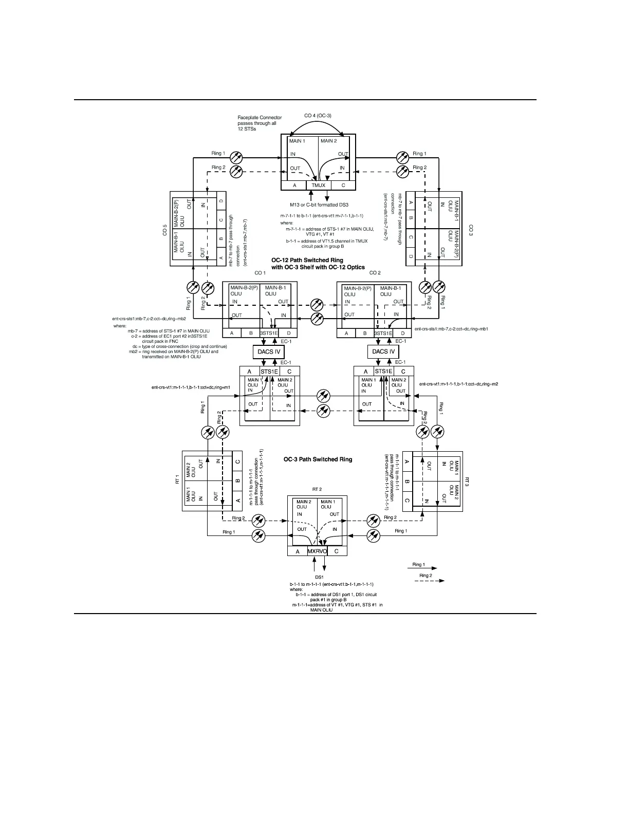
Figure 10 Path Protected Ring OC-3 Network (DS1 to TMUX) with VT1.5
Cross-Connections
24/29-Type
OLIU
24/29-Type
OLIU