EasyManua.ls Logo

Magic-Pak HWC8-12 - Page 11

Magic-Pak HWC8-12
18 pages
Print Icon
To Next Page IconTo Next Page
To Next Page IconTo Next Page
To Previous Page IconTo Previous Page
To Previous Page IconTo Previous Page
Loading...
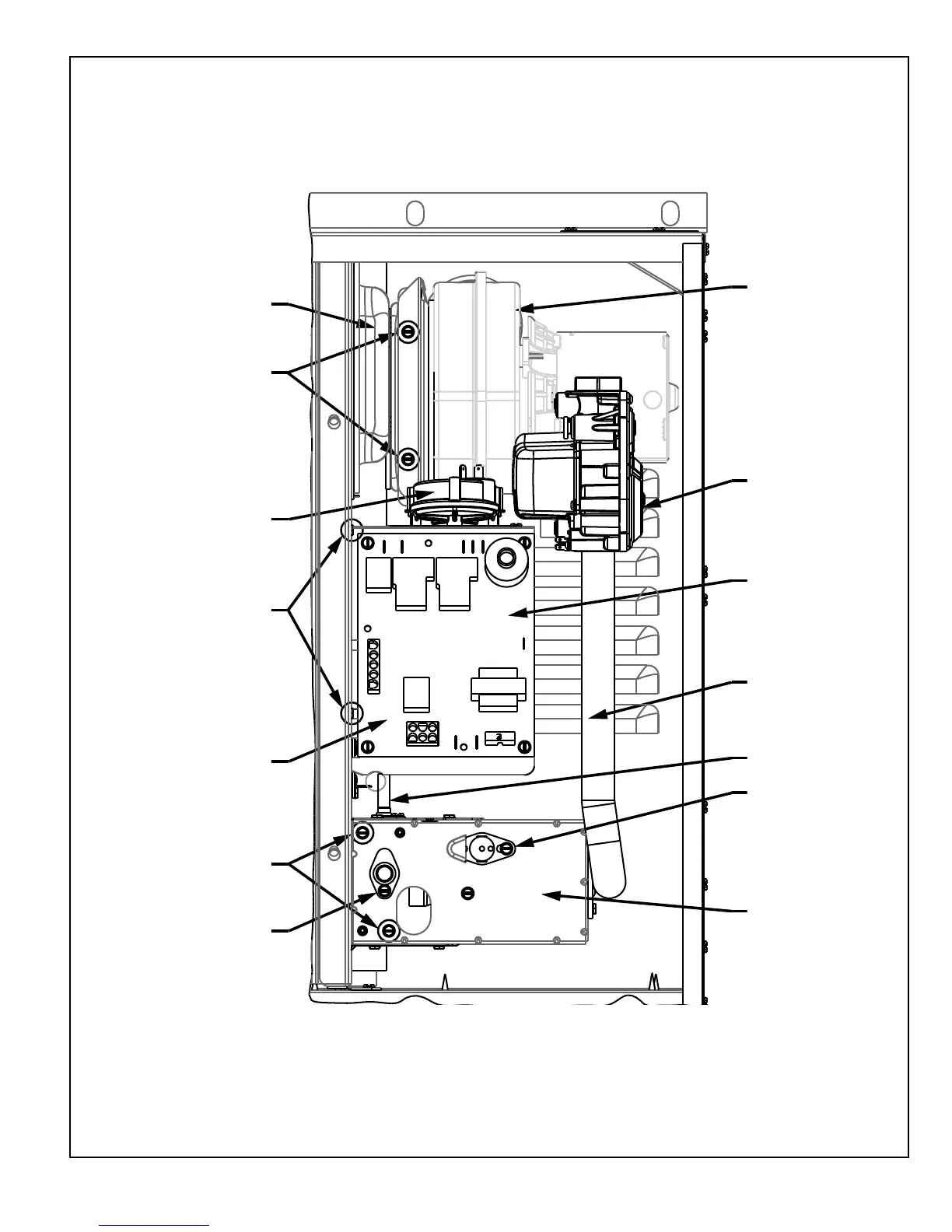
Page 11 of 18507388-01 Issue 1504
Flue Collector
Box
Remove these
screws to remove
Combustion inducer
Inducer prover
switch
Loosen these screws
to remove control board
mounting bracket
Ignition
Control board
Remove these
screws to remove
Burner Assembly
Igniter
Combustion
Inducer
Gas Valve
Primary Limit
(Mounted to Vest
panel)
Gas Manifold
Flame sensor
(mounted to top of
Burner assembly)
Rollout switch
Burner & Manifold
Assembly
Figure 5
COMPONENT LAYOUT

Related product manuals